Villa a Schiera Via Giuseppe Fanin, Poggio Renatico
€ 200.000Villa a schiera in vendita
GALLO: Immobiliare Tecnocasa Poggio Renatico propone in vendita villetta a schiera centrale.
L'immobile è ubicato a pochi passi dal centro del paese e da tutti i servizi offerti.
Il complesso è costituito da 4 villette a schiera edificato nel 2009.
Lo stato di manutenzione generale dello stabile è ottimo.
Recentemente sono stati eseguiti lavori di ristrutturazione:
pavimentazione al piano terra e bagno al piano terra.
Gli spazi interni sono di buone dimensioni e così disposti:
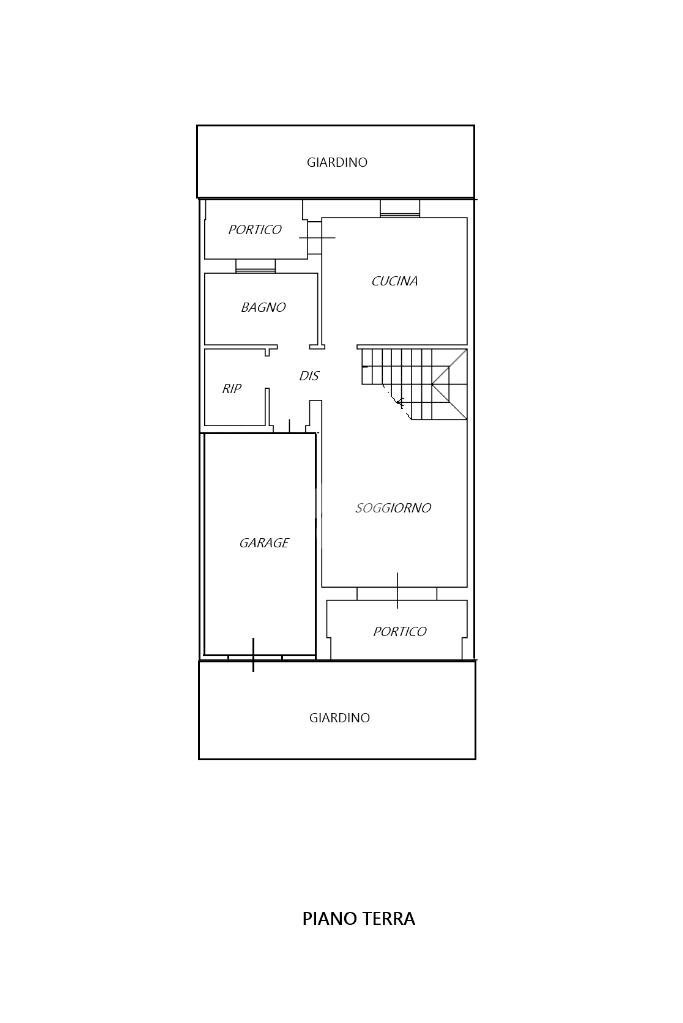
piano terra ingresso da grazioso portico con affaccio diretto su soggiorno, cucina abitabile, bagno finestrato con doccia, ripostiglio e autorimessa collegata direttamente alla parte abitativa.
piano primo tre camere da letto ( una matrimoniale con accesso al balcone e due singole anch'esse con balcone ) e bagno finestrato con vasca.
Completa la proprietà un sottotetto utilizzabile come sgombero accessibile, tramite scala retrattile.
Il giardino è presente sia sul fronte che sul retro dell'immobile dove è ubicata un'ampia tettoia in legno.
La villetta è già climatizzata.
L'immobile è ubicato a pochi passi dal centro del paese e da tutti i servizi offerti.
Il complesso è costituito da 4 villette a schiera edificato nel 2009.
Lo stato di manutenzione generale dello stabile è ottimo.
Recentemente sono stati eseguiti lavori di ristrutturazione:
pavimentazione al piano terra e bagno al piano terra.
Gli spazi interni sono di buone dimensioni e così disposti:
piano terra ingresso da grazioso portico con affaccio diretto su soggiorno, cucina abitabile, bagno finestrato con doccia, ripostiglio e autorimessa collegata direttamente alla parte abitativa.
piano primo tre camere da letto ( una matrimoniale con accesso al balcone e due singole anch'esse con balcone ) e bagno finestrato con vasca.
Completa la proprietà un sottotetto utilizzabile come sgombero accessibile, tramite scala retrattile.
Il giardino è presente sia sul fronte che sul retro dell'immobile dove è ubicata un'ampia tettoia in legno.
La villetta è già climatizzata.
Dati principali
| Riferimento | 61195870 |
| Data annuncio | 24/03/2026 |
| Contratto | Vendita |
| Tipologia | Villa a Schiera |
| Superficie | 140 m2 |
| Locali | 4 (4 altro), 2 bagni |
| Piano | 2 di 2 totali |
Costi
| Prezzo | 200.000 € |
| Prezzo al m2 | 1.429 €/m2 |
Efficienza energetica
| Anno costruzione | 2009 |
| Riscaldamento | Autonomo |
| Tipo Alimentazione Riscaldamento | Gpl |
| Classe energetica | Immobile esente da certificazione energetica |
Planimetrie
Indirizzo e mappa
Via Giuseppe Fanin, Poggio Renatico
Calcolo mutuo
Prezzo di vendita:
Anticipo
20,00
Mutuo
80,00
Tasso: -+
Rata: 572 al mese
I risultati sono una stima indicativa basata sui dati inseriti e non costituiscono un’offerta finanziaria.
Inserzionista
Chiama
CONTATTA

