Quadrilocale all'asta Via Alcide De Gasperi 30, Campomorone
€ 54.800Appartamento - Quadrilocale a Campomorone
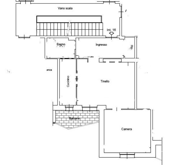
Piena proprietà di un immobile a destinazione residenziale, sito in in Campomorone (GE) via Alcide De Gaspari n. 30/16.
- Il Prezzo visualizzato è la Base d'Asta in quanto l’immobile è oggetto di esecuzione immobiliare venduto tramite Asta Giudiziaria.
- L'immobile aggiudicato, viene venduto libero e sgombro da persone cose ed ipoteche nello stato di fatto e di diritto in cui si trova.
- Non rappresentiamo il Tribunale, ma lavoriamo nell'esclusivo interesse del potenziale acquirente per garantire un acquisto sicuro.
- I consulenti di ASTE ITALIA ti assisteranno in tutte le attività dell'iter giudiziario dalla visita dell'immobile fino alla consegna chiavi.
- Contatta il nostro Servizio Clienti , i nostri operatori sono a disposizione per chiarire i molteplici dubbi per partecipare alle ASTE.
- Il Prezzo visualizzato è la Base d'Asta in quanto l’immobile è oggetto di esecuzione immobiliare venduto tramite Asta Giudiziaria.
- L'immobile aggiudicato, viene venduto libero e sgombro da persone cose ed ipoteche nello stato di fatto e di diritto in cui si trova.
- Non rappresentiamo il Tribunale, ma lavoriamo nell'esclusivo interesse del potenziale acquirente per garantire un acquisto sicuro.
- I consulenti di ASTE ITALIA ti assisteranno in tutte le attività dell'iter giudiziario dalla visita dell'immobile fino alla consegna chiavi.
- Contatta il nostro Servizio Clienti , i nostri operatori sono a disposizione per chiarire i molteplici dubbi per partecipare alle ASTE.
Dati principali
| Riferimento | GE6/26LU-1606-26-1530 |
| Data annuncio | 23/03/2026 |
| Contratto | Vendita |
| Tipologia | Appartamento |
| Superficie | 64 m2 |
| Locali | 4 (1 camera da letto, 3 altro), 1 bagno |
| Piano | 1 totali |
| Numero di balconi | 1 |
Costi
| Offerta minima | € 54.800 |
| Prezzo al m2 | 856 €/m2 |
Efficienza energetica
| Classe energetica | G |
Planimetrie
Indirizzo e mappa
Via Alcide De Gasperi 30, Campomorone
Calcolo mutuo
Prezzo di vendita:
Anticipo
20,00
Mutuo
80,00
Tasso: -+
Rata: 157 al mese
I risultati sono una stima indicativa basata sui dati inseriti e non costituiscono un’offerta finanziaria.
Inserzionista

DOMY ONLINE S.R.L.
Via San Lorenzo 5 Int. 41, Genova
Mostra Telefono
Mostra Cellulare
Chiama
CONTATTA

