Capannone via Ferdinando Santi 1/1, Nichelino
€ 720.000
Proposta commerciale Capannone industriale Nichelino (zona Mondo Juve - S.Village)
In zona industriale di Mondo Juve Shopping Village, nelle immediate vicinanze della tangenziale con uscita Debouché, proponiamo in vendita due capannoni industriali risalenti al 1990 completamente ristrutturati nel 2019, attualmente uniti tra loro di circa 950 mq comm.li, dotati di due grandi portoni di accesso ed ampio piazzale carraio antistante di circa 1.000 mq.
La posizione risulta particolarmente strategica, grazie alleccellente collegamento con le principali arterie stradali e alla facilità di accesso, elementi che rendono gli spostamenti rapidi ed efficienti per qualsiasi attività operativa.
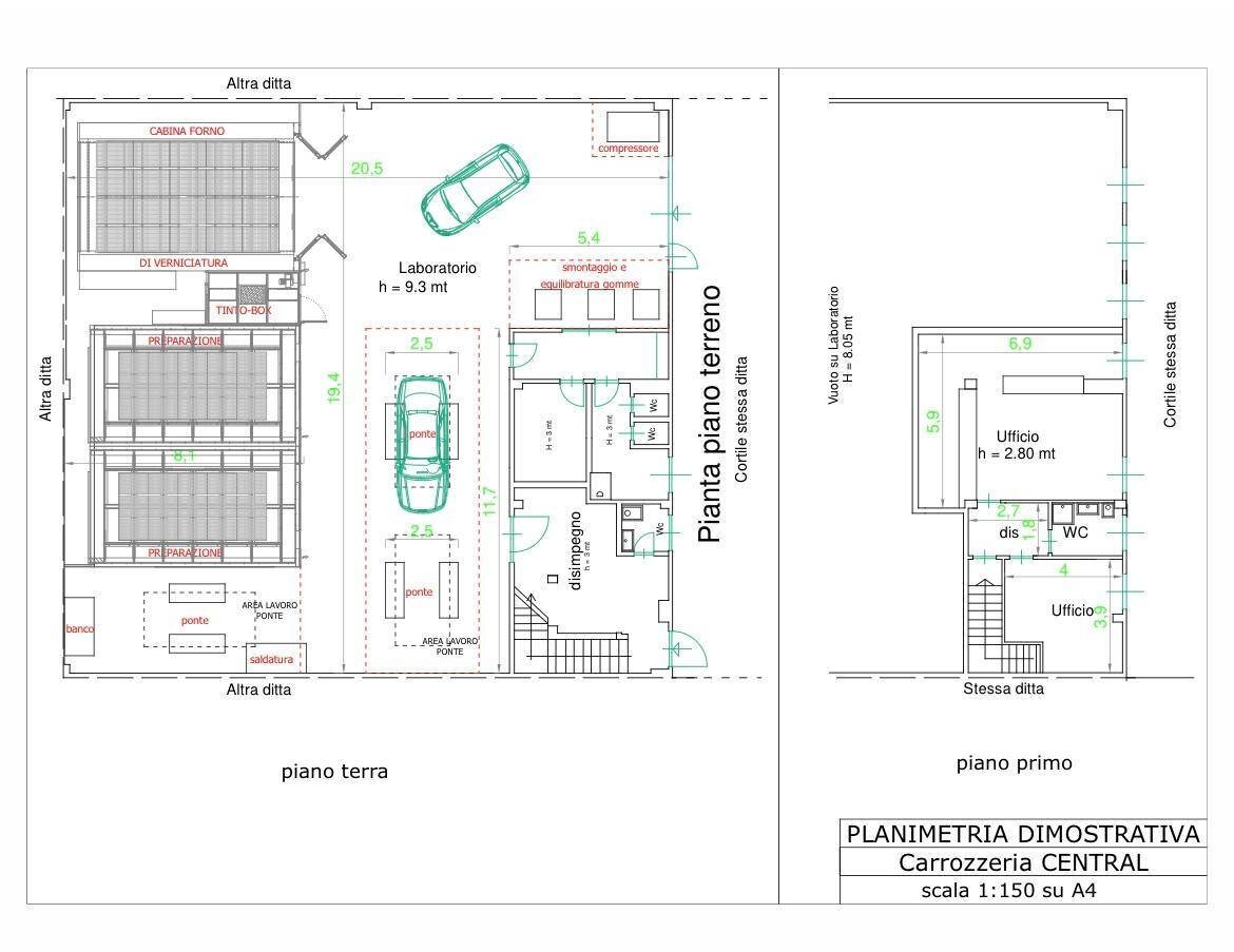
Attualmente sede di una importante carrozzeria, la proposta si distingue per la funzionalità degli spazi, lottima accessibilità e la presenza di zone uffici e servizi direttamente collegate alle aree di lavorazione.
Si presenta in ottimo stato di conservazione e manutenzione, configurandosi come una soluzione chiavi in mano, ideale per realtà già strutturate o in fase di espansione.
Attualmente i due capannoni, tra loro collegati, presentano spazi organizzati per le diverse fasi di lavorazione tipiche di una carrozzeria, con bagni e spogliatoi e ufficio direzionale, mentre la zona uffici è così strutturata:
Piccola sala attesa
una reception oltre tre postazioni operative
ufficio direzionale
servizio dedicato
unulteriore area attualmente adibita a mensa e zona relax, oltre ai servizi igienici
Quest'ultimi ambienti tuttavia risultano facilmente adattabili qualora ci fosse la possibilità di realizzare ulteriori postazioni ufficio in base alle esigenze operative dell'acquirente.
Per caratteristiche e configurazione, rappresenta una soluzione ideale per:
attività di logistica e distribuzione locale (consegne rapide sul territorio)
imprese artigianali e produttive
officine meccaniche, carrozzerie o centri assistenza veicoli
magazzini per stoccaggio e movimentazione merci
attività tecniche, impiantistiche o di manutenzione
aziende legate alle-commerce con gestione spedizioni
Recentemente sono stati eseguiti importanti interventi di riqualificazione:
rifacimento completo della copertura coibentata.
installazione di impianto fotovoltaico da 40 kW, per un significativo risparmio energetico che soddisfa pienamente l'alta
richiesta energetica per l'attività svolta.
Limmobile e dotato di impianto elettrico e di riscaldamento a norma entrambi certificati.
Capannone liberabile entro 6 mesi, con tempistiche eventualmente flessibili in base alle esigenze dellacquirente.
Possibilità di acquisto anche a reddito, mantenendo la stessa proprietà come affittuario.
Una proposta concreta per chi vuole crescere, non solo trasferirsi.
Gli Spazi, l'accessibilità e le dotazioni, unite a una posizione strategica, rendono questa soluzione una vera opportunità per attività che desiderano fare un salto di qualità, ottimizzando costi ed efficienza operativa. Una proposta concreta per chi vuole crescere, non solo trasferirsi. CAT.Catastale D1, RC dei due capannoni rispettivamente euro2.862,80 ed euro 3.113.,34.
In zona industriale di Mondo Juve Shopping Village, nelle immediate vicinanze della tangenziale con uscita Debouché, proponiamo in vendita due capannoni industriali risalenti al 1990 completamente ristrutturati nel 2019, attualmente uniti tra loro di circa 950 mq comm.li, dotati di due grandi portoni di accesso ed ampio piazzale carraio antistante di circa 1.000 mq.
La posizione risulta particolarmente strategica, grazie alleccellente collegamento con le principali arterie stradali e alla facilità di accesso, elementi che rendono gli spostamenti rapidi ed efficienti per qualsiasi attività operativa.
Attualmente sede di una importante carrozzeria, la proposta si distingue per la funzionalità degli spazi, lottima accessibilità e la presenza di zone uffici e servizi direttamente collegate alle aree di lavorazione.
Si presenta in ottimo stato di conservazione e manutenzione, configurandosi come una soluzione chiavi in mano, ideale per realtà già strutturate o in fase di espansione.
Attualmente i due capannoni, tra loro collegati, presentano spazi organizzati per le diverse fasi di lavorazione tipiche di una carrozzeria, con bagni e spogliatoi e ufficio direzionale, mentre la zona uffici è così strutturata:
Piccola sala attesa
una reception oltre tre postazioni operative
ufficio direzionale
servizio dedicato
unulteriore area attualmente adibita a mensa e zona relax, oltre ai servizi igienici
Quest'ultimi ambienti tuttavia risultano facilmente adattabili qualora ci fosse la possibilità di realizzare ulteriori postazioni ufficio in base alle esigenze operative dell'acquirente.
Per caratteristiche e configurazione, rappresenta una soluzione ideale per:
attività di logistica e distribuzione locale (consegne rapide sul territorio)
imprese artigianali e produttive
officine meccaniche, carrozzerie o centri assistenza veicoli
magazzini per stoccaggio e movimentazione merci
attività tecniche, impiantistiche o di manutenzione
aziende legate alle-commerce con gestione spedizioni
Recentemente sono stati eseguiti importanti interventi di riqualificazione:
rifacimento completo della copertura coibentata.
installazione di impianto fotovoltaico da 40 kW, per un significativo risparmio energetico che soddisfa pienamente l'alta
richiesta energetica per l'attività svolta.
Limmobile e dotato di impianto elettrico e di riscaldamento a norma entrambi certificati.
Capannone liberabile entro 6 mesi, con tempistiche eventualmente flessibili in base alle esigenze dellacquirente.
Possibilità di acquisto anche a reddito, mantenendo la stessa proprietà come affittuario.
Una proposta concreta per chi vuole crescere, non solo trasferirsi.
Gli Spazi, l'accessibilità e le dotazioni, unite a una posizione strategica, rendono questa soluzione una vera opportunità per attività che desiderano fare un salto di qualità, ottimizzando costi ed efficienza operativa. Una proposta concreta per chi vuole crescere, non solo trasferirsi. CAT.Catastale D1, RC dei due capannoni rispettivamente euro2.862,80 ed euro 3.113.,34.
Dati principali
| Riferimento | ZM422030 |
| Data annuncio | 24/03/2026 |
| Contratto | Vendita |
| Tipologia | Capannone |
| Superficie | 950 m2 |
Costi
| Prezzo | 720.000 € |
| Prezzo al m2 | 758 €/m2 |
Efficienza energetica
| Stato | Ottimo |
| Tipo Alimentazione Riscaldamento | Altro |
| Classe energetica | F |
| Indice di prestazione energetica (IPE) | 119 kWh/m2 anno |
Planimetrie
Indirizzo e mappa
via Ferdinando Santi
1/1, Nichelino
Annuncio senza mappa,
prova a chiedere la posizione all'inserzionista
prova a chiedere la posizione all'inserzionista
Calcolo mutuo
Prezzo di vendita:
Anticipo
20,00
Mutuo
80,00
Tasso: -+
Rata: 2.059 al mese
I risultati sono una stima indicativa basata sui dati inseriti e non costituiscono un’offerta finanziaria.
Inserzionista

Maltese Real Estate
Via Villa della Regina, 1, Torino
Mostra Telefono
Mostra Cellulare
Chiama
CONTATTA

