Appartamento Alessandria
€ 149.000
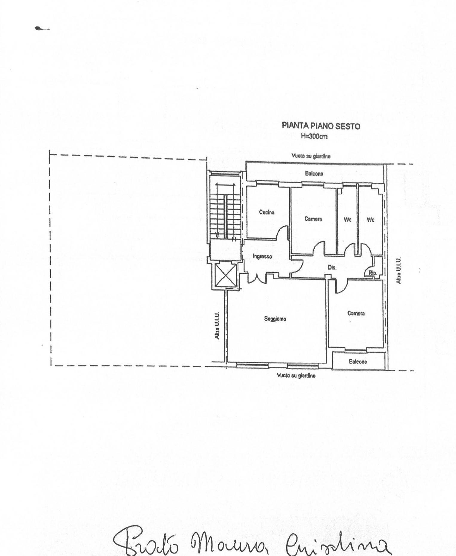
ALESSANDRIA ZONA GALIMBERTI: in zona residenziale, all'interno di una bella palazzina rifinita in paramano con giardino condominiale, si propone in vendita alloggio RISTRUTTURATO di AMPIA METRATURA sito al piano 6°ed ULTIMO servito da ascensore, composto da: ingresso su zona living di sala con cucina a vista, 3 camere da letto, 2 ampi bagni, ripostiglio, 2 balconi ampi, cantina e BOX AUTO ideale anche per auto grandi + moto.
Alloggio completamente ristrutturato tranne gli infissi in legno con vetro singolo che sono originali ed uno dei 2 bagni.
Presente porta blindata, predisposizione zona notte e zona giorno per il clima.
149.000,00 - Rif. OR5
A.P.E. Classe 'F' EPgl,nren (kWh/m2anno): 188.7
Per informazioni e visite contattare GIERRE immobiliare 0131.218521
Alloggio completamente ristrutturato tranne gli infissi in legno con vetro singolo che sono originali ed uno dei 2 bagni.
Presente porta blindata, predisposizione zona notte e zona giorno per il clima.
149.000,00 - Rif. OR5
A.P.E. Classe 'F' EPgl,nren (kWh/m2anno): 188.7
Per informazioni e visite contattare GIERRE immobiliare 0131.218521
Dati principali
| Riferimento | OR5 |
| Data annuncio | 21/03/2026 |
| Contratto | Vendita |
| Tipologia | Appartamento |
| Superficie | 115 m2 |
| Locali | 5 (3 camere da letto, 2 altro), 2 bagni, cucina a vista |
| Piano | Ultimo piano, 6 totali |
| Tipo di costruzione | Media |
| Occupato | Libero |
| Box auto | Singolo |
Caratteristiche
Costi
| Prezzo | 149.000 € |
| Prezzo al m2 | 1.296 €/m2 |
Efficienza energetica
| Stato | Parzialmente ristrutturato |
| Riscaldamento | Semi-autonomo |
| Classe energetica | F |
| Indice di prestazione energetica (IPE) | 188 kWh/m2 anno |
Planimetrie
Indirizzo e mappa
Alessandria
Annuncio senza mappa,
prova a chiedere la posizione all'inserzionista
prova a chiedere la posizione all'inserzionista
Calcolo mutuo
Prezzo di vendita:
Anticipo
20,00
Mutuo
80,00
Tasso: -+
Rata: 426 al mese
I risultati sono una stima indicativa basata sui dati inseriti e non costituiscono un’offerta finanziaria.
Inserzionista

Eurocasa Gierre Immobiliare
Corso Acqui 83, Alessandria
Mostra Telefono
Mostra Cellulare
Chiama
CONTATTA

