Bilocale Via Madonnetta, Savigliano
€ 99.000Bilocale in vendita
SAVIGLIANO: nel cuore della zona centrale, in una posizione comoda a tutti i servizi e perfetta per la vita quotidiana, proponiamo in vendita un bilocale completamente ristrutturato, ideale per chi cerca una soluzione pronta da vivere.
L’appartamento è stato rinnovato con cura: gli infissi sono nuovi, l’impianto elettrico è stato rifatto e c’è già la predisposizione per l’aria condizionata, così da garantire comfort in ogni stagione.
Gli ambienti sono ben distribuiti e accoglienti, pensati per offrire praticità senza rinunciare al calore di una casa funzionale. La soluzione si presta perfettamente sia come abitazione principale che come investimento.
A completare la proprietà troviamo una cantina e un comodo posto auto all’interno del cortile, elemento sempre più raro e prezioso in posizione centrale.
Le spese di gestione contenute rappresentano un ulteriore punto di forza.
L’appartamento è stato rinnovato con cura: gli infissi sono nuovi, l’impianto elettrico è stato rifatto e c’è già la predisposizione per l’aria condizionata, così da garantire comfort in ogni stagione.
Gli ambienti sono ben distribuiti e accoglienti, pensati per offrire praticità senza rinunciare al calore di una casa funzionale. La soluzione si presta perfettamente sia come abitazione principale che come investimento.
A completare la proprietà troviamo una cantina e un comodo posto auto all’interno del cortile, elemento sempre più raro e prezioso in posizione centrale.
Le spese di gestione contenute rappresentano un ulteriore punto di forza.
Dati principali
| Riferimento | 61195037 |
| Data annuncio | 21/03/2026 |
| Contratto | Vendita |
| Tipologia | Appartamento |
| Superficie | 56 m2 |
| Locali | 2 (2 altro), 1 bagno |
| Piano | 2 di 2 totali |
| Numero posti auto | 1 |
Costi
| Prezzo | 99.000 € |
| Prezzo al m2 | 1.768 €/m2 |
| Spese condominiali | € 100,00/mese |
Efficienza energetica
| Anno costruzione | 1970 |
| Riscaldamento | Centralizzato |
| Tipo Alimentazione Riscaldamento | Metano |
| Classe energetica | F |
| Indice di prestazione energetica (EP GL, REN) | 14.06 kWh/m3 anno |
| Indice di prestazione energetica (EP GL, NREN) | 222.65 kWh/m3 anno |
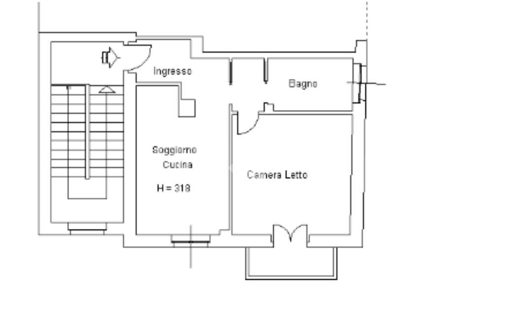
Planimetrie
Indirizzo e mappa
Via Madonnetta, Savigliano
Calcolo mutuo
Prezzo di vendita:
Anticipo
20,00
Mutuo
80,00
Tasso: -+
Rata: 283 al mese
I risultati sono una stima indicativa basata sui dati inseriti e non costituiscono un’offerta finanziaria.
Inserzionista
Agenzia Tecnocasa Savigliano Re Sas
Corso Roma, 2, Savigliano
Mostra Telefono
Chiama
CONTATTA

