Ufficio via Borri, Bagnolo in Piano
€ 80.000Ufficio in vendita
BAGNOLO IN PIANO - In zona residenziale e presso una via principale, proponiamo in vendita locale commerciale all'interno del centro commerciale Multiplo.
L'immobile è attualmente localeto con una rendita del 10%, ideale ad uso investimento.
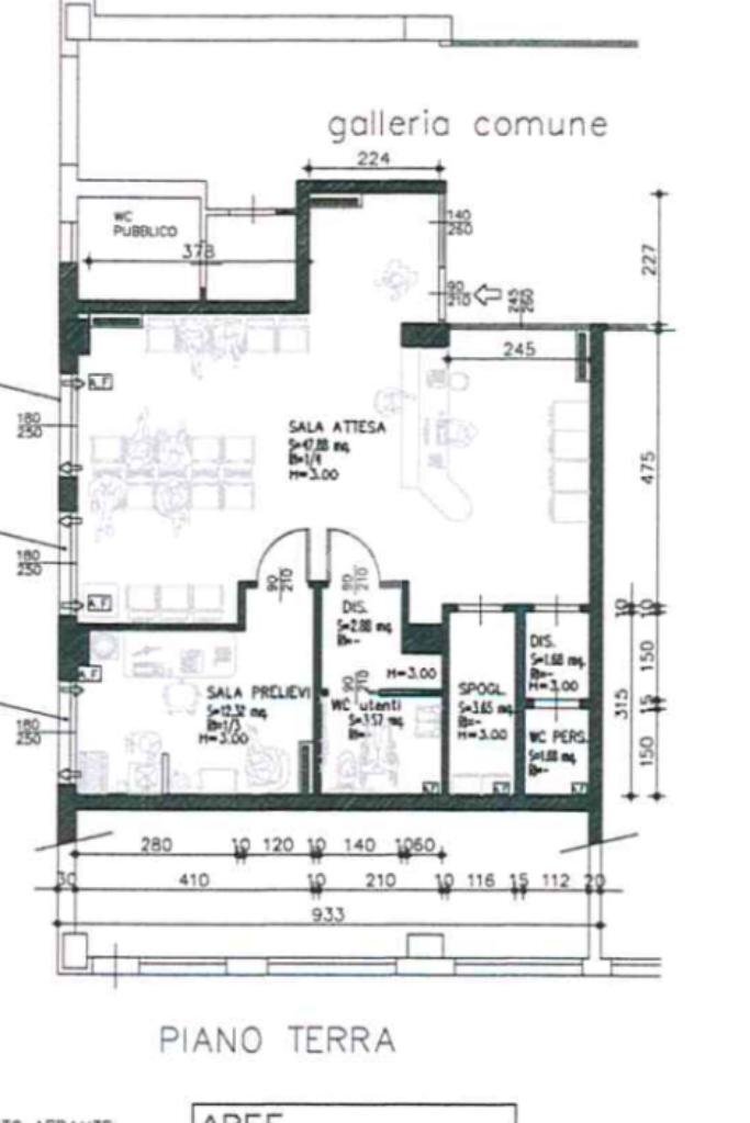
L'unità immobiliare è situata al piano terra ed è composta da un locale principale di 48 mq, un locale secondiario di 12 mq, due bagni ed uno spogliatoio.
Le finiture sono ben conservate.
Per ulteriori informazioni contattateci al numero di telefono: 3338099411 oppure mandateci una mail all'indirizzo:rehn2
L'immobile è attualmente localeto con una rendita del 10%, ideale ad uso investimento.
L'unità immobiliare è situata al piano terra ed è composta da un locale principale di 48 mq, un locale secondiario di 12 mq, due bagni ed uno spogliatoio.
Le finiture sono ben conservate.
Per ulteriori informazioni contattateci al numero di telefono: 3338099411 oppure mandateci una mail all'indirizzo:rehn2
Dati principali
| Riferimento | 61194053 |
| Data annuncio | 19/03/2026 |
| Contratto | Vendita |
| Tipologia | Ufficio |
| Superficie | 73 m2 |
| Locali | 2 (2 altro), 2 bagni |
| Piano | 2 totali |
Costi
| Prezzo | 80.000 € |
| Prezzo al m2 | 1.096 €/m2 |
| Spese condominiali | € 42,00/mese |
Efficienza energetica
| Anno costruzione | 2000 |
| Tipo Alimentazione Riscaldamento | Metano |
| Classe energetica | F |
| Indice di prestazione energetica (EP GL, NREN) | 458 kWh/m3 anno |
Planimetrie
Indirizzo e mappa
via Borri, Bagnolo in Piano
Calcolo mutuo
Prezzo di vendita:
Anticipo
20,00
Mutuo
80,00
Tasso: -+
Rata: 229 al mese
I risultati sono una stima indicativa basata sui dati inseriti e non costituiscono un’offerta finanziaria.
Inserzionista
Chiama
CONTATTA

