Attico Via De Sanctis, Reggio nell'Emilia
€ 490.000Attico in vendita
REGGIO EMILIA - CANALI - ATTICO PARI AL NUOVO.
Una soluzione abitativa esclusiva, ideale per chi cerca design contemporaneo, benessere abitativo e qualità.
Attico di ultima generazione situato in una delle zone più esclusive della città. Affacciato su un piacevole contesto verde con vista aperta sul parco.
L'immobile si distingue per ampie terrazze e importanti sfoghi esterni, ideali per vivere gli spazi all'aperto in totale privacy, e per finiture ricercate che valorizzano ogni ambiente.
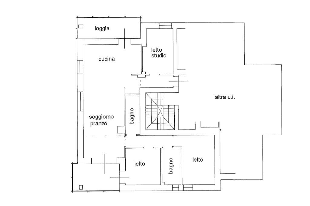
La distribuzione interna è moderna e funzionale: una zona giorno ampia e luminosa, perfetta per accogliere e vivere la casa, tre camere da letto e due bagni.
Costruito di recente, questo attico è progettato con grande attenzione sia all'efficenza energetica che alla semplicità di utilizzo da parte di chi lo vive, infatti l'ottimo comfort abitatitvo ed i suoi consumi contenuti saranno ciò che di tangibile potrete riscontrare.
Al piano terra la proprietà si completa con una comoda cantina direttamente collegata con il garage ed il vano scala condominiale, curato nello stile e nell'utilizzo giornaliero.
Nel prezzo è comprensivo una parte significativa di arredamento anch'esso di pregio a firma di una delle aziende più ricercate per i progetti di alta fascia.
PER MAGGIORI INFORMAZIONI O FISSARE UNA VISITA PRIVATA PUOI CONTATTARE IL 3457186940
Una soluzione abitativa esclusiva, ideale per chi cerca design contemporaneo, benessere abitativo e qualità.
Attico di ultima generazione situato in una delle zone più esclusive della città. Affacciato su un piacevole contesto verde con vista aperta sul parco.
L'immobile si distingue per ampie terrazze e importanti sfoghi esterni, ideali per vivere gli spazi all'aperto in totale privacy, e per finiture ricercate che valorizzano ogni ambiente.
La distribuzione interna è moderna e funzionale: una zona giorno ampia e luminosa, perfetta per accogliere e vivere la casa, tre camere da letto e due bagni.
Costruito di recente, questo attico è progettato con grande attenzione sia all'efficenza energetica che alla semplicità di utilizzo da parte di chi lo vive, infatti l'ottimo comfort abitatitvo ed i suoi consumi contenuti saranno ciò che di tangibile potrete riscontrare.
Al piano terra la proprietà si completa con una comoda cantina direttamente collegata con il garage ed il vano scala condominiale, curato nello stile e nell'utilizzo giornaliero.
Nel prezzo è comprensivo una parte significativa di arredamento anch'esso di pregio a firma di una delle aziende più ricercate per i progetti di alta fascia.
PER MAGGIORI INFORMAZIONI O FISSARE UNA VISITA PRIVATA PUOI CONTATTARE IL 3457186940
Dati principali
| Riferimento | 61192417 |
| Data annuncio | 18/03/2026 |
| Contratto | Vendita |
| Tipologia | Attico |
| Superficie | 150 m2 |
| Locali | 5 (5 altro), 2 bagni |
| Piano | 2 di 2 totali |
Costi
| Prezzo | 490.000 € |
| Prezzo al m2 | 3.267 €/m2 |
| Spese condominiali | € 83,00/mese |
Efficienza energetica
| Anno costruzione | 2022 |
| Riscaldamento | Autonomo |
| Tipo Alimentazione Riscaldamento | Altro |
| Classe energetica | A4 |
| Indice di prestazione energetica (EP GL, REN) | 10 kWh/m3 anno |
| Indice di prestazione energetica (EP GL, NREN) | 10 kWh/m3 anno |
Planimetrie
Video
Indirizzo e mappa
Via De Sanctis, Reggio nell'Emilia
Calcolo mutuo
Prezzo di vendita:
Anticipo
20,00
Mutuo
80,00
Tasso: -+
Rata: 1.401 al mese
I risultati sono una stima indicativa basata sui dati inseriti e non costituiscono un’offerta finanziaria.
Inserzionista
Chiama
CONTATTA

