Villa Via Sant'Agostino, Pietrasanta
€ 585.000
A SOLI 200 METRI DAL CENTRO STORICO DI PIETRASANTA, in una delle zone più ricercate e comode della città, proponiamo in vendita una splendida CASA INDIPENDENTE, ideale sia come elegante residenza privata sia come soluzione per due nuclei familiari.
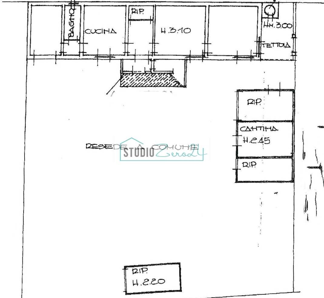
La proprietà si sviluppa su due livelli ed è attualmente suddivisa in DUE UNITA' ABITATIVE indipendenti. Al piano terra troviamo un'accogliente zona giorno composta da un luminoso soggiorno e da una cucina abitabile, ambienti pensati per offrire comfort e convivialità. La zona notte ospita due ampie camere matrimoniali e due bagni, garantendo funzionalità e praticità nella vita quotidiana.
Il primo piano, anch'esso con accesso indipendente, accoglie un secondo appartamento composto da soggiorno, cucina abitabile, due camere matrimoniali e un bagno. Una soluzione perfetta per ospitare familiari e amici in totale autonomia oppure per essere destinata a locazione, mantenendo separati gli spazi.
A completare la proprietà troviamo una graziosa dependance con due camere e una stanza studio, ideale come spazio per ospiti, area lavoro o ambiente dedicato ai propri hobby.
All'esterno, un meraviglioso GIARDINO circonda l'intera proprietà, creando un'atmosfera di tranquillità e riservatezza a pochi passi dal centro. Il doppio accesso carrabile rappresenta un ulteriore valore aggiunto, offrendo comodità e facilità di gestione degli spazi.
Una proprietà rara per posizione, versatilità e charme, nel cuore della Versilia, perfetta per chi desidera vivere a pochi passi da tutti i servizi senza rinunciare a privacy e indipendenza.
Contattaci quanto prima per maggiori informazioni o per fissare una visita.
L'indirizzo indicato sulla mappa potrebbe non essere quello preciso, ma l'immobile si trova comunque nelle ristrette vicinanze. Il presente annuncio non costituisce alcun elemento contrattuale.
La proprietà si sviluppa su due livelli ed è attualmente suddivisa in DUE UNITA' ABITATIVE indipendenti. Al piano terra troviamo un'accogliente zona giorno composta da un luminoso soggiorno e da una cucina abitabile, ambienti pensati per offrire comfort e convivialità. La zona notte ospita due ampie camere matrimoniali e due bagni, garantendo funzionalità e praticità nella vita quotidiana.
Il primo piano, anch'esso con accesso indipendente, accoglie un secondo appartamento composto da soggiorno, cucina abitabile, due camere matrimoniali e un bagno. Una soluzione perfetta per ospitare familiari e amici in totale autonomia oppure per essere destinata a locazione, mantenendo separati gli spazi.
A completare la proprietà troviamo una graziosa dependance con due camere e una stanza studio, ideale come spazio per ospiti, area lavoro o ambiente dedicato ai propri hobby.
All'esterno, un meraviglioso GIARDINO circonda l'intera proprietà, creando un'atmosfera di tranquillità e riservatezza a pochi passi dal centro. Il doppio accesso carrabile rappresenta un ulteriore valore aggiunto, offrendo comodità e facilità di gestione degli spazi.
Una proprietà rara per posizione, versatilità e charme, nel cuore della Versilia, perfetta per chi desidera vivere a pochi passi da tutti i servizi senza rinunciare a privacy e indipendenza.
Contattaci quanto prima per maggiori informazioni o per fissare una visita.
L'indirizzo indicato sulla mappa potrebbe non essere quello preciso, ma l'immobile si trova comunque nelle ristrette vicinanze. Il presente annuncio non costituisce alcun elemento contrattuale.
Dati principali
| Riferimento | 83329 |
| Data annuncio | 18/03/2026 |
| Contratto | Vendita |
| Tipologia | Villa |
| Superficie | 200 m2 |
| Locali | più di 5 (4 camere da letto, 8 altro), 2 bagni, cucina abitabile |
| Piano | Su più livelli, 2 totali |
| Occupato | Libero |
| Numero posti auto | 2 |
| Arredamento | Parziale |
Caratteristiche
Costi
| Prezzo | 585.000 € |
| Prezzo al m2 | 2.925 €/m2 |
Efficienza energetica
| Stato | Buono |
| Riscaldamento | Autonomo |
| Classe energetica | G |
| Indice di prestazione energetica (IPE) | 233 kWh/m2 anno |
Planimetrie
Indirizzo e mappa
Via Sant'Agostino, Pietrasanta
Annuncio senza mappa,
prova a chiedere la posizione all'inserzionista
prova a chiedere la posizione all'inserzionista
Calcolo mutuo
Prezzo di vendita:
Anticipo
20,00
Mutuo
80,00
Tasso: -+
Rata: 1.673 al mese
I risultati sono una stima indicativa basata sui dati inseriti e non costituiscono un’offerta finanziaria.
Inserzionista

Studiozero24 Pietrasanta
Via Oberdan 21, Pietrasanta
Mostra Telefono
Mostra Cellulare
Chiama
CONTATTA

