Negozio Via Burago 6, Vimercate
€ 1.680 al mese
Nel cuore di Vimercate, in posizione di forte passaggio e grande visibilità, proponiamo in locazione un elegante spazio commerciale già predisposto per attività di ristorazione, situato accanto allo storico Ponte di San Rocco, in Via Burago 6. Limmobile gode di tre ampie vetrine direttamente su strada, che conferiscono grande luminosità agli ambienti e una visibilità naturale ideale per attrarre la clientela. Una posizione strategica che unisce fascino storico e vivacità urbana. Il negozio è già allestito con cucina ad uso ristorante (lallestimento cucina e da acquistare a prezzo agevolato, non viene lasciato in dotazione con la locazione), rendendolo la soluzione perfetta per chi desidera avviare o trasferire la propria attività in uno spazio già pronto e funzionale. Ledificio è stato oggetto di una completa ristrutturazione nel 2019, che ha valorizzato il carattere storico dellimmobile integrandolo con comfort e impianti moderni. Durante lintervento si è scelto di conservare e restaurare gli antichi soffitti in legno, mentre sono state riportate alla luce le originali pareti del XVIII secolo, realizzate in mattoni e pietra a vista, elementi che oggi conferiscono agli ambienti unatmosfera autentica e di grande fascino. La proprietà offre inoltre impianti nuovi e certificati, riscaldamento autonomo e impianto di climatizzazione, garantendo comfort e funzionalità per lattività. Una soluzione ideale per ristoranti, bistrot, wine bar o locali di nuova concezione, dove il carattere storico delle finiture si fonde con la modernità degli impianti, creando un ambiente unico e suggestivo. Uno spazio capace di raccontare storia e atmosfera, perfetto per dare vita a un progetto gastronomico di qualità in una delle zone più caratteristiche di Vimercate.
Dati principali
| Riferimento | NEG.VIMERCATE-IZ1680A |
| Data annuncio | 18/03/2026 |
| Contratto | Affitto |
| Tipologia | Negozio |
| Superficie | 122 m2 |
| Locali | 1 (1 altro), 2 bagni |
| Piano | Terra |
| Occupato | Libero |
Caratteristiche
Costi
| Prezzo | 1.680 € al mese |
Efficienza energetica
| Stato | Ottimo |
| Riscaldamento | Autonomo |
| Classe energetica | F |
| Indice di prestazione energetica (IPE) | 312 kWh/m2 anno |
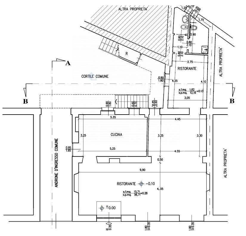
Planimetrie
Indirizzo e mappa
Via Burago
6, Vimercate
Annuncio senza mappa,
prova a chiedere la posizione all'inserzionista
prova a chiedere la posizione all'inserzionista
Inserzionista

Siacasa
Via Dante 2, Bellusco
Mostra Telefono
Mostra Cellulare
Chiama
CONTATTA

