Bilocale Via Fermi, Alghero
€ 151.000
Nuove Residenze di Prestigio ad Alghero Consegna 2027
A pochi passi dal meraviglioso Lido di Alghero nasce un progetto residenziale esclusivo: uno stabile di 7 piani, comprensivo di attico panoramico, realizzato da impresa solida e realtà imprenditoriale rinomata, che da anni opera nel settore con serietà e professionalità.
I 3 Punti di Forza:
1️⃣ Posizione Unica A circa 500 metri dal lungomare e vicinissimo alle spiagge più belle di Alghero, in una zona servita e ben collegata, che permette di vivere la città senza rinunciare alla tranquillità
2️⃣ Qualità Costruttiva e Classe Energetica Ledificio sarà realizzato nel pieno rispetto delle normative vigenti, con strutture antisismiche, isolamento termico e acustico di altissimo livello e la massima classe energetica per il massimo risparmio.
3️⃣ Personalizzazione degli Spazi In fase di costruzione sarà possibile scegliere tra appartamenti di varie metrature e personalizzare parte delle finiture interne, già di ottima qualità da capitolato.
Dettagli dellOfferta
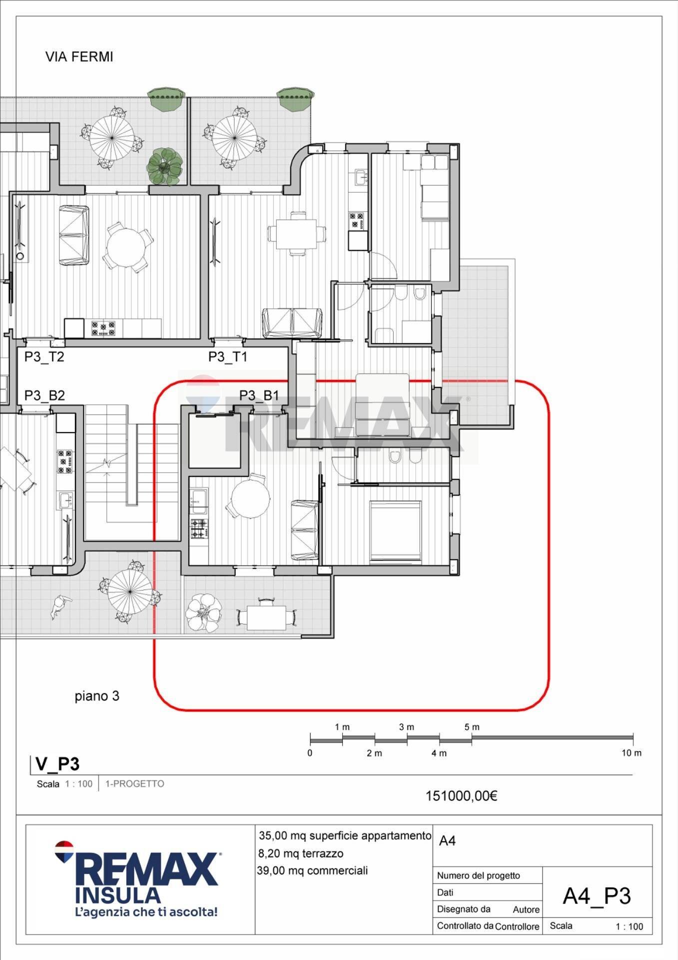
Bilocale al 3 piano (COD. P3_B1) di 39 mq (35 mq lordi), con terrazzo di 8,20 mq. Composto da soggiorno con angolo cottura, una camera da letto e un bagno.
. Possibilità' di acquisto garage e/o cantina separatamente
Locali luminosi e ben distribuiti, con terrazze e balconi vivibili
Vista mare garantita dal 4° piano in su
Consegna prevista per il 2027
Preliminare di vendita con tutte le garanzie di legge
Unopportunità rara per chi desidera unabitazione nuova, moderna e prestigiosa, o per chi cerca un investimento sicuro nella splendida Riviera del Corallo.
📞 Contattaci oggi stesso per ricevere informazioni sulle soluzioni disponibili e prenotare la tua futura casa in uno dei luoghi più ambiti della Sardegna.
A pochi passi dal meraviglioso Lido di Alghero nasce un progetto residenziale esclusivo: uno stabile di 7 piani, comprensivo di attico panoramico, realizzato da impresa solida e realtà imprenditoriale rinomata, che da anni opera nel settore con serietà e professionalità.
I 3 Punti di Forza:
1️⃣ Posizione Unica A circa 500 metri dal lungomare e vicinissimo alle spiagge più belle di Alghero, in una zona servita e ben collegata, che permette di vivere la città senza rinunciare alla tranquillità
2️⃣ Qualità Costruttiva e Classe Energetica Ledificio sarà realizzato nel pieno rispetto delle normative vigenti, con strutture antisismiche, isolamento termico e acustico di altissimo livello e la massima classe energetica per il massimo risparmio.
3️⃣ Personalizzazione degli Spazi In fase di costruzione sarà possibile scegliere tra appartamenti di varie metrature e personalizzare parte delle finiture interne, già di ottima qualità da capitolato.
Dettagli dellOfferta
Bilocale al 3 piano (COD. P3_B1) di 39 mq (35 mq lordi), con terrazzo di 8,20 mq. Composto da soggiorno con angolo cottura, una camera da letto e un bagno.
. Possibilità' di acquisto garage e/o cantina separatamente
Locali luminosi e ben distribuiti, con terrazze e balconi vivibili
Vista mare garantita dal 4° piano in su
Consegna prevista per il 2027
Preliminare di vendita con tutte le garanzie di legge
Unopportunità rara per chi desidera unabitazione nuova, moderna e prestigiosa, o per chi cerca un investimento sicuro nella splendida Riviera del Corallo.
📞 Contattaci oggi stesso per ricevere informazioni sulle soluzioni disponibili e prenotare la tua futura casa in uno dei luoghi più ambiti della Sardegna.
Dati principali
| Riferimento | 41191001-567 |
| Data annuncio | 18/03/2026 |
| Contratto | Vendita |
| Tipologia | Appartamento |
| Superficie | 39 m2 |
| Locali | 2 (1 camera da letto, 1 altro), 1 bagno, cucina a vista |
| Piano | 5 di 1 totali |
| Tipo di costruzione | Media |
| Occupato | Libero |
| Box auto | Assente |
Caratteristiche
Costi
| Prezzo | 151.000 € |
| Prezzo al m2 | 3.872 €/m2 |
Efficienza energetica
| Tipo Alimentazione Riscaldamento | Fotovoltaico |
| Classe energetica | Immobile esente da certificazione energetica |
Planimetrie
Indirizzo e mappa
Via Fermi, Alghero
Annuncio senza mappa,
prova a chiedere la posizione all'inserzionista
prova a chiedere la posizione all'inserzionista
Calcolo mutuo
Prezzo di vendita:
Anticipo
20,00
Mutuo
80,00
Tasso: -+
Rata: 432 al mese
I risultati sono una stima indicativa basata sui dati inseriti e non costituiscono un’offerta finanziaria.
Inserzionista

RE/MAX Insula
Viale Italia, 7, Sassari
Mostra Telefono
Mostra Cellulare
Chiama
CONTATTA

