Bilocale via Bligny, 15, Torino (zona Centro)
€ 220.000CENTRO TORINO - BILOCALE DI 51 MQ CON ASCENSORE
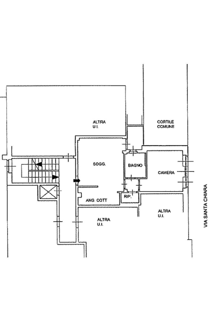
Lo Studio Cirillo Immobili propone in vendita bilocale situato nel cuore del centro storico di Torino, precisamente in Via Bligny 15, a pochi passi dalla rinomata Via Garibaldi, una delle vie pedonali più vivaci e ricche di servizi della città. L’appartamento si trova al terzo piano con ascensore all’interno di uno stabile degli anni'60 dotato di servizio di portineria, elemento che garantisce maggiore sicurezza e comodità. Internamente l’immobile è composto da ingresso living su zona giorno, con parete cottura e area soggiorno ben organizzata, disimpegno che conduce alla camera da letto dotata di cabina armadi, bagno e comodo ripostiglio. La soluzione si presenta in buono stato interno, pronto per essere abitato o facilmente personalizzabile secondo le proprie esigenze. È inoltre dotato di riscaldamento centralizzato e impianto di climatizzazione, garantendo comfort abitativo in ogni stagione. Grazie alla posizione centralissima, alla vicinanza ai principali servizi, mezzi pubblici e attività commerciali, questa soluzione rappresenta un’ottima opportunità sia come abitazione principale sia come investimento. Studio ”CIRILLO IMMOBILI S.A.S. ” con socio unico Andrea Cirillo, corso Tortona n. 18/A 10153 TORINO (TO) – TEL: 011.197. 06.935 – CEL: 392.69. 27.748. mail: – SITO: La nostra esperienza al vostro servizio Cirillo Immobili mette a vostra disposizione la sua esperienza nel settore immobiliare maturata nel corso degli anni, la sua cortesia e competenza. La nostra volontà di offrirvi servizi di livello sempre alto rendono semplice la compravendita e l’affitto di immobili, guidandovi e consigliandovi con cura e trasparenza in tutte le fasi della trattativa fino alla realizzazione finale.
Dati principali
| Riferimento | Bligny15 |
| Data annuncio | 07/03/2026 |
| Contratto | Vendita |
| Tipologia | Appartamento |
| Superficie | 52 m2 |
| Locali | 2 (1 camera da letto, 1 altro), 1 bagno, cucina abitabile |
| Piano | 3 di 4 totali |
| Tipo di costruzione | Media |
| Numero di balconi | 1 |
| Box auto | Assente |
| Arredamento | Assente |
Caratteristiche
Costi
| Prezzo | 220.000 € |
| Prezzo al m2 | 4.231 €/m2 |
| Spese condominiali | € 70,00/mese |
Efficienza energetica
| Anno costruzione | 1960 |
| Stato | Buono |
| Riscaldamento | Centralizzato |
| Classe energetica | F |
| Indice di prestazione energetica (IPE) | 261.58 kWh/m2 anno |
Planimetrie
Indirizzo e mappa
via Bligny, 15, Torino - quartiere Centro
Calcolo mutuo
Prezzo di vendita:
Anticipo
20,00
Mutuo
80,00
Tasso: -+
Rata: 629 al mese
I risultati sono una stima indicativa basata sui dati inseriti e non costituiscono un’offerta finanziaria.
Inserzionista

Cirillo Immobili
Corso Tortona n.18 / A, Torino
Mostra Telefono
Mostra Cellulare
Chiama
CONTATTA

