Ufficio piazza Maggiore, Bologna (zona Centro Storico)
€ 8.300 al mese
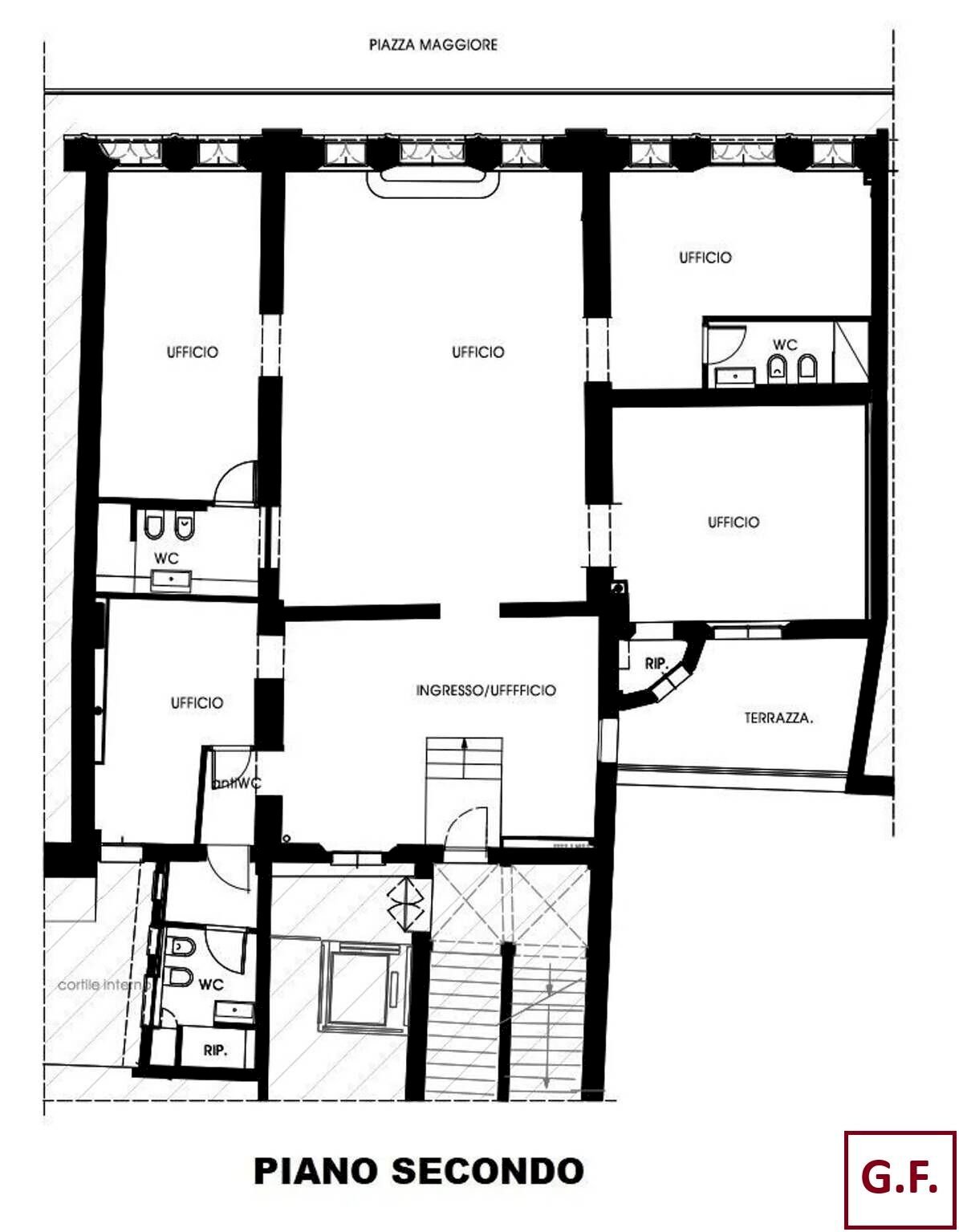
Info e visite: Paolo 345.82.20.837 Proponiamo in locazione un ampio ufficio, nel cuore storico della città. La soluzione è ideale per studi professionali, aziende o enti che cercano una sede rappresentativa nel cuore della città. L'ufficio si sviluppa su una superficie di circa 240 mq, con ambienti ben distribuiti e ottima luminosità naturale. E' dotato di 3 bagni, impianto di riscaldamento condominiale a pavimento e condizionamento a soffitto con unità esterna autonoma. L'immobile è conforme alle normative di sicurezza, grazie alla presenza del sistema antincendio con illuminazione di emergenza. Gli spazi si prestano a diverse configurazioni, adattandosi facilmente alle esigenze operative di studi associati, sedi direzionali o attività professionali. L'immobile è ubicato nel pieno centro storico di Bologna, a pochi metri da Piazza Maggiore e ben servito da mezzi pubblici, parcheggi e servizi. La zona è caratterizzata dalla presenza di importanti attività istituzionali, commerciali e professionali, rendendo questa soluzione ideale per chi desidera un'immagine di prestigio e visibilità.
Dati principali
| Riferimento | ID2998127 |
| Data annuncio | 09/03/2026 |
| Contratto | Affitto |
| Tipologia | Ufficio |
| Superficie | 240 m2 |
| Piano | 1 totali |
| Tipo di costruzione | Signorile |
| Uso immobile | Commerciale |
Caratteristiche
Costi
| Prezzo | 8.300 € al mese |
| Spese condominiali | € 400,00/mese |
Efficienza energetica
| Riscaldamento | Centralizzato |
| Classe energetica | E |
| Indice di prestazione energetica (IPE) | 65 kWh/m2 anno |
Planimetrie
Indirizzo e mappa
piazza Maggiore, Bologna - quartiere Centro Storico
Inserzionista

Generale Fondiaria
Via San Vitale 36/C, Bologna
Mostra Telefono
Mostra Cellulare
Chiama
CONTATTA

