Quadrilocale viale Dante, Medesano
€ 149.000Medesano grazioso appartamento su 2 livelli, ampio terrazzo
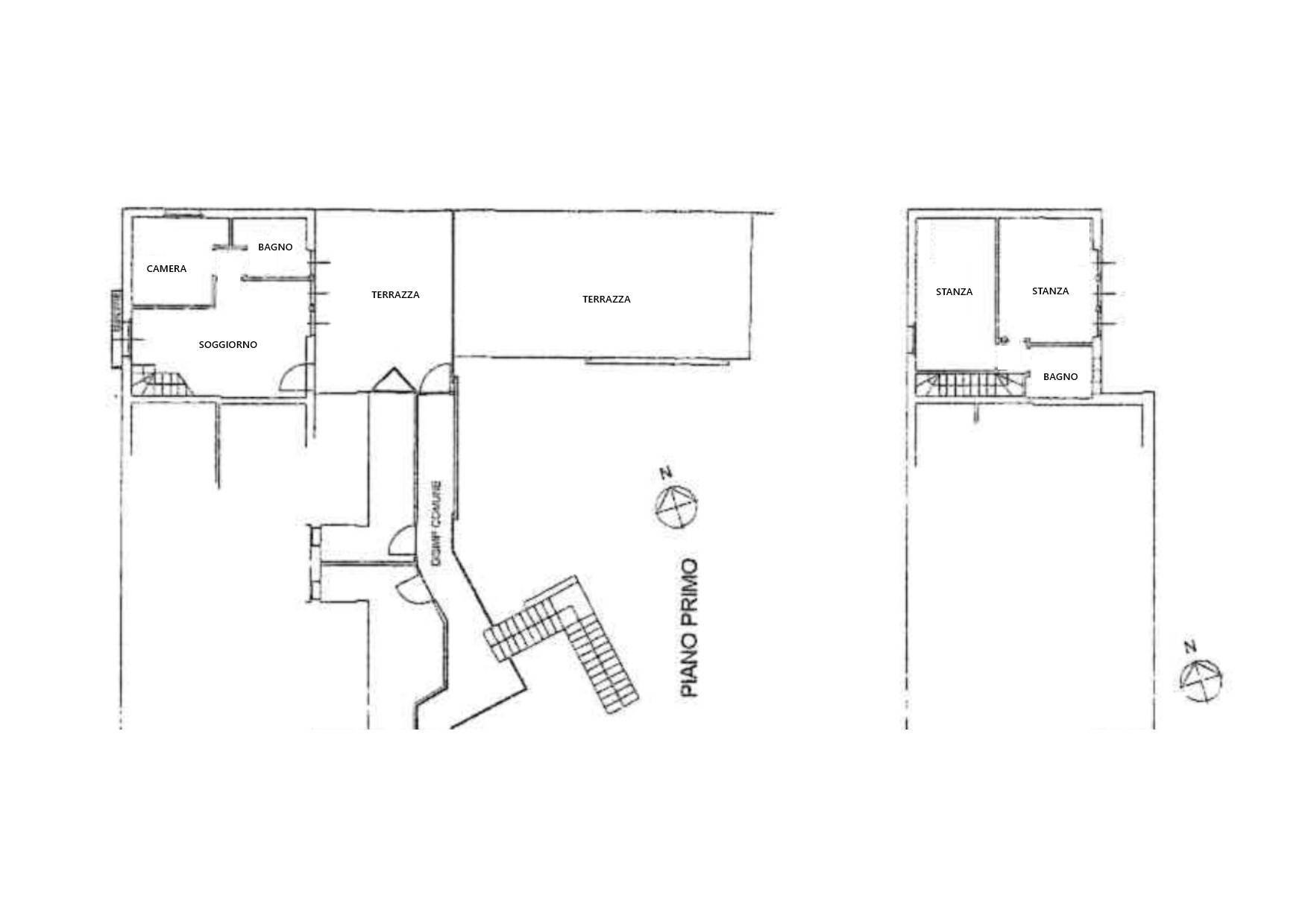
Medesano In tranquilla zona residenziale, proponiamo in vendita grazioso appartamento di recente costruzione, con ingresso indipendente su ampia terrazza vivibile, disposto su due livelli (primo piano + mansarda). L'immobile è termoautonomo e si presenta in ottime condizioni. Al primo livello troviamo un luminoso soggiorno e angolo cottura con accesso diretto all’ampia veranda/terrazza di pertinenza, perfetta per momenti di relax e conviviali, una camera da letto ed un bagno finestrato. Una comoda scala interna conduce al piano superiore mansardato dove troviamo due ulteriori stanze, ideali come camere, studio o zona hobby ed il secondo servizio. L’immobile è accessoriato di un posto auto di proprietà ed un vano ad uso cantina. La proprietà è la soluzione perfetta per giovani coppie, famiglie o per chi desidera spazi versatili in un contesto recente e ben curato. Cl. Energetica D. Prezzo molto interessante di € 149.000. Rif. V931.
Dati principali
| Riferimento | V931 |
| Data annuncio | 11/03/2026 |
| Contratto | Vendita |
| Tipologia | Appartamento |
| Superficie | 80 m2 |
| Locali | 4 (3 camere da letto, 1 altro), 2 bagni, cucina angolo cottura |
| Piano | 1 totali |
| Tipo di costruzione | Signorile |
| Numero di terrazzi | 1 |
| Numero di balconi | 1 |
| Numero posti auto | 1 |
| Arredamento | Assente |
Caratteristiche
Costi
| Prezzo | 149.000 € |
| Prezzo al m2 | 1.863 €/m2 |
| Spese condominiali | € 15,00/mese |
Efficienza energetica
| Anno costruzione | 2012 |
| Stato | Ottimo |
| Riscaldamento | Autonomo |
| Classe energetica | D |
| Indice di prestazione energetica (IPE) | 126.6 kWh/m2 anno |
Planimetrie
Indirizzo e mappa
viale Dante, Medesano
Calcolo mutuo
Prezzo di vendita:
Anticipo
20,00
Mutuo
80,00
Tasso: -+
Rata: 426 al mese
I risultati sono una stima indicativa basata sui dati inseriti e non costituiscono un’offerta finanziaria.
Inserzionista

Edil Consult
Strada Langhirano 50/A, Parma
Mostra Telefono
Chiama
CONTATTA

