Rustico via Vecchia Bagliani, 60, Alessandria
€ 110.000CASCINALE ALLE PORTE DELLA CITTA'
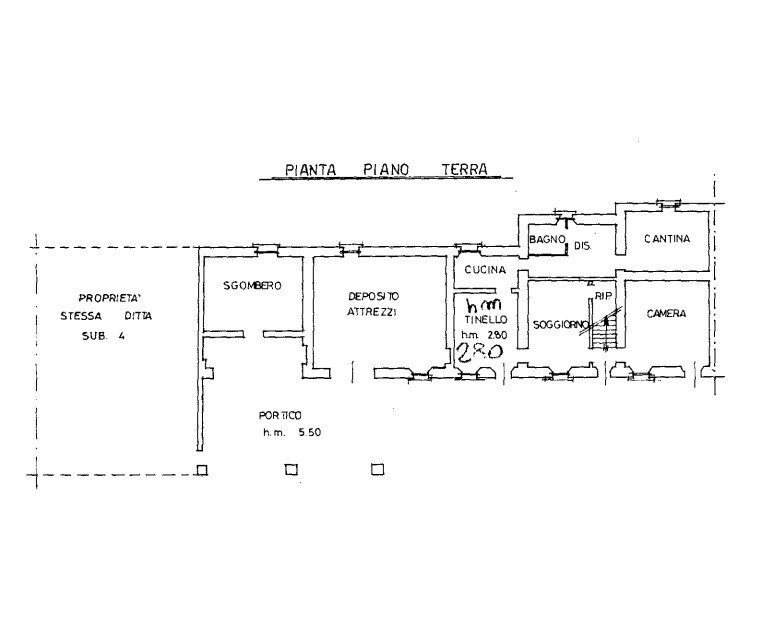
via Vecchia dei Bagliani, a pochi km dalla città, all'ingresso del sobborgo di Casalbagliano, vendesi cascinale di ampia metratura libero su 3 lati, disposto su 2 piani con adiacenti tettoie ricovero attrezzi e grande sedime di proprietà; l'abitazione che si sviluppa su 2 livelli presenta al piano terreno l'ingresso su un soggiorno con camino, cucina abitabile, una camera, bagno; comoda scala per il piano superiore in cui si trovano altre 5 camere e un secondo servizio; completa la proprietà un box auto e alcuni locali sgombero con il sovrastante fienile che all'occorrenza potrebbe essere recuperato per ampliare la superficie abitativa; l'immobile per la sua grande dimensione si presterebbe anche ad essere trasformato in una abitazione bifamiliare. L’Agenzia Immobiliare Sturla si basa su un’esperienza ormai consolidata da anni, su una professionalità che sta alla base del suo lavoro, e una disponibilità sempre presente rivolta ai suoi potenziali clienti, a cui offre una serie di servizi: VALUTAZIONE IMMOBILE: dopo un’attenta analisi visiva, tecnica, commerciale dell’immobile di Vs.proprietà, si consegna una valutazione commerciale comparativa di mercato; servizio gratuito. Le valutazioni vengono effettuate su appartamenti, case, ville, capannoni, locali commerciali, terreni agricoli ed edificabili; GARANZIA PUBBLICITARIA: presenza su testate pubblicitarie di settore; visibilità sul Ns. sito www.sturlaimmobiliare.it, e visibilità sul altri portali immobiliari; AGGIORNAMENTO ANDAMENTO VENDITA: aggiornamenti periodici ogni 30 giorni sull’andamento della vendita del Vs. immobile con consegna di una documentazione relativa a pubblicità effettuata, lista delle visite dei potenziali acquirenti presso il Vs. immobile o presso i Ns. uffici con la visione di foto e planimetrie, e lista di contatti avuti tramite internet sul Ns. sito e sui portali immobiliari,che hanno mostrato interesse sul Vs. immobile: ed infine eventuale analisi dell’andamento del Vs. immobile sul mercato con alcuni consigli per poter avere maggiori possibilità di vendita; SVILUPPO LAVORO E BANCA DATI: Il conferimento di incarico di mediazione immobiliare presso la ns. struttura comporterà una prima analisi dell’immobile con i controlli dei documenti consegnati (atti di acquisto, planimetrie e visure catastali, dati urbanistici e controlli ipotecari); in un secondo momento proposizione dell’immobile ai potenziali clienti acquirenti con l’invio della pubblicità del Vs. immobile ad una Mailing-list presente nei ns. archivi informatici, ottimo e veloce veicolo pubblicitario; sviluppo di una presentazione dell’immobile tramite supporto informatico dove si visualizzano foto, planimetrie, scheda riepilogativa dell’immobile stesso; CONSULENZA TECNICA da parte di tecnici convenzionati con noi e loro eventuale redazione Attestato Prestazione Energetica; ASSISTENZA fino alla stipula del rogito notarile per entrambi le parti.
Dati principali
| Riferimento | VVDEB |
| Data annuncio | 03/03/2026 |
| Contratto | Vendita |
| Tipologia | Rustico |
| Superficie | 284 m2 |
| Locali | più di 5 (6 camere da letto, 2 altro), 2 bagni, cucina abitabile |
| Piano | 2 totali |
| Tipo di costruzione | Signorile |
| Numero di balconi | 1 |
| Box auto | Doppio |
| Numero posti auto | 1 |
| Arredamento | Assente |
Caratteristiche
Costi
| Prezzo | 110.000 € |
| Prezzo al m2 | 387 €/m2 |
Efficienza energetica
| Anno costruzione | 1900 |
| Stato | Da ristrutturare |
| Riscaldamento | Autonomo |
| Classe energetica | E |
| Indice di prestazione energetica (IPE) | 175 kWh/m2 anno |
Planimetrie
Indirizzo e mappa
via Vecchia Bagliani, 60, Alessandria
Calcolo mutuo
Prezzo di vendita:
Anticipo
20,00
Mutuo
80,00
Tasso: -+
Rata: 315 al mese
I risultati sono una stima indicativa basata sui dati inseriti e non costituiscono un’offerta finanziaria.
Inserzionista

Sturla Immobiliare
C.so Roma 110, Alessandria
Mostra Telefono
Chiama
CONTATTA

