Villa Via Pasubio 5, Sava
€ 250.000
SAVA - Villa Esclusiva con Frantoio Ipogeo e Atmosfera Storica Questa elegante Villa di 355mq si sviluppa su più livelli, fondendo eleganza, storia e modernità. Immersa in un'oasi di tranquillità, questa prestigiosa Villa si distingue per il suo carattere raffinato e la perfetta fusione tra storia, eleganza e funzionalità. Lingresso principale accoglie con un cancello carrabile automatico, che conduce a un'ampia area parcheggio per più auto, mentre un cancelletto pedonale introduce a un romantico vialetto che attraversa il verde, anticipando la maestosità della dimora. Salendo pochi gradini, si accede all'ingresso principale, un ambiente curato nei dettagli che lascia subito intravedere la bellezza degli spazi interni. Alla destra, un elegante studio si affaccia su una veranda privata, un angolo intimo e perfetto per chi cerca uno spazio riservato e luminoso. Di fronte, sottoposto di pochi gradini, ci si immerge nel cuore pulsante della casa: un living straordinariamente ampio, caratterizzato da imponenti volte a stella e nicchie incastonate nelle pareti, che donano fascino e profondità all'ambiente. Qui, le grandi aperture verso il giardino di circa 180 mq creano un legame continuo con lo scoperto esterno, regalando luce naturale e una piacevole continuità tra interno ed esterno. A completare il piano, un disimpegno conduce a una zona funzionale e ben organizzata: una cucina separata con dispensa e un ripostiglio che potrebbe diventare un bagno. Al piano superiore, la zona notte è un vero rifugio di relax. Qui si trovano tre spaziose camere da letto, due delle quali con bagno en-suite, a garantire il massimo della privacy e del comfort. Una delle camere, la suite padronale, è impreziosita da un'ampia cabina armadio, perfetta per chi ama gli spazi eleganti e ben organizzati. A servizio del piano, è inoltre presente un bagno, oltre a un pratico ripostiglio. Il vero fiore all'occhiello di questo livello è l'ampio terrazzo angolare, che circonda il perimetro della casa, regalando una vista unica sugli spazi verdi e sulla storicità dell'abitazione. A rendere questa dimora un pezzo unico è il suo frantoio ipogeo dei primi del Novecento, una meraviglia architettonica sotterranea, che conserva ancora oggi le antiche macine in pietra, e che racconta la storia del territorio e dona alla proprietà un valore inestimabile. Un luogo che racchiude fascino e suggestione, perfetto per essere valorizzato come spazio espositivo, o angolo dal sapore antico e autentico. Questa Villa non è solo una residenza, ma una vera esperienza abitativa, capace di coniugare il prestigio della storia con il comfort della modernità. Ogni ambiente è pensato per offrire il massimo della vivibilità, in un contesto esclusivo e raffinato. Un'opportunità imperdibile per chi è alla ricerca di una dimora di classe, perfetta sia come abitazione principale che come investimento di pregio. Sava dista 15 km dalla costa ionica, 30 km da Taranto e 7 km da Manduria.
Dati principali
| Riferimento | CBI104-2688-343 |
| Data annuncio | 18/03/2026 |
| Contratto | Vendita |
| Tipologia | Villa |
| Superficie | 300 m2 |
| Locali | più di 5 (3 camere da letto, 6 altro), 2 bagni, cucina cucinino |
| Piano | Su più livelli, 3 totali |
| Occupato | Libero |
| Arredamento | Assente |
Caratteristiche
Costi
| Prezzo | 250.000 € |
| Prezzo al m2 | 833 €/m2 |
Efficienza energetica
| Stato | Ottimo |
| Riscaldamento | Autonomo |
| Classe energetica | E |
| Indice di prestazione energetica (IPE) | 144 kWh/m2 anno |
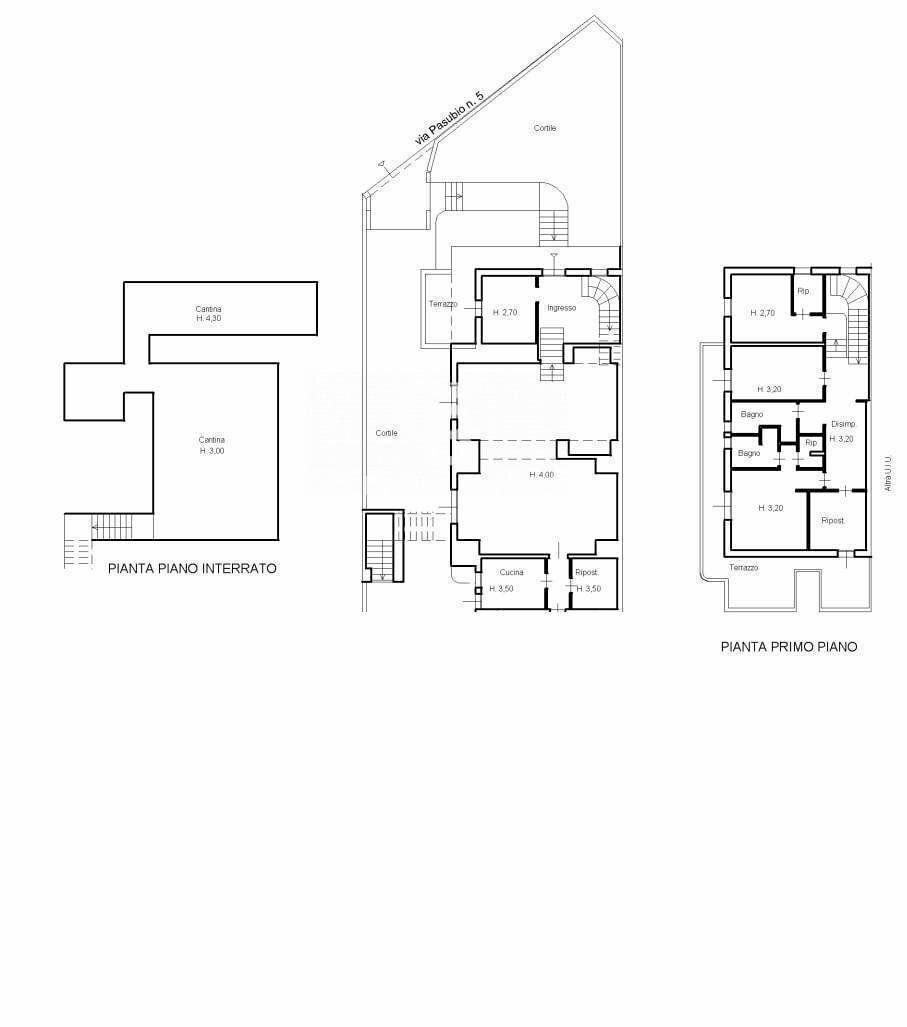
Planimetrie
Virtual tour
Indirizzo e mappa
Via Pasubio
5, Sava
Annuncio senza mappa,
prova a chiedere la posizione all'inserzionista
prova a chiedere la posizione all'inserzionista
Calcolo mutuo
Prezzo di vendita:
Anticipo
20,00
Mutuo
80,00
Tasso: -+
Rata: 715 al mese
I risultati sono una stima indicativa basata sui dati inseriti e non costituiscono un’offerta finanziaria.
Inserzionista

Coldwell Banker Gruppo Bodini
Piazza Dante Alighieri, 43, Galatina
Mostra Telefono
Mostra Cellulare
Chiama
CONTATTA

