Appartamento Via Pietro Tacchini 19, Roma
€ 790.000
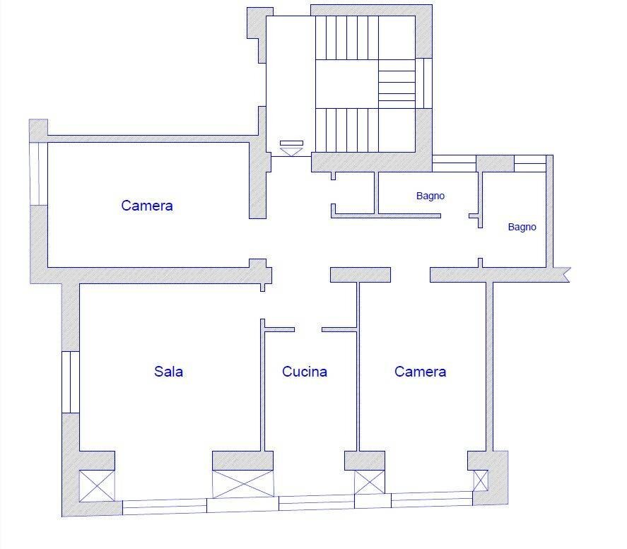
Pinciano - Via Tacchini - Abbiamo il piacere di porre in vendita un incantevole appartamento dal sapore classico all'interno di un palazzo d'epoca posto nella parte alta di Via Pietro Tacchini, quartiere Pinciano. L'immobile mantiene pavimenti e decori d'epoca ma si presta anche ad una ristrutturazione e ad un arredamento in chiave moderna. L'attuale layout prevede un'ampia zona giorno, 2 camere matrimoniali e 2 bagni, la metratura é di circa 135 mq. L'esposizione angolare e le ampie vetrate donano una grande luminosità; la generosità delle altezze dei soffitti regala volumi da casa di rappresentanza. Si tratta di una soluzione ideale per la famiglia, ma anche come studio professionale o investimento per messa a reddito.
Dati principali
| Riferimento | CBI100-160-290795 |
| Data annuncio | 18/03/2026 |
| Contratto | Vendita |
| Tipologia | Appartamento |
| Superficie | 135 m2 |
| Locali | 3 (2 camere da letto, 1 altro), 2 bagni, cucina abitabile |
| Piano | 1 di 5 totali |
| Tipo di costruzione | Signorile |
| Occupato | Libero |
| Box auto | Assente |
| Arredamento | Assente |
Caratteristiche
Costi
| Prezzo | 790.000 € |
| Prezzo al m2 | 5.852 €/m2 |
Efficienza energetica
| Stato | Buono |
| Riscaldamento | Autonomo |
| Classe energetica | G |
| Indice di prestazione energetica (IPE) | 175 kWh/m2 anno |
Planimetrie
Indirizzo e mappa
Via Pietro Tacchini
19, Roma
Annuncio senza mappa,
prova a chiedere la posizione all'inserzionista
prova a chiedere la posizione all'inserzionista
Calcolo mutuo
Prezzo di vendita:
Anticipo
20,00
Mutuo
80,00
Tasso: -+
Rata: 2.259 al mese
I risultati sono una stima indicativa basata sui dati inseriti e non costituiscono un’offerta finanziaria.
Inserzionista
Chiama
CONTATTA


