Villa Via Massimi 146, Roma
€ 2.150.000
In zona Camilluccia
Esclusiva Villa in Via Massimi: UnOasi di Luce e Verde a Roma Nord
Nella parte più signorile e riservata di Via Massimi, proponiamo la vendita di una straordinaria villa di circa 400 mq, incastonata in un condominio délite tra i più curati della zona, con servizio di portineria attivo l'intera giornata.
Un Affaccio Privilegiato sulla Natura
La proprietà gode di una posizione dominante e di un'esposizione invidiabile: le ampie vetrate regalano affacci suggestivi e silenziosi direttamente sul verde, offrendo una rara sensazione di isolamento e pace, pur trovandosi a pochi minuti dai principali servizi della Capitale.
Gli spazi interni sono stati concepiti per il massimo del prestigio e della convivialità:
Triplo Salone di Rappresentanza: Un ambiente monumentale e luminosissimo che si apre verso l'esterno.
Grande Sala da Pranzo : Uno spazio dedicato ai grandi eventi, capace di ospitare comodamente una tavolata per 20 persone.
Giardino Privato di 600 mq: Una vera estensione della casa, ideale per creare zone living all'aperto, cene sotto le stelle o un'area gioco protetta.
La Zona Notte e il Comfort
La villa si presta a soddisfare le esigenze di una famiglia numerosa o di chi ama ospitare, con una distribuzione degli spazi di alto profilo:
6 ampie camere da letto.
7 bagni, per garantire la massima indipendenza a ogni componente della famiglia.
Zona di servizio indipendente con camera e bagno dedicato.
Pertinenze e Potenziale
A completare questa rara opportunità, un box auto di 65 mq, metratura introvabile che permette il ricovero di più vetture di grandi dimensioni e spazio per storage.
Esclusiva Villa in Via Massimi: UnOasi di Luce e Verde a Roma Nord
Nella parte più signorile e riservata di Via Massimi, proponiamo la vendita di una straordinaria villa di circa 400 mq, incastonata in un condominio délite tra i più curati della zona, con servizio di portineria attivo l'intera giornata.
Un Affaccio Privilegiato sulla Natura
La proprietà gode di una posizione dominante e di un'esposizione invidiabile: le ampie vetrate regalano affacci suggestivi e silenziosi direttamente sul verde, offrendo una rara sensazione di isolamento e pace, pur trovandosi a pochi minuti dai principali servizi della Capitale.
Gli spazi interni sono stati concepiti per il massimo del prestigio e della convivialità:
Triplo Salone di Rappresentanza: Un ambiente monumentale e luminosissimo che si apre verso l'esterno.
Grande Sala da Pranzo : Uno spazio dedicato ai grandi eventi, capace di ospitare comodamente una tavolata per 20 persone.
Giardino Privato di 600 mq: Una vera estensione della casa, ideale per creare zone living all'aperto, cene sotto le stelle o un'area gioco protetta.
La Zona Notte e il Comfort
La villa si presta a soddisfare le esigenze di una famiglia numerosa o di chi ama ospitare, con una distribuzione degli spazi di alto profilo:
6 ampie camere da letto.
7 bagni, per garantire la massima indipendenza a ogni componente della famiglia.
Zona di servizio indipendente con camera e bagno dedicato.
Pertinenze e Potenziale
A completare questa rara opportunità, un box auto di 65 mq, metratura introvabile che permette il ricovero di più vetture di grandi dimensioni e spazio per storage.
Dati principali
| Riferimento | CBI100-551-290774 |
| Data annuncio | 18/03/2026 |
| Contratto | Vendita |
| Tipologia | Villa |
| Superficie | 400 m2 |
| Locali | più di 5 (6 camere da letto, 2 altro), 7 bagni, cucina abitabile |
| Piano | Su più livelli, 3 totali |
| Tipo di costruzione | Signorile |
| Occupato | Libero |
| Box auto | Triplo |
| Numero posti auto | 3 |
| Arredamento | Parziale |
Caratteristiche
Costi
| Prezzo | 2.150.000 € |
| Prezzo al m2 | 5.375 €/m2 |
Efficienza energetica
| Stato | Da ristrutturare |
| Riscaldamento | Autonomo |
| Classe energetica | G |
| Indice di prestazione energetica (IPE) | 175 kWh/m2 anno |
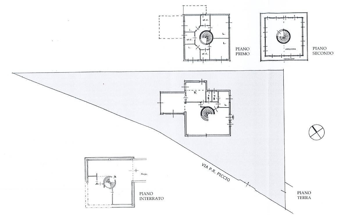
Planimetrie
Video
Indirizzo e mappa
Via Massimi
146, Roma
Annuncio senza mappa,
prova a chiedere la posizione all'inserzionista
prova a chiedere la posizione all'inserzionista
Calcolo mutuo
Prezzo di vendita:
Anticipo
20,00
Mutuo
80,00
Tasso: -+
Rata: 6.149 al mese
I risultati sono una stima indicativa basata sui dati inseriti e non costituiscono un’offerta finanziaria.
Inserzionista
Chiama
CONTATTA


