Terreno agricolo contrada montelotorto, Ostuni
€ 48.000
Nel suggestivo paesaggio rurale di Ostuni, in Contrada Montelotorto, proponiamo in vendita un terreno di circa 4.595 mq, coltivato a uliveto e immerso nel verde e nella quiete della campagna pugliese.
ð Situato a soli 2 km dal centro di
Ostuni
, in posizione riservata ma facilmente accessibile, il terreno offre la possibilità di realizzare una villa indipendente di nuova costruzione, con progetto già depositato e attualmente in fase di approvazione.
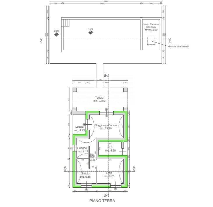
Il progetto prevede:Superficie lorda: 55 mq
Locale tecnico: 5,25 mq
Veranda coperta: 30 mq
Piscina privata: 40 mq
Distribuzione degli spazi interni (superficie utile: 48 mq):Ampio soggiorno con cucina a vista
Camera matrimoniale
Cameretta
Disimpegno
Bagno di servizio
Perché scegliere questa proprietà:Progetto già definito, con possibilità di personalizzazione
Ottima opportunità di investimento, ideale sia come residenza privata che come struttura turistico-ricettiva
Contesto autentico e panoramico, immerso tra ulivi secolari e natura
Contattaci per ricevere maggiori informazioni, planimetrie dettagliate e per organizzare una visita sul posto.
Unoccasione unica per realizzare la tua casa dei sogni o una struttura ricettiva nel cuore della Puglia. ð¿ð¡
ð Situato a soli 2 km dal centro di
Ostuni
, in posizione riservata ma facilmente accessibile, il terreno offre la possibilità di realizzare una villa indipendente di nuova costruzione, con progetto già depositato e attualmente in fase di approvazione.
Il progetto prevede:Superficie lorda: 55 mq
Locale tecnico: 5,25 mq
Veranda coperta: 30 mq
Piscina privata: 40 mq
Distribuzione degli spazi interni (superficie utile: 48 mq):Ampio soggiorno con cucina a vista
Camera matrimoniale
Cameretta
Disimpegno
Bagno di servizio
Perché scegliere questa proprietà:Progetto già definito, con possibilità di personalizzazione
Ottima opportunità di investimento, ideale sia come residenza privata che come struttura turistico-ricettiva
Contesto autentico e panoramico, immerso tra ulivi secolari e natura
Contattaci per ricevere maggiori informazioni, planimetrie dettagliate e per organizzare una visita sul posto.
Unoccasione unica per realizzare la tua casa dei sogni o una struttura ricettiva nel cuore della Puglia. ð¿ð¡
Dati principali
| Riferimento | CBI092-2596-63993 |
| Data annuncio | 18/03/2026 |
| Contratto | Vendita |
| Tipologia | Terreno agricolo |
| Superficie | 4595 m2 |
| Occupato | Libero |
Costi
| Prezzo | 48.000 € |
| Prezzo al m2 | 10 €/m2 |
Efficienza energetica
| Tipo Alimentazione Riscaldamento | Altro |
| Classe energetica | Immobile esente da certificazione energetica |
Planimetrie
Indirizzo e mappa
contrada montelotorto, Ostuni
Annuncio senza mappa,
prova a chiedere la posizione all'inserzionista
prova a chiedere la posizione all'inserzionista
Calcolo mutuo
Prezzo di vendita:
Anticipo
20,00
Mutuo
80,00
Tasso: -+
Rata: 137 al mese
I risultati sono una stima indicativa basata sui dati inseriti e non costituiscono un’offerta finanziaria.
Chiama
CONTATTA


