Quadrilocale Via Milano, Garbagnate Milanese
€ 220.000Quadrilocale in vendita
Quadrilocale panoramico con terrazzo e box - stabile riqualificato con Eco-Bonus 110%
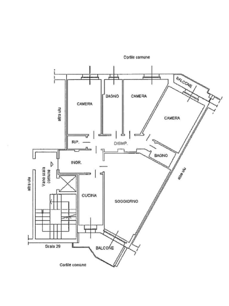
Proponiamo in vendita un luminoso quadrilocale situato al quinto piano di uno stabile recentemente oggetto di un'importante riqualificazione grazie agli interventi dell'Eco-Bonus 110%, lavori che hanno interessato l'intero edificio migliorandone sensibilmente l'efficienza energetica e il comfort abitativo. Il palazzo è stato infatti dotato di cappotto termico, sono stati sostituiti tutti gli infissi con moderni serramenti a doppi vetri con taglio termico e acustico ed è stato completamente rifatto il tetto, interventi che garantiscono un significativo risparmio energetico e una migliore qualità della vita quotidiana.
Entrando nell'appartamento si viene accolti da un comodo disimpegno che accompagna naturalmente verso la zona giorno. Qui troviamo una spaziosa cucina abitabile, perfetta per la vita di tutti i giorni, che conduce alla luminosa zona living, un ambiente ampio e accogliente pensato per i momenti di relax e convivialità.
Entrambi gli ambienti affacciano direttamente su un piacevole terrazzo con esposizione a sud-ovest, uno spazio esterno ideale per godersi la luce naturale durante tutto il pomeriggio fino al tramonto.
La casa prosegue attraverso il disimpegno della zona notte, dove gli spazi sono stati organizzati in modo funzionale per garantire privacy e comodità. Qui troviamo un pratico ripostiglio, due camerette di generose dimensioni, perfette come stanze per i figli, studio o area hobby, e un primo bagno finestrato.
Proseguendo si apre l'ampia camera matrimoniale, impreziosita da un balconcino privato che offre uno sfogo esterno riservato, mentre a completare la zona notte troviamo un secondo servizio dotato di ventilazione meccanizzata e doccia.
L'immobile si presenta già dotato di aria condizionata e beneficia di infissi completamente nuovi, elementi che contribuiscono a rendere l'abitazione confortevole in ogni stagione.
A completare la proprietà vi è anche un box auto di proprietà, una comodità preziosa che arricchisce ulteriormente questa soluzione abitativa.
L'appartamento è libero da subito e rappresenta un'ottima opportunità per chi è alla ricerca di una casa pronta da vivere, inserita in un contesto recentemente riqualificato e attento all'efficienza energetica.
Non perdere questa occasione: scrivici su WhatsApp oppure chiamaci al numero 02.4969.3530 per ricevere maggiori informazioni o per fissare una visita.
Proponiamo in vendita un luminoso quadrilocale situato al quinto piano di uno stabile recentemente oggetto di un'importante riqualificazione grazie agli interventi dell'Eco-Bonus 110%, lavori che hanno interessato l'intero edificio migliorandone sensibilmente l'efficienza energetica e il comfort abitativo. Il palazzo è stato infatti dotato di cappotto termico, sono stati sostituiti tutti gli infissi con moderni serramenti a doppi vetri con taglio termico e acustico ed è stato completamente rifatto il tetto, interventi che garantiscono un significativo risparmio energetico e una migliore qualità della vita quotidiana.
Entrando nell'appartamento si viene accolti da un comodo disimpegno che accompagna naturalmente verso la zona giorno. Qui troviamo una spaziosa cucina abitabile, perfetta per la vita di tutti i giorni, che conduce alla luminosa zona living, un ambiente ampio e accogliente pensato per i momenti di relax e convivialità.
Entrambi gli ambienti affacciano direttamente su un piacevole terrazzo con esposizione a sud-ovest, uno spazio esterno ideale per godersi la luce naturale durante tutto il pomeriggio fino al tramonto.
La casa prosegue attraverso il disimpegno della zona notte, dove gli spazi sono stati organizzati in modo funzionale per garantire privacy e comodità. Qui troviamo un pratico ripostiglio, due camerette di generose dimensioni, perfette come stanze per i figli, studio o area hobby, e un primo bagno finestrato.
Proseguendo si apre l'ampia camera matrimoniale, impreziosita da un balconcino privato che offre uno sfogo esterno riservato, mentre a completare la zona notte troviamo un secondo servizio dotato di ventilazione meccanizzata e doccia.
L'immobile si presenta già dotato di aria condizionata e beneficia di infissi completamente nuovi, elementi che contribuiscono a rendere l'abitazione confortevole in ogni stagione.
A completare la proprietà vi è anche un box auto di proprietà, una comodità preziosa che arricchisce ulteriormente questa soluzione abitativa.
L'appartamento è libero da subito e rappresenta un'ottima opportunità per chi è alla ricerca di una casa pronta da vivere, inserita in un contesto recentemente riqualificato e attento all'efficienza energetica.
Non perdere questa occasione: scrivici su WhatsApp oppure chiamaci al numero 02.4969.3530 per ricevere maggiori informazioni o per fissare una visita.
Dati principali
| Riferimento | 61189921 |
| Data annuncio | 16/03/2026 |
| Contratto | Vendita |
| Tipologia | Appartamento |
| Superficie | 115 m2 |
| Locali | 4 (4 altro), 2 bagni |
| Piano | 5 di 8 totali |
Costi
| Prezzo | 220.000 € |
| Prezzo al m2 | 1.913 €/m2 |
| Spese condominiali | € 167,00/mese |
Efficienza energetica
| Anno costruzione | 1970 |
| Riscaldamento | Centralizzato |
| Tipo Alimentazione Riscaldamento | Metano |
| Classe energetica | C |
| Indice di prestazione energetica (IPE) | - |
Planimetrie
Indirizzo e mappa
Via Milano, Garbagnate Milanese
Calcolo mutuo
Prezzo di vendita:
Anticipo
20,00
Mutuo
80,00
Tasso: -+
Rata: 629 al mese
I risultati sono una stima indicativa basata sui dati inseriti e non costituiscono un’offerta finanziaria.
Inserzionista
Chiama
CONTATTA

