Trilocale Via torino, Candiolo
€ 167.000Trilocale in vendita
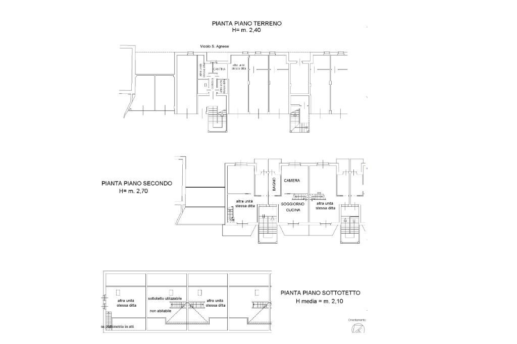
Situato in palazzina residenziale di recente costruzione del 2009', al secondo e ultimo piano, proponiamo appartamento bilivello, composto da ingresso su zona giorno living luminosa grazie alla porta finestra che affaccia sul balcone privato, al piano una camera da letto matrimoniale e un bagno con doccia anch'esso con sfogo sul balcone privato. Al piano sottotetto un unico locale open-space rifinito e finestrato ideale per poter svolgere attività di studio o di svago. L'immobile è dotato di tapparelle motorizzate, climatizzatore, box auto doppio e cantina. Il riscaldamento è a pavimento, gli infissi sono in legno con doppio vetro e la parte di luce elettrica utilizzata per il cancello carraio e illuminazione del vialetto è alimentata dal pannello fotovoltaico.
Dati principali
| Riferimento | 61192079 |
| Data annuncio | 15/03/2026 |
| Contratto | Vendita |
| Tipologia | Appartamento |
| Superficie | 87 m2 |
| Locali | 3 (3 altro), 1 bagno |
| Piano | 2 di 2 totali |
Costi
| Prezzo | 167.000 € |
| Prezzo al m2 | 1.920 €/m2 |
| Spese condominiali | € 150,00/mese |
Efficienza energetica
| Anno costruzione | 2009 |
| Riscaldamento | Centralizzato |
| Tipo Alimentazione Riscaldamento | Metano |
| Classe energetica | Immobile esente da certificazione energetica |
Planimetrie
Video
Indirizzo e mappa
Via torino, Candiolo
Calcolo mutuo
Prezzo di vendita:
Anticipo
20,00
Mutuo
80,00
Tasso: -+
Rata: 478 al mese
I risultati sono una stima indicativa basata sui dati inseriti e non costituiscono un’offerta finanziaria.
Inserzionista
Agenzia Tecnocasa Candiolo Case Sas
Via Torino, 18, Candiolo
Mostra Telefono
Chiama
CONTATTA

