Appartamento Corso antony, Collegno
€ 184.000Trilocale in vendita
Corso Antony, stabile signorile anni '70 nei pressi della fermata metropolitana Paradiso e comodo ai principali servizi, ampio trilocale completamente ristrutturato al piano rialzato.
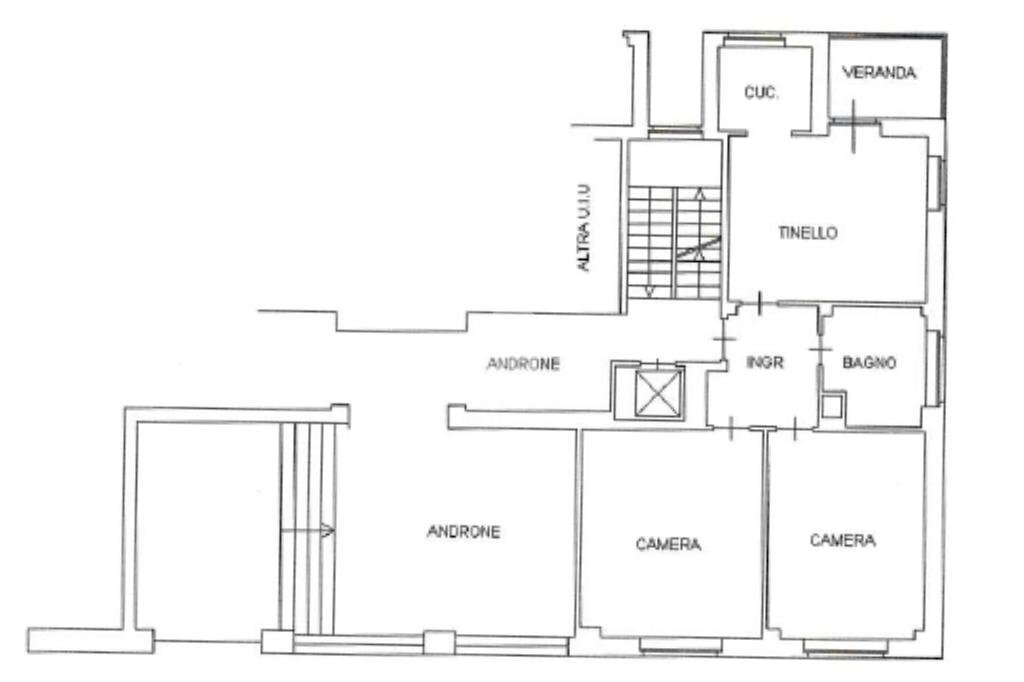
Immobile composto da ingresso che suddivide gli ambienti, ampia zona giorno con tinello e cucinino con affaccio al balcone verandato, servizio con box doccia finestrato, due camere da letto entrambe finestrate.
Appartamento libero da subito, moderno con pavimentazione in gress effetto marmo omogenea in tutta la casa, infissi in doppio vetro PVC e serrande elettriche su tutta la soluzione abitativa.
Completa la cantina di pertinenza.
Immobile composto da ingresso che suddivide gli ambienti, ampia zona giorno con tinello e cucinino con affaccio al balcone verandato, servizio con box doccia finestrato, due camere da letto entrambe finestrate.
Appartamento libero da subito, moderno con pavimentazione in gress effetto marmo omogenea in tutta la casa, infissi in doppio vetro PVC e serrande elettriche su tutta la soluzione abitativa.
Completa la cantina di pertinenza.
Dati principali
| Riferimento | 61192063 |
| Data annuncio | 14/03/2026 |
| Contratto | Vendita |
| Tipologia | Appartamento |
| Superficie | 84 m2 |
| Locali | 3 (3 altro), 1 bagno |
| Piano | 10 totali |
Costi
| Prezzo | 184.000 € |
| Prezzo al m2 | 2.190 €/m2 |
| Spese condominiali | € 100,00/mese |
Efficienza energetica
| Anno costruzione | 1970 |
| Riscaldamento | Centralizzato |
| Tipo Alimentazione Riscaldamento | Metano |
| Classe energetica | E |
| Indice di prestazione energetica (EP GL, REN) | 79.33 kWh/m3 anno |
| Indice di prestazione energetica (EP GL, NREN) | 143.04 kWh/m3 anno |
Planimetrie
Indirizzo e mappa
Corso antony, Collegno
Calcolo mutuo
Prezzo di vendita:
Anticipo
20,00
Mutuo
80,00
Tasso: -+
Rata: 526 al mese
I risultati sono una stima indicativa basata sui dati inseriti e non costituiscono un’offerta finanziaria.
Inserzionista
Chiama
CONTATTA

