Trilocale Strada santa maria, Rivoli
€ 115.000Trilocale in vendita
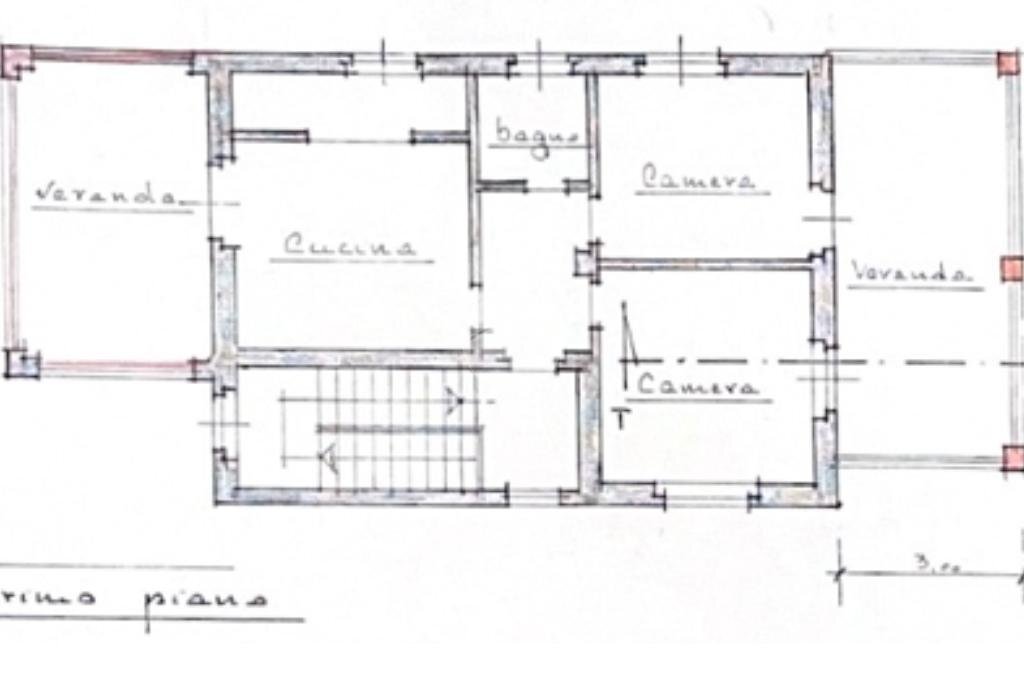
Rivoli, Strada Santa Maria 20, proponiamo in vendita un appartamento da ristrutturare in casa bifamiliare, sito al primo piano, di complessivi 110 mq, caratterizzato da un ampio terrazzo panoramico.
L’ingresso conduce al luminoso soggiorno con accesso alla veranda, ambiente versatile da vivere in ogni stagione. La zona notte comprende due camere da letto doppie ed un bagno finestrato. Ingresso indipendente, riscaldamento autonomo e giardino privato eventualmente utilizzabile come spazio per posti auto.
La soluzione garantisce privacy e autonomia, ideale per chi desidera vivere in un contesto riservato.
L’ingresso conduce al luminoso soggiorno con accesso alla veranda, ambiente versatile da vivere in ogni stagione. La zona notte comprende due camere da letto doppie ed un bagno finestrato. Ingresso indipendente, riscaldamento autonomo e giardino privato eventualmente utilizzabile come spazio per posti auto.
La soluzione garantisce privacy e autonomia, ideale per chi desidera vivere in un contesto riservato.
Dati principali
| Riferimento | 61183989 |
| Data annuncio | 14/03/2026 |
| Contratto | Vendita |
| Tipologia | Appartamento |
| Superficie | 111 m2 |
| Locali | 3 (3 altro), 1 bagno |
| Piano | 1 di 2 totali |
Costi
| Prezzo | 115.000 € |
| Prezzo al m2 | 1.036 €/m2 |
Efficienza energetica
| Anno costruzione | 1960 |
| Riscaldamento | Autonomo |
| Tipo Alimentazione Riscaldamento | Gasolio |
| Classe energetica | G |
| Indice di prestazione energetica (EP GL, REN) | 90 kWh/m3 anno |
| Indice di prestazione energetica (EP GL, NREN) | 90 kWh/m3 anno |
Planimetrie
Indirizzo e mappa
Strada santa maria, Rivoli
Calcolo mutuo
Prezzo di vendita:
Anticipo
20,00
Mutuo
80,00
Tasso: -+
Rata: 329 al mese
I risultati sono una stima indicativa basata sui dati inseriti e non costituiscono un’offerta finanziaria.
Inserzionista
Chiama
CONTATTA

