Trilocale Via Villa Cristina, Collegno
€ 169.000Trilocale in vendita
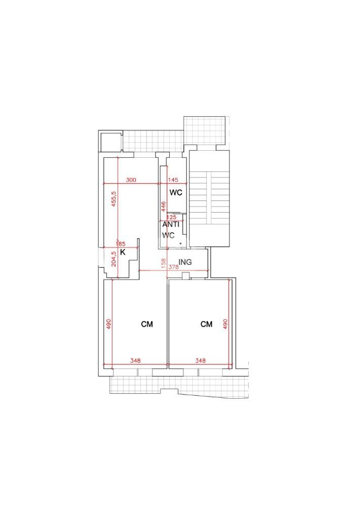
Nel cuore della località di Savonera, tra Collegno e Venaria Reale, è disponibile un appartamento di 90 mq, situato al piano medio di un edificio costruito nel 1960 e recentemente ristrutturato nel 2023. L'immobile si trova al secondo piano senza ascensore, ed offre un'accogliente zona giorno, due camere da letto luminose e un bagno moderno. La presenza di due balconi permette di godere di spazi esterni privati, ideali per momenti di relax. La proprietà include anche un box auto, garantendo comodità e sicurezza per il parcheggio. L'appartamento è dotato di aria condizionata, assicurando comfort in ogni stagione. La disposizione degli ambienti è funzionale e ben organizzata, rendendo questa soluzione abitativa adatta a diverse esigenze. La posizione strategica consente di raggiungere facilmente i principali servizi e le vie di comunicazione, offrendo un equilibrio tra tranquillità e praticità.
Dati principali
| Riferimento | 61191526 |
| Data annuncio | 14/03/2026 |
| Contratto | Vendita |
| Tipologia | Appartamento |
| Superficie | 90 m2 |
| Locali | 3 (3 altro), 1 bagno |
| Piano | 2 di 3 totali |
Costi
| Prezzo | 169.000 € |
| Prezzo al m2 | 1.878 €/m2 |
| Spese condominiali | € 100,00/mese |
Efficienza energetica
| Anno costruzione | 1960 |
| Riscaldamento | Centralizzato |
| Tipo Alimentazione Riscaldamento | Metano |
| Classe energetica | A2 |
| Indice di prestazione energetica (EP GL, REN) | 92.99 kWh/m3 anno |
| Indice di prestazione energetica (EP GL, NREN) | 74.24 kWh/m3 anno |
Planimetrie
Video
Indirizzo e mappa
Via Villa Cristina, Collegno
Calcolo mutuo
Prezzo di vendita:
Anticipo
20,00
Mutuo
80,00
Tasso: -+
Rata: 483 al mese
I risultati sono una stima indicativa basata sui dati inseriti e non costituiscono un’offerta finanziaria.
Inserzionista
Chiama
CONTATTA

