Ufficio VIA DEI MESTIERI, 8, Concorezzo
€ 195.000Ufficio in Vendita a Concorezzo
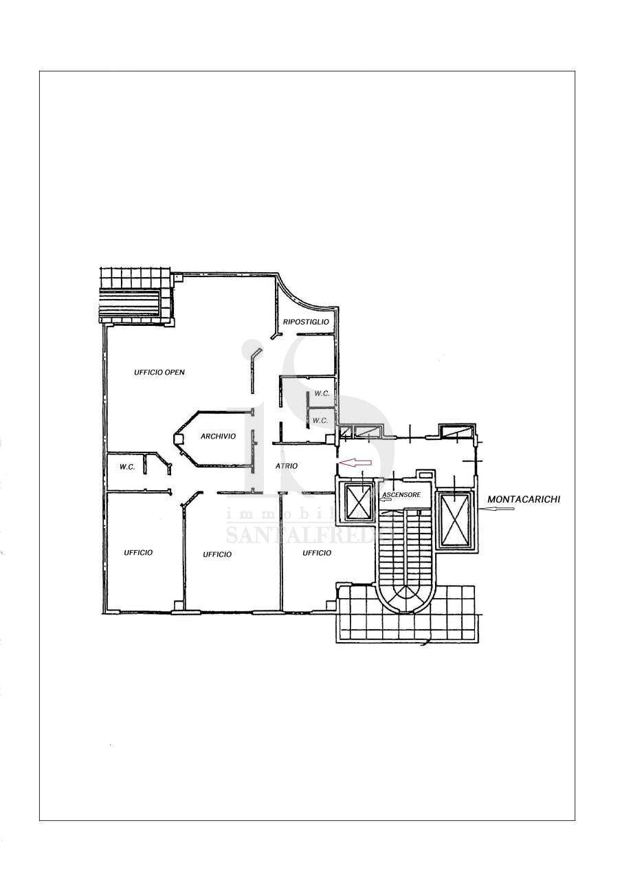
Ufficio in Vendita a Concorezzo -- 200 mq con spazi modulari e posti auto coperti A Concorezzo, ufficio in Via dei Mestieri 8, all'interno di un contesto direzionale realizzato nel 2001 con accesso controllato da cancello elettrico. L'immobile si trova nella zona commerciale e produttiva della città, posizione strategica per aziende e studi professionali grazie alla vicinanza alla Tangenziale Est (circa 2 km) e ai collegamenti con Monza, Vimercate e Cologno Monzese. L'ufficio è organizzato con pareti attrezzate modulari, che consentono una facile riconfigurazione degli ambienti in base alle esigenze operative. La distribuzione attuale comprende: . area reception . uffici direzionali . sale riunioni . ampia area open space . locale server . archivio . spazio espositivo . servizi igienici. Gli ambienti risultano luminosi e funzionali, ideali per attività professionali, società di servizi o sedi operative aziendali. DOTAZIONI E IMPIANTI L'immobile dispone di: . climatizzazione con pompa di calore . impianto dati strutturato . impianto elettrico a norma . ascensore . montacarichi. Soluzioni che garantiscono comfort operativo e una gestione efficiente degli spazi di lavoro. PARCHEGGI E SPAZI ACCESSORI Completano la proprietà: . 2 posti auto coperti . Possibilità di acquistare separatamente: . box o magazzino di circa 76 mq, ideale come deposito o spazio logistico. . Posizione . Zona commerciale e produttiva di Concorezzo, ben collegata con: Monza, Vimercate, Cologno Monzese, Tangenziale Est. Area servita anche da linee autobus e pista ciclabile. Ufficio in vendita a Concorezzo -- Via dei Mestieri 8 Per informazioni e visite: Immobiliare Santalfredo telefono o Whatsapp 039 6908137 (supporto in italiano e inglese).
Dati principali
| Riferimento | HOME 2012_8 |
| Data annuncio | 13/03/2026 |
| Contratto | Vendita |
| Tipologia | Ufficio |
| Superficie | 200 m2 |
| Locali | 2 (2 camere da letto), 4 bagni |
| Piano | 1 totali |
Costi
| Prezzo | 195.000 € |
| Prezzo al m2 | 975 €/m2 |
| Spese condominiali | € 300,00/mese |
Efficienza energetica
| Anno costruzione | 2001 |
| Classe energetica | D |
Planimetrie
Indirizzo e mappa
VIA DEI MESTIERI, 8, Concorezzo
Calcolo mutuo
Prezzo di vendita:
Anticipo
20,00
Mutuo
80,00
Tasso: -+
Rata: 558 al mese
I risultati sono una stima indicativa basata sui dati inseriti e non costituiscono un’offerta finanziaria.
Inserzionista

IMMOBILIARE SANTALFREDO
Via Remo Brambilla 7, Concorezzo
Mostra Telefono
Chiama
CONTATTA

