Casa semi indipendente Via Castagnolo, San Giovanni in Persiceto
€ 439.000Casa semindipendente in vendita
SAN GIOVANNI IN PERSICETO - VIA CASTAGNOLO 125
Proponiamo in vendita casa semindipendente situata in una tranquilla zona di campagna, ideale per chi cerca privacy e serenità senza rinunciare alla comodità dei servizi nelle vicinanze, raggiungibili in pochi minuti.
L’abitazione si sviluppa su due livelli.
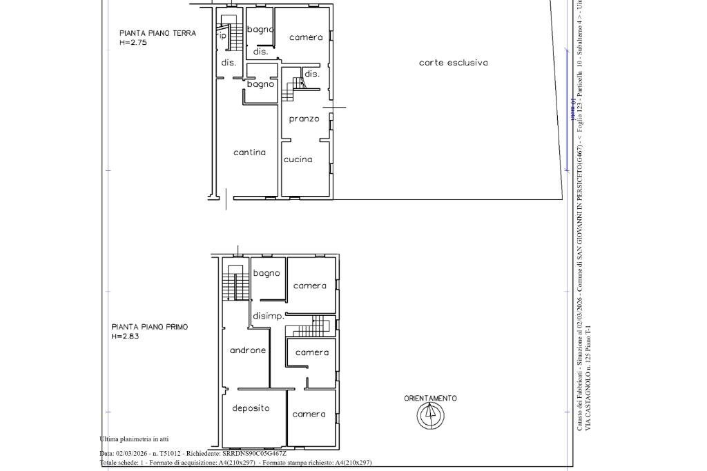
Al piano terra troviamo un accogliente soggiorno con cucina, un pratico ripostiglio e un bagno.
Al primo piano si sviluppa la zona notte composta da tre spaziose camere matrimoniali e un secondo bagno.
Adiacente all'abitazione troviamo una porzione ad uso servizi predisposta come seconda abitazione rendendola una soluzione ideale per genitori e figli o ampie famiglie.
A completare la proprietà un ampio giardino privato, perfetto per momenti di relax all’aperto con zona barbecue dedicata e una parte pavimentata per la sosta delle auto.
Proponiamo in vendita casa semindipendente situata in una tranquilla zona di campagna, ideale per chi cerca privacy e serenità senza rinunciare alla comodità dei servizi nelle vicinanze, raggiungibili in pochi minuti.
L’abitazione si sviluppa su due livelli.
Al piano terra troviamo un accogliente soggiorno con cucina, un pratico ripostiglio e un bagno.
Al primo piano si sviluppa la zona notte composta da tre spaziose camere matrimoniali e un secondo bagno.
Adiacente all'abitazione troviamo una porzione ad uso servizi predisposta come seconda abitazione rendendola una soluzione ideale per genitori e figli o ampie famiglie.
A completare la proprietà un ampio giardino privato, perfetto per momenti di relax all’aperto con zona barbecue dedicata e una parte pavimentata per la sosta delle auto.
Dati principali
| Riferimento | 61188060 |
| Data annuncio | 13/03/2026 |
| Contratto | Vendita |
| Tipologia | Casa semi indipendente |
| Superficie | 246 m2 |
| Locali | 4 (4 altro), 2 bagni |
| Piano | 1 di 2 totali |
| Numero posti auto | 1 |
Costi
| Prezzo | 439.000 € |
| Prezzo al m2 | 1.785 €/m2 |
Efficienza energetica
| Anno costruzione | 1970 |
| Riscaldamento | Autonomo |
| Tipo Alimentazione Riscaldamento | Metano |
| Classe energetica | E |
| Indice di prestazione energetica (EP GL, REN) | 145.55 kWh/m3 anno |
| Indice di prestazione energetica (EP GL, NREN) | 145.55 kWh/m3 anno |
Planimetrie
Video
Indirizzo e mappa
Via Castagnolo, San Giovanni in Persiceto
Calcolo mutuo
Prezzo di vendita:
Anticipo
20,00
Mutuo
80,00
Tasso: -+
Rata: 1.256 al mese
I risultati sono una stima indicativa basata sui dati inseriti e non costituiscono un’offerta finanziaria.
Inserzionista
Chiama
CONTATTA

