Quadrilocale Via provinciale, Montelabbate
€ 300.000Quadrilocale in vendita
Nel panorama residenziale di Osteria Nuova di Pesaro, sorge un progetto architettonico di nuova generazione concepito per rispondere alle più elevate esigenze dell'abitare moderno.
Questa nuova lottizzazione rappresenta la sintesi perfetta tra sostenibilità ambientale e innovazione tecnologica, offrendo soluzioni abitative in Classe A3 che definiscono nuovi standard di comfort e risparmio energetico. L’eccellenza costruttiva si manifesta attraverso un apparato impiantistico d’eccezione, dove la sinergia tra il sistema ibrido a pompa di calore e l’impianto fotovoltaico con batterie di accumulo da 5 kW garantisce una gestione energetica ottimizzata e quasi totalmente indipendente. La distribuzione del calore a pavimento assicura un benessere igrometrico superiore, eliminando gli sprechi e valorizzando ogni metro quadro degli ambienti interni. Oltre alla performance energetica, l'immobile si distingue per l'integrazione di sistemi domotici volti a semplificare la quotidianità e ad innalzare i livelli di sicurezza. Dalle tapparelle in alluminio motorizzate alle basculanti dei garage automatizzate, fino al portone blindato con controllo accessi tramite tastiera numerica, ogni componente è stato selezionato per offrire un'esperienza d'uso fluida e protetta. L'attenzione al dettaglio architettonico prosegue nelle finiture interne, dove la scelta di sanitari sospesi e piatti doccia a filo pavimento sottolinea un’estetica minimalista e raffinata.
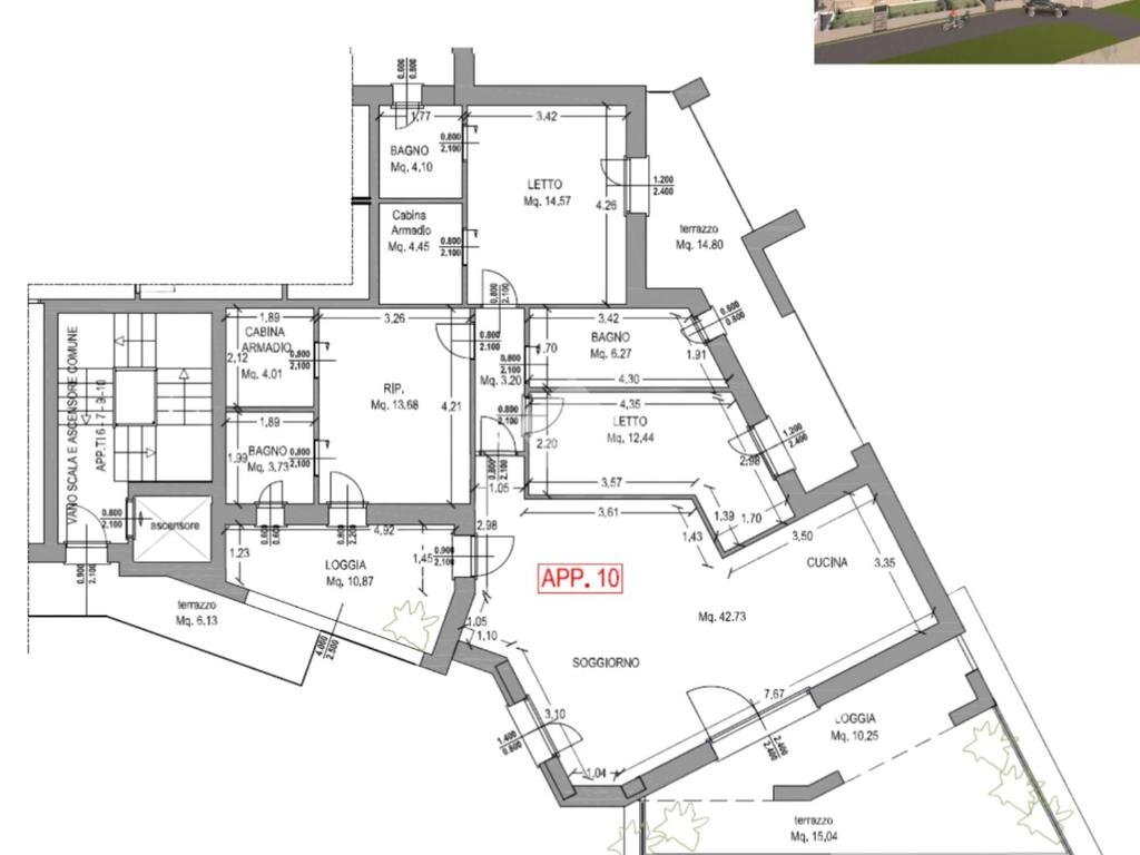
All’interno di questo contesto esclusivo, proponiamo al piano primo due appartamenti di tipo quadrilocale, la prima proposta è un quadrilocale di ampio respiro (123,99 mq), dove la zona giorno diventa il cuore pulsante della casa: un soggiorno luminoso con angolo cottura che si estende naturalmente verso una grande loggia coperta, il luogo ideale per colazioni all'aperto o serate di relax. La zona notte è ben organizzata con un disimpegno che conduce alle due camerette e al bagno principale. Il vero rifugio personale è però la camera padronale, una suite con cabina armadio, bagno privato e una seconda loggia riservata. Questa soluzione, completa di garage, è proposta a 300.000,00 €. La seconda opportunità è un quadrilocale di 108,79 mq (260.000,00 €) con garage acquistabile a parte, la struttura dispone infatti di tre ampie autorimesse, con metrature generose che spaziano dai 27 mq ai 30 mq (con prezzi a partire da 32.800,00 €), ideali per chi necessita di spazio extra per le proprie passioni o per il ricovero dei nel vivo della seconda proposta, vediamo il soggiorno che dialoga con l’esterno attraverso un’ampia loggia e un ulteriore terrazzo, regalando una ventilazione e una luminosità costanti. La disposizione interna prevede due camerette di cui una servita da un balcone dedicato e una spaziosa camera matrimoniale padronale, anch’essa impreziosita dalla propria cabina armadio e dal bagno privato.
Scegliere una di queste residenze significa investire in un asset immobiliare di valore garantito nel tempo, dove l'avanguardia tecnologica incontra un design senza tempo. Il nostro team di consulenti è a vostra completa disposizione per illustrarvi le planimetrie, le specifiche tecniche e accompagnarvi nella scelta della metratura più adatta alle vostre ambizioni.
Questa nuova lottizzazione rappresenta la sintesi perfetta tra sostenibilità ambientale e innovazione tecnologica, offrendo soluzioni abitative in Classe A3 che definiscono nuovi standard di comfort e risparmio energetico. L’eccellenza costruttiva si manifesta attraverso un apparato impiantistico d’eccezione, dove la sinergia tra il sistema ibrido a pompa di calore e l’impianto fotovoltaico con batterie di accumulo da 5 kW garantisce una gestione energetica ottimizzata e quasi totalmente indipendente. La distribuzione del calore a pavimento assicura un benessere igrometrico superiore, eliminando gli sprechi e valorizzando ogni metro quadro degli ambienti interni. Oltre alla performance energetica, l'immobile si distingue per l'integrazione di sistemi domotici volti a semplificare la quotidianità e ad innalzare i livelli di sicurezza. Dalle tapparelle in alluminio motorizzate alle basculanti dei garage automatizzate, fino al portone blindato con controllo accessi tramite tastiera numerica, ogni componente è stato selezionato per offrire un'esperienza d'uso fluida e protetta. L'attenzione al dettaglio architettonico prosegue nelle finiture interne, dove la scelta di sanitari sospesi e piatti doccia a filo pavimento sottolinea un’estetica minimalista e raffinata.
All’interno di questo contesto esclusivo, proponiamo al piano primo due appartamenti di tipo quadrilocale, la prima proposta è un quadrilocale di ampio respiro (123,99 mq), dove la zona giorno diventa il cuore pulsante della casa: un soggiorno luminoso con angolo cottura che si estende naturalmente verso una grande loggia coperta, il luogo ideale per colazioni all'aperto o serate di relax. La zona notte è ben organizzata con un disimpegno che conduce alle due camerette e al bagno principale. Il vero rifugio personale è però la camera padronale, una suite con cabina armadio, bagno privato e una seconda loggia riservata. Questa soluzione, completa di garage, è proposta a 300.000,00 €. La seconda opportunità è un quadrilocale di 108,79 mq (260.000,00 €) con garage acquistabile a parte, la struttura dispone infatti di tre ampie autorimesse, con metrature generose che spaziano dai 27 mq ai 30 mq (con prezzi a partire da 32.800,00 €), ideali per chi necessita di spazio extra per le proprie passioni o per il ricovero dei nel vivo della seconda proposta, vediamo il soggiorno che dialoga con l’esterno attraverso un’ampia loggia e un ulteriore terrazzo, regalando una ventilazione e una luminosità costanti. La disposizione interna prevede due camerette di cui una servita da un balcone dedicato e una spaziosa camera matrimoniale padronale, anch’essa impreziosita dalla propria cabina armadio e dal bagno privato.
Scegliere una di queste residenze significa investire in un asset immobiliare di valore garantito nel tempo, dove l'avanguardia tecnologica incontra un design senza tempo. Il nostro team di consulenti è a vostra completa disposizione per illustrarvi le planimetrie, le specifiche tecniche e accompagnarvi nella scelta della metratura più adatta alle vostre ambizioni.
Dati principali
| Riferimento | 61190504 |
| Data annuncio | 12/03/2026 |
| Contratto | Vendita |
| Tipologia | Appartamento |
| Superficie | 123 m2 |
| Locali | 4 (3 camere da letto, 1 altro), 2 bagni |
| Piano | 2 totali |
Costi
| Prezzo | 300.000 € |
| Prezzo al m2 | 2.439 €/m2 |
Efficienza energetica
| Anno costruzione | 2027 |
| Riscaldamento | Autonomo |
| Tipo Alimentazione Riscaldamento | Metano |
| Classe energetica | A3 |
| Indice di prestazione energetica (EP GL, REN) | 15 kWh/m3 anno |
| Indice di prestazione energetica (EP GL, NREN) | 0.8 kWh/m3 anno |
Indirizzo e mappa
Via provinciale, Montelabbate
Calcolo mutuo
Prezzo di vendita:
Anticipo
20,00
Mutuo
80,00
Tasso: -+
Rata: 858 al mese
I risultati sono una stima indicativa basata sui dati inseriti e non costituiscono un’offerta finanziaria.
Inserzionista
Chiama
CONTATTA

