Trilocale San Cesario sul Panaro
Trattativa riservata
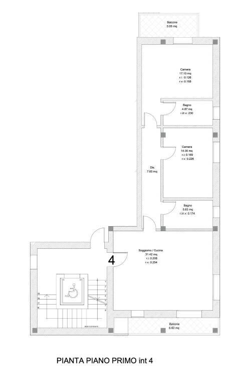
All’interno del nuovo ed elegante intervento residenziale “Alta Vista”, proponiamo in vendita trilocale al primo piano progettato per offrire comfort abitativo, efficienza energetica e spazi esterni vivibili. L’appartamento RIF.04 si sviluppa con ingresso su luminosa zona soggiorno con cucina a vista di circa 32 mq, ambiente ben distribuito e collegato con un balcone. La zona notte è separata da pratico disimpegno e comprende: • Camera matrimoniale di generosa metratura • Seconda camera ideale come stanza figli, studio o ospiti • Bagno finestrato principale • Secondo bagno/lavanderia di servizio finestrato Completa la proprietà un ulteriore balcone con accesso dalla camera matrimoniale. La distribuzione interna è studiata per garantire funzionalità, privacy tra zona giorno e notte e sfruttamento ottimale degli spazi. L’immobile è realizzato secondo standard costruttivi moderni e ad alta efficienza energetica: • Impianto full electric senza gas • Riscaldamento a pavimento con pompa di calore autonoma • Impianto fotovoltaico dedicato • Ventilazione Meccanica Controllata (VMC) con recupero di calore • Predisposizione climatizzazione estiva • Isolamento termico e acustico ad alte prestazioni • Serramenti ad alta efficienza con tapparelle elettriche • Videocitofono e impianto elettrico completo • Predisposizione ricarica auto elettrica in autorimessa Il fabbricato è progettato per garantire comfort abitativo, bassi consumi e qualità costruttiva superiore. Soluzione ideale per chi cerca un’abitazione moderna, elevata efficienza energetica e tecnologie costruttive di ultima generazione, in contesto residenziale elegante e di nuova realizzazione.
Dati principali
| Riferimento | ID2990797 |
| Data annuncio | 08/03/2026 |
| Contratto | Vendita |
| Tipologia | Appartamento |
| Superficie | 128 m2 |
| Locali | 3 (3 altro) |
| Piano | 1 |
Costi
| Prezzo | Trattativa riservata |
Efficienza energetica
| Anno costruzione | 2027 |
| Classe energetica | Immobile esente da certificazione energetica |
Indirizzo e mappa
San Cesario sul Panaro
Annuncio senza mappa,
prova a chiedere la posizione all'inserzionista
prova a chiedere la posizione all'inserzionista
Inserzionista
Chiama
CONTATTA


