Casa semi indipendente Via Genevrea, Cavagnolo
€ 195.000Casa semindipendente in vendita
Non distante dal centro paese, casa semindipendente disposta su più livelli ognuno servito da ascensore, ideale per chi cerca spazio e versatilità. La struttura conserva il fascino delle case d'epoca, con dettagli architettonici che raccontano la storia del luogo. Gli spazi interni sono generosi e ben distribuiti, permettendo di creare zone giorno e notte funzionali e accoglienti. La posizione strategica consente di godere della tranquillità del contesto circostante, pur rimanendo a breve distanza dai principali servizi del paese. Questa proprietà rappresenta un'opportunità unica per chi desidera vivere in un ambiente che combina tradizione e potenzialità di rinnovamento.
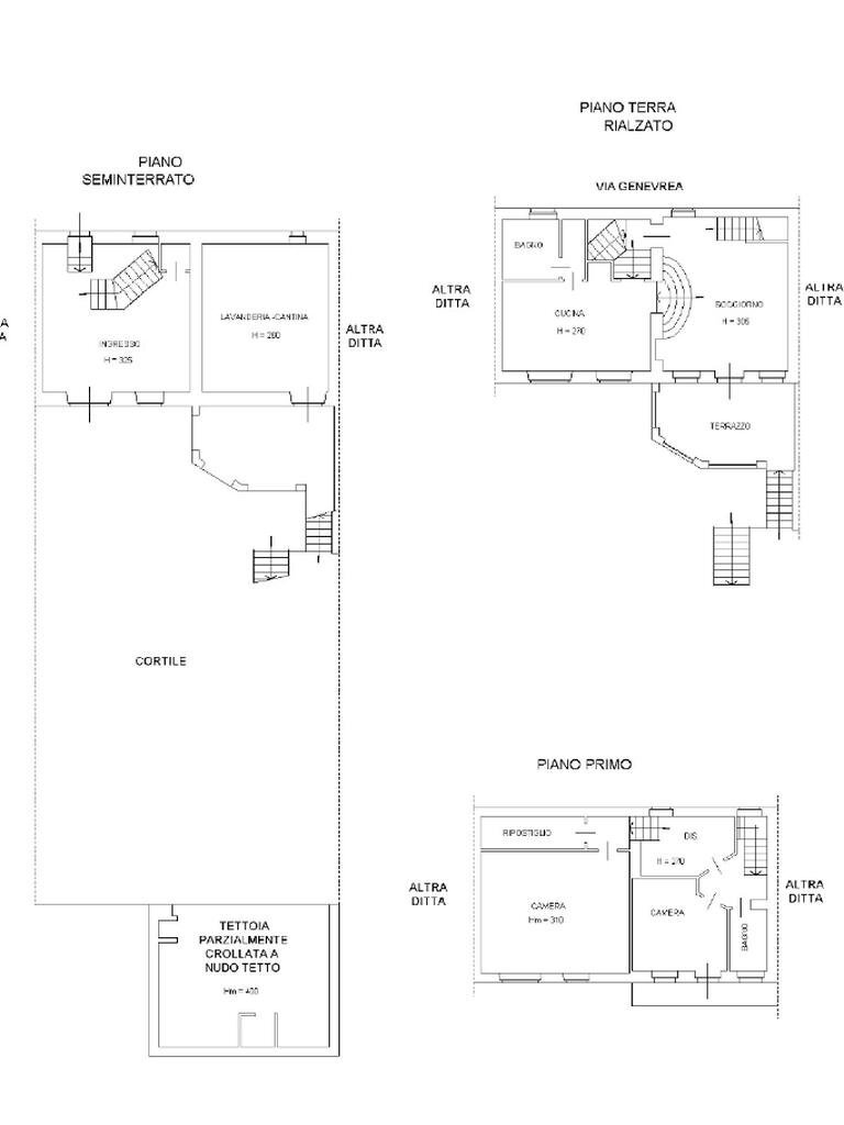
Al piano terra è presente un comodo ingresso dotato di una comoda scala interna che serve ogni piano dell'immobile
Il primo piano è composto da un ampio soggiorno luminoso, una cucina abitabile, un antibagno con bagno annesso.
Al secondo piano si trova la zona notte caratterizzata da un bagno con doccia e due camere da letto di generosa metratura
A completamento della proprietà un ampio giardino privato.
Al piano terra è presente un comodo ingresso dotato di una comoda scala interna che serve ogni piano dell'immobile
Il primo piano è composto da un ampio soggiorno luminoso, una cucina abitabile, un antibagno con bagno annesso.
Al secondo piano si trova la zona notte caratterizzata da un bagno con doccia e due camere da letto di generosa metratura
A completamento della proprietà un ampio giardino privato.
Dati principali
| Riferimento | 61188407 |
| Data annuncio | 07/03/2026 |
| Contratto | Vendita |
| Tipologia | Casa semi indipendente |
| Superficie | 275 m2 |
| Locali | 5 (5 altro), 2 bagni |
| Piano | 3 di 3 totali |
Costi
| Prezzo | 195.000 € |
| Prezzo al m2 | 709 €/m2 |
Efficienza energetica
| Anno costruzione | 1900 |
| Riscaldamento | Autonomo |
| Tipo Alimentazione Riscaldamento | Metano |
| Classe energetica | F |
| Indice di prestazione energetica (EP GL, REN) | 0.65 kWh/m3 anno |
| Indice di prestazione energetica (EP GL, NREN) | 225.2 kWh/m3 anno |
Planimetrie
Video
Indirizzo e mappa
Via Genevrea, Cavagnolo
Calcolo mutuo
Prezzo di vendita:
Anticipo
20,00
Mutuo
80,00
Tasso: -+
Rata: 558 al mese
I risultati sono una stima indicativa basata sui dati inseriti e non costituiscono un’offerta finanziaria.
Inserzionista
Chiama
CONTATTA

