Appartamento Corso sandro cabassi, Carpi
€ 340.000Quadrilocale in vendita
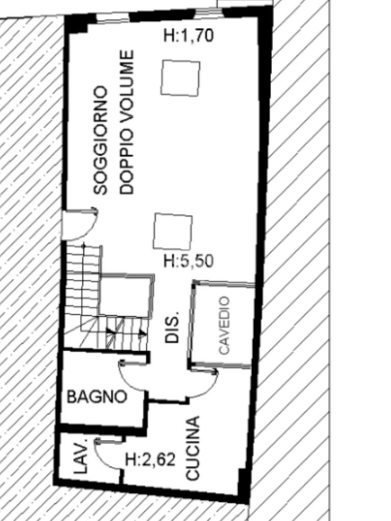
Esclusivo appartamento su tre livelli in palazzo storico
In Corso Cabassi, all'interno di un palazzo storico ristrutturato, proponiamo un'abitazione di circa 200 mq disposta su tre livelli dalla configurazione unica e ricercata.
Caratteristiche principali:
Distribuzione su tre livelli con eleganti giochi di doppi volumiTre bagni molto ben rifinitiPavimenti in legnoScale di design e parapetti in cristalloDesign contemporaneo di altissimo livelloRiscaldamento a pavimentoImpianto di climatizzazioneGarage privato nel cortile internoLa peculiare architettura interna, caratterizzata da spazi fluidi e aperture studiate con maestria, dona all'abitazione un movimento e una luminosità sorprendente.
Ogni dettaglio rende questa dimora ideale per chi ricerca un'abitazione di carattere che coniuga edificio storico e eleganza contemporanea.
Per ogni informazione : 059.650521
In Corso Cabassi, all'interno di un palazzo storico ristrutturato, proponiamo un'abitazione di circa 200 mq disposta su tre livelli dalla configurazione unica e ricercata.
Caratteristiche principali:
Distribuzione su tre livelli con eleganti giochi di doppi volumiTre bagni molto ben rifinitiPavimenti in legnoScale di design e parapetti in cristalloDesign contemporaneo di altissimo livelloRiscaldamento a pavimentoImpianto di climatizzazioneGarage privato nel cortile internoLa peculiare architettura interna, caratterizzata da spazi fluidi e aperture studiate con maestria, dona all'abitazione un movimento e una luminosità sorprendente.
Ogni dettaglio rende questa dimora ideale per chi ricerca un'abitazione di carattere che coniuga edificio storico e eleganza contemporanea.
Per ogni informazione : 059.650521
Dati principali
| Riferimento | 61045286 |
| Data annuncio | 10/04/2025 |
| Contratto | Vendita |
| Tipologia | Appartamento |
| Superficie | 190 m2 |
| Locali | 4 (4 altro), 3 bagni |
| Piano | 2 di 3 totali |
Costi
| Prezzo | 340.000 € |
| Prezzo al m2 | 1.789 €/m2 |
Efficienza energetica
| Anno costruzione | 2003 |
| Riscaldamento | Autonomo |
| Tipo Alimentazione Riscaldamento | Metano |
| Classe energetica | E |
| Indice di prestazione energetica (EP GL, REN) | 1 kWh/m3 anno |
| Indice di prestazione energetica (EP GL, NREN) | 1 kWh/m3 anno |
Planimetrie
Video
Indirizzo e mappa
Corso sandro cabassi, Carpi
Calcolo mutuo
Prezzo di vendita:
Anticipo
20,00
Mutuo
80,00
Tasso: -+
Rata: 972 al mese
I risultati sono una stima indicativa basata sui dati inseriti e non costituiscono un’offerta finanziaria.
Inserzionista
Chiama
CONTATTA

