Quadrilocale Via Valerio Glorialanza, Chiavari
€ 285.000Quadrilocale in vendita
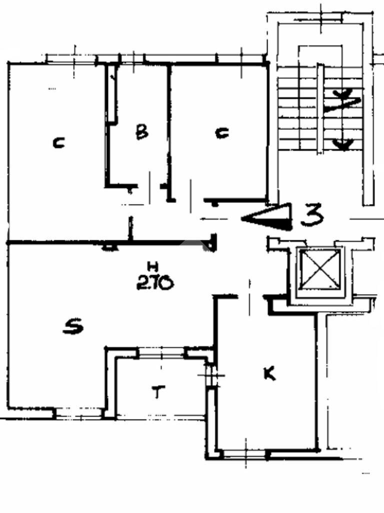
Nella zona Levante di Chiavari, precisamente in Via Glorialanza, proponiamo un appartamento in vendita che unisce comfort e praticità. Situato al secondo piano con ascensore, l'immobile si estende su una superficie di 100 mq, offrendo spazi ben distribuiti in ampio ingresso in zona living, soggiorno, cucina abitabile con accesso al terrazzo vivibile, bagno finestrato con vasca e due camere da letto matrimoniali. Riscaldamento termoautonomo con minime spese condominiali. Grazie all'ottima esposizione a Est - Osvest gode di una bellissima luce naturale. Completa la proprietà una cantina, un posto auto scoperto e un box singolo di 15 mq. La posizione centrale permette di accedere facilmente ai servizi e alle comodità che Chiavari offre, rendendo questa soluzione ideale per chi cerca una residenza che coniughi qualità e praticità.
Dati principali
| Riferimento | 61187162 |
| Data annuncio | 06/03/2026 |
| Contratto | Vendita |
| Tipologia | Appartamento |
| Superficie | 100 m2 |
| Locali | 4 (4 altro), 1 bagno |
| Piano | 2 di 5 totali |
| Numero posti auto | 1 |
Costi
| Prezzo | 285.000 € |
| Prezzo al m2 | 2.850 €/m2 |
| Spese condominiali | € 67,00/mese |
Efficienza energetica
| Anno costruzione | 1970 |
| Riscaldamento | Autonomo |
| Tipo Alimentazione Riscaldamento | Metano |
| Classe energetica | G |
| Indice di prestazione energetica (IPE) | - |
Planimetrie
Indirizzo e mappa
Via Valerio Glorialanza, Chiavari
Calcolo mutuo
Prezzo di vendita:
Anticipo
20,00
Mutuo
80,00
Tasso: -+
Rata: 815 al mese
I risultati sono una stima indicativa basata sui dati inseriti e non costituiscono un’offerta finanziaria.
Inserzionista
Chiama
CONTATTA

