Casa indipendente Frazione Magostino, Berzano di Tortona
€ 190.000Casa indipendente in vendita
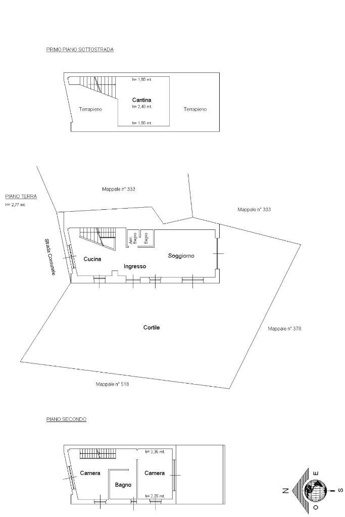
La proprietà è sulle colline tortonesi, tranquilla frazione di Magostino, nel comune di Berzano di Tortona. La casa principale è spaziosa, luminosa e completa di cortile e giardino al corpo. L'immobile, si sviluppa su più livelli con una disposizione interna ben organizzata. Al piano terra c'è l' ampio e luminoso soggiorno con cucina, l'antibagno con bagno. Il primo piano ha la camera da letto padronale, un bagno e una camera di passaggio ideale come studio. Al piano interrato c'è la cantina. La parte esterna è suddivisa nel cortile di circa 200mq e giardino di 2600mq, spazi ideali per orto e momenti di relax.
La seconda abitazione è a pochi metri dalla casa principale. La casa è suddivisa su più livelli. Il piano terra ha la cucina, soggiorno e bagno di servizio. Il primo piano è suddiviso in una stanza ad uso salotto o studio, in base alle proprie esigenze, oltre alla camera da letto e bagno. Al secondo e ultimo piano c'è un ulteriore camera da letto.
Quest'ultima è ideale come soluzione da mettere a reddito o eventualmente per famiglie numerose che necessitano di due soluzioni vicine ma distinte. Le proprietà si presentano in ottime condizioni, con una ristrutturazione recente.
La seconda abitazione è a pochi metri dalla casa principale. La casa è suddivisa su più livelli. Il piano terra ha la cucina, soggiorno e bagno di servizio. Il primo piano è suddiviso in una stanza ad uso salotto o studio, in base alle proprie esigenze, oltre alla camera da letto e bagno. Al secondo e ultimo piano c'è un ulteriore camera da letto.
Quest'ultima è ideale come soluzione da mettere a reddito o eventualmente per famiglie numerose che necessitano di due soluzioni vicine ma distinte. Le proprietà si presentano in ottime condizioni, con una ristrutturazione recente.
Dati principali
| Riferimento | 61186129 |
| Data annuncio | 05/03/2026 |
| Contratto | Vendita |
| Tipologia | Casa indipendente |
| Superficie | 260 m2 |
| Locali | più di 5 (8 altro), 4 bagni |
| Piano | 3 di 3 totali |
Costi
| Prezzo | 190.000 € |
| Prezzo al m2 | 731 €/m2 |
Efficienza energetica
| Anno costruzione | 1900 |
| Riscaldamento | Autonomo |
| Tipo Alimentazione Riscaldamento | Gpl |
| Classe energetica | F |
| Indice di prestazione energetica (EP GL, REN) | 0.89 kWh/m3 anno |
| Indice di prestazione energetica (EP GL, NREN) | 257.51 kWh/m3 anno |
Planimetrie
Indirizzo e mappa
Frazione Magostino, Berzano di Tortona
Calcolo mutuo
Prezzo di vendita:
Anticipo
20,00
Mutuo
80,00
Tasso: -+
Rata: 543 al mese
I risultati sono una stima indicativa basata sui dati inseriti e non costituiscono un’offerta finanziaria.
Inserzionista
Chiama
CONTATTA

