Appartamento Via Goffredo Mameli, Gavi
€ 95.000Multilocale in vendita
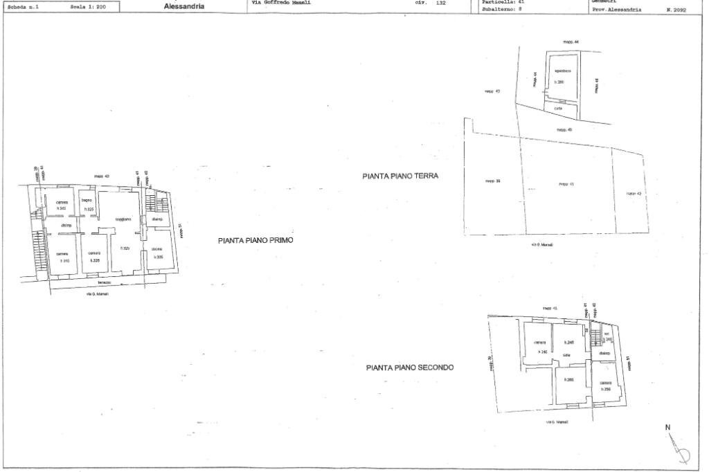
Nel cuore del comune di Gavi, proponiamo in vendita un affascinante immobile multilocale di 197 mq circa, distribuito su più livelli. Costruito nel 1900 e ristrutturato nel 1970, l'edificio conserva il fascino del passato con pavimenti in cotto e cementine originali. La proprietà è caratterizzata da ambienti luminosi e soleggiati, ideali per chi cerca un'atmosfera calda e accogliente. La parte abitativa gode di numerose stanze e spazi suddivisibili anche in due appartamenti distinti con locali accessori. Al piano terra, un negozio offre la possibilità di sviluppare un'attività commerciale o di essere trasformato in uno spazio abitativo aggiuntivo. Il soggiorno, arricchito da un camino, rappresenta il cuore della casa, perfetto per momenti di relax. Completano la proprietà una cantina, ideale per la conservazione di vini e prodotti locali, e uno spazio verde sul retro distribuito a terrazze con una vista meravigliosa sui tetti delle case del centro storico. Angolo verde che offre tranquillità e natura in pieno centro. Un'opportunità unica per chi desidera vivere in un contesto storico con tutte le comodità moderne. Tutta la proprietà può essere suddivisa in più appartamenti ed essere venduti separatamente a prezzi più vantaggiosi. Se vuoi saperne di più contattaci e ti mostreremo la varie soluzioni.
Dati principali
| Riferimento | 61186427 |
| Data annuncio | 05/03/2026 |
| Contratto | Vendita |
| Tipologia | Appartamento |
| Superficie | 197 m2 |
| Locali | più di 5 (4 camere da letto, 5 altro), 2 bagni |
| Piano | 3 di 3 totali |
Costi
| Prezzo | 95.000 € |
| Prezzo al m2 | 482 €/m2 |
Efficienza energetica
| Anno costruzione | 1900 |
| Riscaldamento | Autonomo |
| Tipo Alimentazione Riscaldamento | Metano |
| Classe energetica | G |
| Indice di prestazione energetica (EP GL, NREN) | 357 kWh/m3 anno |
Planimetrie
Indirizzo e mappa
Via Goffredo Mameli, Gavi
Calcolo mutuo
Prezzo di vendita:
Anticipo
20,00
Mutuo
80,00
Tasso: -+
Rata: 272 al mese
I risultati sono una stima indicativa basata sui dati inseriti e non costituiscono un’offerta finanziaria.
Inserzionista
Chiama
CONTATTA

