Trilocale Via San Vincenzo, Milano (zona San Vittore)
€ 695.000Trilocale in vendita
Milano, Via San Vincenzo:
Nel cuore di uno dei quartieri più antichi e affascinanti di Milano, sviluppato lungo l’asse di Via De Amicis, Via Torino, Corso Genova e Sant’Agostino, proponiamo un raffinato trilocale situato in un contesto di grande pregio, a pochi passi dal Duomo.
L’immobile si trova al primo piano di uno stabile signorile dotato di ascensore e servizio di portineria mezza giornata. L’appartamento, in ottimo stato interno, completamente arredato, si distingue per la funzionalità degli spazi.
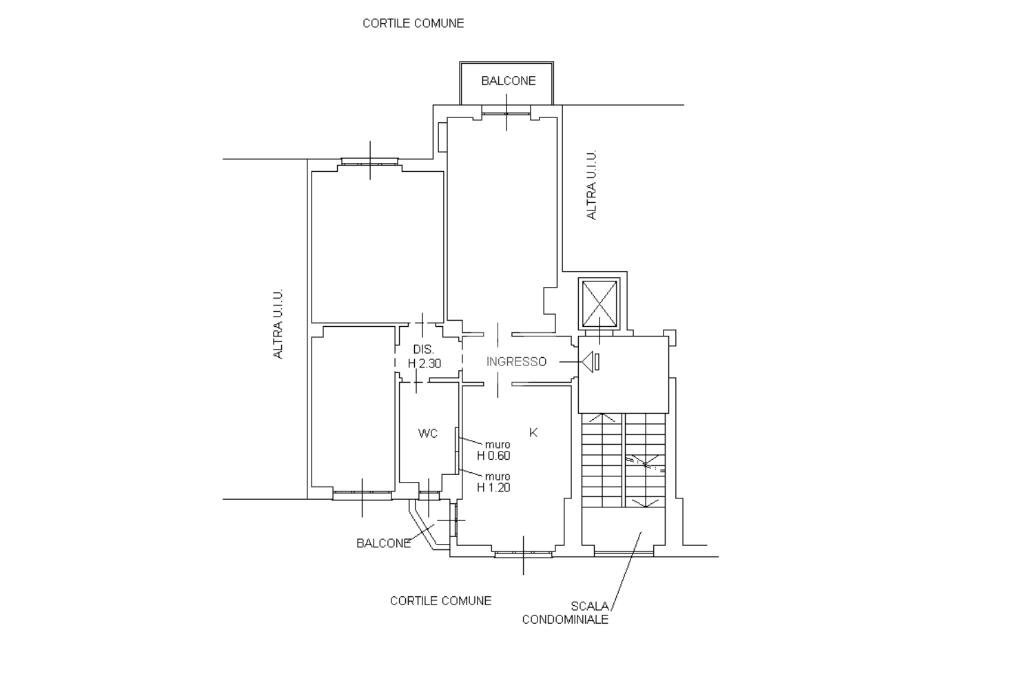
La soluzione è composta da: ingresso, soggiorno con accesso a un comodo balcone con affaccio interno, cucina abitabile anch’essa dotata di balcone, disimpegno, camera matrimoniale, seconda camera e bagno finestrato con box doccia. Completa la proprietà un solaio di pertinenza.
Grazie all’esposizione interna, l’appartamento garantisce un’elevata tranquillità e riservatezza, pur trovandosi in una posizione centrale e strategica.
La zona è ottimamente servita dai principali mezzi di trasporto pubblico: tram 2, 9, 10 e 14, metropolitana Linea Verde (fermate Porta Genova e Sant’Agostino) e la nuova Linea M4, assicurando collegamenti rapidi con ogni area della città.
La presente descrizione ha valore puramente indicativo e non costituisce elemento contrattuale.
Per ulteriori informazioni o per fissare un appuntamento, è possibile contattarci anche tramite WhatsApp al numero 393.8740920.
Nel cuore di uno dei quartieri più antichi e affascinanti di Milano, sviluppato lungo l’asse di Via De Amicis, Via Torino, Corso Genova e Sant’Agostino, proponiamo un raffinato trilocale situato in un contesto di grande pregio, a pochi passi dal Duomo.
L’immobile si trova al primo piano di uno stabile signorile dotato di ascensore e servizio di portineria mezza giornata. L’appartamento, in ottimo stato interno, completamente arredato, si distingue per la funzionalità degli spazi.
La soluzione è composta da: ingresso, soggiorno con accesso a un comodo balcone con affaccio interno, cucina abitabile anch’essa dotata di balcone, disimpegno, camera matrimoniale, seconda camera e bagno finestrato con box doccia. Completa la proprietà un solaio di pertinenza.
Grazie all’esposizione interna, l’appartamento garantisce un’elevata tranquillità e riservatezza, pur trovandosi in una posizione centrale e strategica.
La zona è ottimamente servita dai principali mezzi di trasporto pubblico: tram 2, 9, 10 e 14, metropolitana Linea Verde (fermate Porta Genova e Sant’Agostino) e la nuova Linea M4, assicurando collegamenti rapidi con ogni area della città.
La presente descrizione ha valore puramente indicativo e non costituisce elemento contrattuale.
Per ulteriori informazioni o per fissare un appuntamento, è possibile contattarci anche tramite WhatsApp al numero 393.8740920.
Dati principali
| Riferimento | 61186664 |
| Data annuncio | 05/03/2026 |
| Contratto | Vendita |
| Tipologia | Appartamento |
| Superficie | 90 m2 |
| Locali | 3 (3 altro), 1 bagno |
| Piano | 1 di 8 totali |
Costi
| Prezzo | 695.000 € |
| Prezzo al m2 | 7.722 €/m2 |
| Spese condominiali | € 333,00/mese |
Efficienza energetica
| Anno costruzione | 1900 |
| Riscaldamento | Centralizzato |
| Tipo Alimentazione Riscaldamento | Metano |
| Classe energetica | F |
| Indice di prestazione energetica (EP GL, REN) | 150.33 kWh/m3 anno |
| Indice di prestazione energetica (EP GL, NREN) | 150.33 kWh/m3 anno |
Planimetrie
Video
Indirizzo e mappa
Via San Vincenzo, Milano - quartiere San Vittore
Calcolo mutuo
Prezzo di vendita:
Anticipo
20,00
Mutuo
80,00
Tasso: -+
Rata: 1.988 al mese
I risultati sono una stima indicativa basata sui dati inseriti e non costituiscono un’offerta finanziaria.
Inserzionista
Chiama
CONTATTA

