Appartamento Via XXV Aprile, Imperia
€ 170.000Appartamento - Pentalocale a Oneglia, Imperia
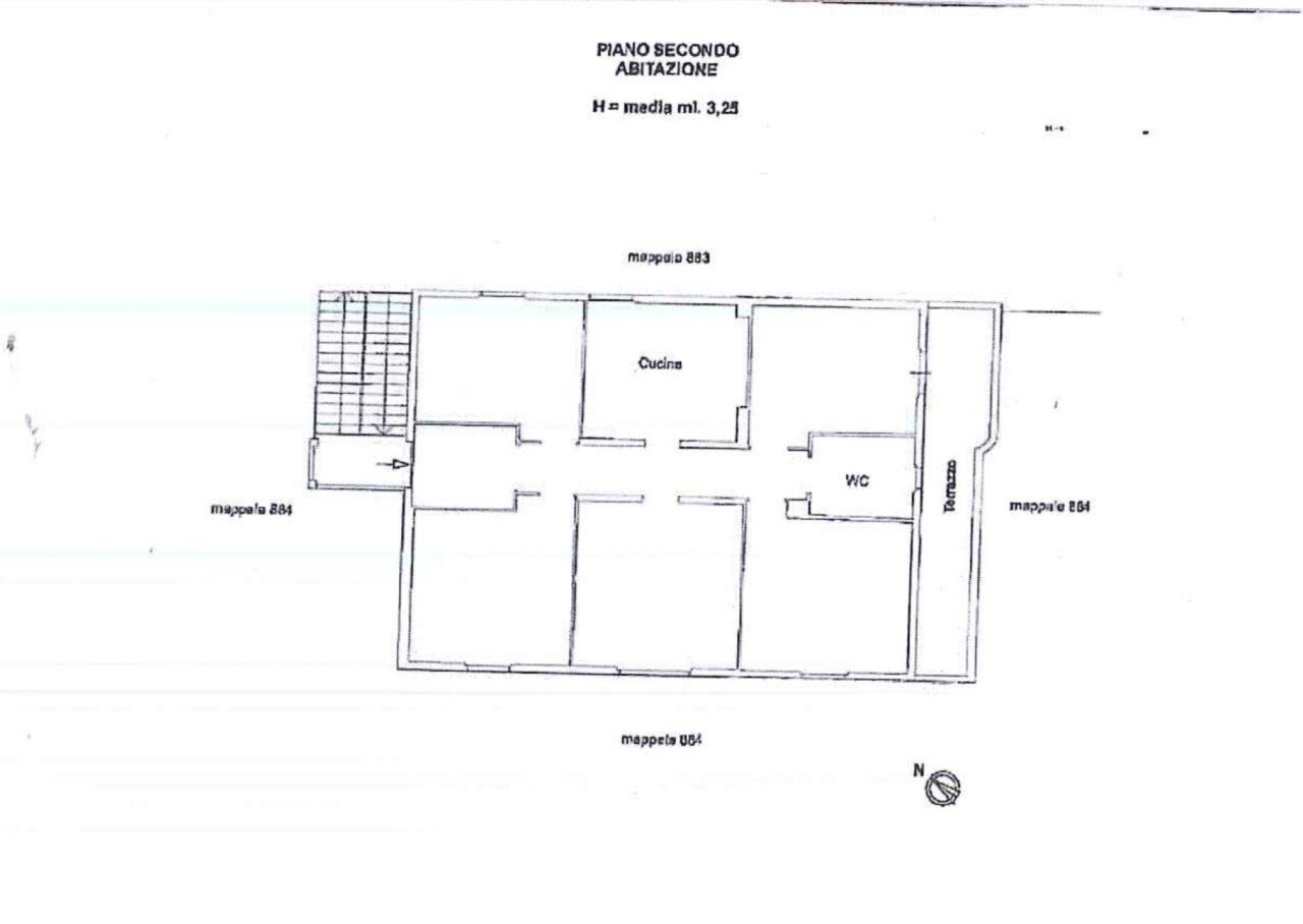
Imperia, Oneglia, Via XXV Aprile, in vendita in palazzina bifamiliare, appartamento 2° ed ultimo piano, completamente da ristrutturare, composta da: ingresso, sala, cucina, corridoio, 4 camere, bagno e terrazzo. In alcune stanze sono presenti i vecchi pavimenti alla genovese, terrazza con vista aperta sino al mare, terreno di proprietà esclusiva di circa 1.200mq e cantina di mq. 30. L’indirizzo inserito nell’annuncio è SOLO indicativo della zona in cui è posizionato l’immobile. Il civico esatto non è riproducibile per dovuta riservatezza. Siamo aperti al pubblico dal lunedì al venerdì dalle 9:30 alle 12:30 e dalle 15:00 alle 19:00, il sabato dalle 9:00 alle 13:00 e su appuntamento tutta la settimana dalle 9:00 alle 19:00. Potete contattarci ai seguenti recapiti telefonici: 0183/651037 oppure 3474753007 per le vendite mentre per gli affitti solo al 0183651037 dalle 15:00 alle 19:00. la nostra agenzia vi seguirà in tutte le fasi della trattativa fino al rogito con una consulenza capillare in tutti i passi necessari alla conclusione della vendita. Vi aspettiamo numerosi per proporVi le nostre soluzioni immobiliari e per stimare, valutare e collaborare insieme per la vendita del Vostro immobile, certi e sicuri di poter ascoltare e soddisfare le Vostre richieste.
Dati principali
| Riferimento | 9069 |
| Data annuncio | 04/03/2026 |
| Contratto | Vendita |
| Tipologia | Appartamento |
| Superficie | 120 m2 |
| Locali | più di 5 (4 camere da letto, 2 altro), 1 bagno |
| Piano | 1 totali |
| Numero di terrazzi | 1 |
Caratteristiche
Costi
| Prezzo | 170.000 € |
| Prezzo al m2 | 1.417 €/m2 |
Efficienza energetica
| Anno costruzione | 1800 |
| Classe energetica | G |
Planimetrie
Indirizzo e mappa
Via XXV Aprile, Imperia
Calcolo mutuo
Prezzo di vendita:
Anticipo
20,00
Mutuo
80,00
Tasso: -+
Rata: 486 al mese
I risultati sono una stima indicativa basata sui dati inseriti e non costituiscono un’offerta finanziaria.
Inserzionista

Agenzia Immobiliare Peletta di Alessio Katia
Via San Maurizio 23, Imperia
Mostra Telefono
Mostra Cellulare
Chiama
CONTATTA

