Porzione di casa Via Secchiano, Valsamoggia (zona Modena Est)
€ 361.000Porzione di bifamiliare in vendita
Monteveglio, località Castello di Serravalle: proponiamo in vendita porzione di casa con terreno di proprietà esclusiva, inserita in contesto collinare riservato e facilmente accessibile tramite strada asfaltata.
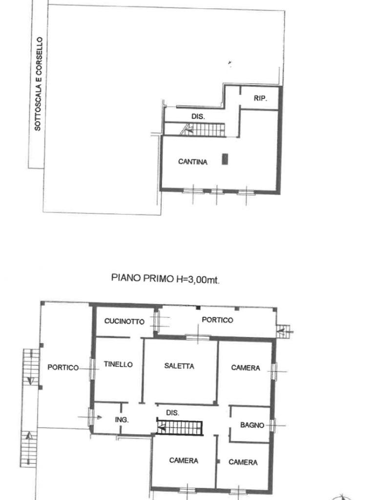
L’immobile si sviluppa su due livelli. Al piano terra è presente un’ampia cantina adibita a taverna, oltre ad un comodo bagno con doccia. Il primo piano ospita l’abitazione principale composta da tre camere da letto, salotto con camino, cucina abitabile con affaccio su terrazza, un secondo bagno completo di doccia e vasca ed, infine, un'ampia veranda. Gli ambienti si distinguono per metrature generose ed ottima luminosità. Completano la proprietà un ampio garage, il giardino pertinenziale e tre ettari di terreno, elemento di particolare interesse per chi è alla ricerca di spazi esterni esclusivi e indipendenza in posizione tranquilla.
Per maggiori informazioni o fissare un appuntamento tel. 3514304374 - 0516707183
PRECISAZIONE: le caratteristiche tecniche, la disposizione interna degli ambienti e degli accessori, le planimetrie allegate potrebbero, in alcuni casi, essere diversi dall’effettivo stato di fatto dell’immobile. L’Agenzia Immobiliare declina ogni responsabilità per eventuali involontarie incoerenze o difformità. Le descrizioni sopra riportate, nonché le planimetrie allegate, non rappresentano alcun impegno contrattuale. A volte l’indirizzo può non rispecchiare esattamente l’ubicazione dell’immobile ed è utile al solo fine di fornire un riferimento generico per la su localizzazione.
L’immobile si sviluppa su due livelli. Al piano terra è presente un’ampia cantina adibita a taverna, oltre ad un comodo bagno con doccia. Il primo piano ospita l’abitazione principale composta da tre camere da letto, salotto con camino, cucina abitabile con affaccio su terrazza, un secondo bagno completo di doccia e vasca ed, infine, un'ampia veranda. Gli ambienti si distinguono per metrature generose ed ottima luminosità. Completano la proprietà un ampio garage, il giardino pertinenziale e tre ettari di terreno, elemento di particolare interesse per chi è alla ricerca di spazi esterni esclusivi e indipendenza in posizione tranquilla.
Per maggiori informazioni o fissare un appuntamento tel. 3514304374 - 0516707183
PRECISAZIONE: le caratteristiche tecniche, la disposizione interna degli ambienti e degli accessori, le planimetrie allegate potrebbero, in alcuni casi, essere diversi dall’effettivo stato di fatto dell’immobile. L’Agenzia Immobiliare declina ogni responsabilità per eventuali involontarie incoerenze o difformità. Le descrizioni sopra riportate, nonché le planimetrie allegate, non rappresentano alcun impegno contrattuale. A volte l’indirizzo può non rispecchiare esattamente l’ubicazione dell’immobile ed è utile al solo fine di fornire un riferimento generico per la su localizzazione.
Dati principali
| Riferimento | 61185996 |
| Data annuncio | 03/03/2026 |
| Contratto | Vendita |
| Tipologia | Porzione di casa |
| Superficie | 233 m2 |
| Locali | 5 (5 altro), 2 bagni |
| Piano | 1 di 3 totali |
Costi
| Prezzo | 361.000 € |
| Prezzo al m2 | 1.549 €/m2 |
Efficienza energetica
| Anno costruzione | 1960 |
| Riscaldamento | Autonomo |
| Tipo Alimentazione Riscaldamento | Metano |
| Classe energetica | G |
| Indice di prestazione energetica (EP GL, REN) | 3.5 kWh/m3 anno |
| Indice di prestazione energetica (EP GL, NREN) | 160 kWh/m3 anno |
Planimetrie
Video
Indirizzo e mappa
Via Secchiano, Valsamoggia - quartiere Modena Est
Calcolo mutuo
Prezzo di vendita:
Anticipo
20,00
Mutuo
80,00
Tasso: -+
Rata: 1.032 al mese
I risultati sono una stima indicativa basata sui dati inseriti e non costituiscono un’offerta finanziaria.
Inserzionista
Chiama
CONTATTA

