Bilocale Via san donato, Torino (zona San Donato)
€ 69.000Bilocale in vendita
VIA SAN DONATO
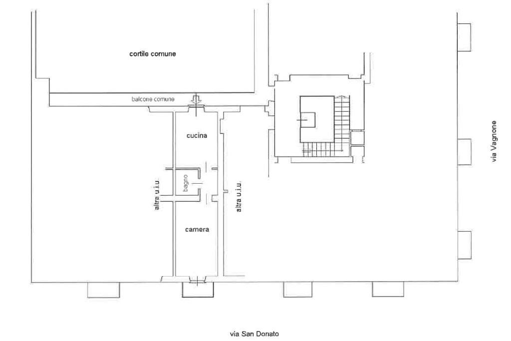
In una zona ben servita, ricca di negozi di quartiere, servizi e collegamenti pubblici facilmente accessibili, appartamento di due locali situato al terzo piano di uno stabile dotato di ascensore, attualmente locato.
L’ingresso avviene dal ballatoio e conduce direttamente alla cucina abitabile; il disimpegno separa la zona notte composta da bagno cieco e camera matrimoniale con accesso al balcone affacciato su Via San Donato, che garantisce una buona luminosità agli ambienti. Gli spazi sono semplici e funzionali, adatti a chi cerca una soluzione essenziale e di facile gestione.
Circa quindici anni fa lo stabile è stato oggetto di importanti interventi di manutenzione straordinaria, tra cui l’installazione dell’ascensore, il rifacimento del tetto e della facciata, aspetti che contribuiscono a mantenere il condominio in buone condizioni generali.
Una proposta particolarmente interessante come investimento, grazie ai costi contenuti e alla buona richiesta locativa della zona, ma adatta anche a chi è alla ricerca di un pratico punto d'appoggio in città.
In una zona ben servita, ricca di negozi di quartiere, servizi e collegamenti pubblici facilmente accessibili, appartamento di due locali situato al terzo piano di uno stabile dotato di ascensore, attualmente locato.
L’ingresso avviene dal ballatoio e conduce direttamente alla cucina abitabile; il disimpegno separa la zona notte composta da bagno cieco e camera matrimoniale con accesso al balcone affacciato su Via San Donato, che garantisce una buona luminosità agli ambienti. Gli spazi sono semplici e funzionali, adatti a chi cerca una soluzione essenziale e di facile gestione.
Circa quindici anni fa lo stabile è stato oggetto di importanti interventi di manutenzione straordinaria, tra cui l’installazione dell’ascensore, il rifacimento del tetto e della facciata, aspetti che contribuiscono a mantenere il condominio in buone condizioni generali.
Una proposta particolarmente interessante come investimento, grazie ai costi contenuti e alla buona richiesta locativa della zona, ma adatta anche a chi è alla ricerca di un pratico punto d'appoggio in città.
Dati principali
| Riferimento | 61184286 |
| Data annuncio | 02/03/2026 |
| Contratto | Vendita |
| Tipologia | Appartamento |
| Superficie | 37 m2 |
| Locali | 2 (2 altro), 1 bagno |
| Piano | 3 di 5 totali |
Costi
| Prezzo | 69.000 € |
| Prezzo al m2 | 1.865 €/m2 |
| Spese condominiali | € 42,00/mese |
Efficienza energetica
| Anno costruzione | 1920 |
| Riscaldamento | Autonomo |
| Tipo Alimentazione Riscaldamento | Metano |
| Classe energetica | F |
| Indice di prestazione energetica (EP GL, REN) | 11.59 kWh/m3 anno |
| Indice di prestazione energetica (EP GL, NREN) | 164.78 kWh/m3 anno |
Planimetrie
Indirizzo e mappa
Via san donato, Torino - quartiere San Donato
Calcolo mutuo
Prezzo di vendita:
Anticipo
20,00
Mutuo
80,00
Tasso: -+
Rata: 197 al mese
I risultati sono una stima indicativa basata sui dati inseriti e non costituiscono un’offerta finanziaria.
Inserzionista
Chiama
CONTATTA

