Casa semi indipendente Via Fiordalisi, Cervia
€ 225.000Casa semindipendente in vendita
CERVIA - MALVA NORD: IN VENDITA NUDA PROPRIETA'
In zona residenziale e ben servita proponiamo nuda proprietà di una casa semindipendente con giardino privato.
L'immobile si sviluppa su due livelli.
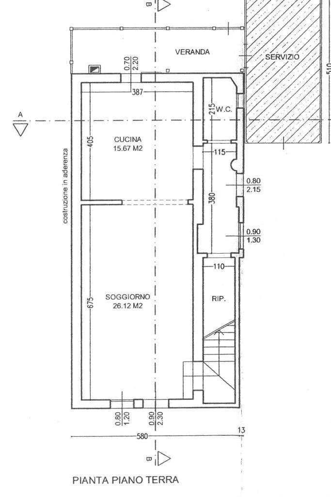
Il piano terra è costituito da un luminoso e accogliente soggiorno, cucina separata con accesso ad una comoda veranda, ripostiglio e un bagno dotato di box doccia.
Proseguendo dalla scala si accede al piano superiore dove troviamo la zona notte caratterizzata da due camere matrimoniali, un guardaroba, un ripostiglio ed un ulteriore bagno.
Completa la soluzione il garage.
Per maggiori informazioni o per fissare un appuntamento di visita chiamare al numero 0544.977424.
In zona residenziale e ben servita proponiamo nuda proprietà di una casa semindipendente con giardino privato.
L'immobile si sviluppa su due livelli.
Il piano terra è costituito da un luminoso e accogliente soggiorno, cucina separata con accesso ad una comoda veranda, ripostiglio e un bagno dotato di box doccia.
Proseguendo dalla scala si accede al piano superiore dove troviamo la zona notte caratterizzata da due camere matrimoniali, un guardaroba, un ripostiglio ed un ulteriore bagno.
Completa la soluzione il garage.
Per maggiori informazioni o per fissare un appuntamento di visita chiamare al numero 0544.977424.
Dati principali
| Riferimento | 61185482 |
| Data annuncio | 02/03/2026 |
| Contratto | Vendita |
| Tipologia | Casa semi indipendente |
| Superficie | 170 m2 |
| Locali | 5 (5 altro), 2 bagni |
| Piano | 2 di 2 totali |
Costi
| Prezzo | 225.000 € |
| Prezzo al m2 | 1.324 €/m2 |
Efficienza energetica
| Anno costruzione | 1970 |
| Riscaldamento | Autonomo |
| Tipo Alimentazione Riscaldamento | Metano |
| Classe energetica | G |
| Indice di prestazione energetica (EP GL, REN) | 170 kWh/m3 anno |
| Indice di prestazione energetica (EP GL, NREN) | 170 kWh/m3 anno |
Planimetrie
Video
Indirizzo e mappa
Via Fiordalisi, Cervia
Calcolo mutuo
Prezzo di vendita:
Anticipo
20,00
Mutuo
80,00
Tasso: -+
Rata: 643 al mese
I risultati sono una stima indicativa basata sui dati inseriti e non costituiscono un’offerta finanziaria.
Inserzionista
Agenzia Tecnocasa Studio Cervia Srl
Viale Roma, 25, Cervia
Mostra Telefono
Chiama
CONTATTA

