Villa Borgata Combacalda, Giaveno
€ 125.000Villa singola in vendita
COAZZE: In Via Combacalda, sul confine Giaveno-Coazze ai confini della zona della Buffa, struttura in corso d'opera; Con giardino privato ed autorimessa (Possibilità anche come bifamiliare).
L'immobile è dotato di giardino privato e gode di un ottima esposzione in pieno sud.
Ad oggi viene venduto l'immobile nello stato attuale:
-progettazione completa, approvata e depositata in comune
-oneri comunali e costi costruttuvi già pagati dall'attuale proprietario
-basamento in cemento armato, sottoservizi e terreno.
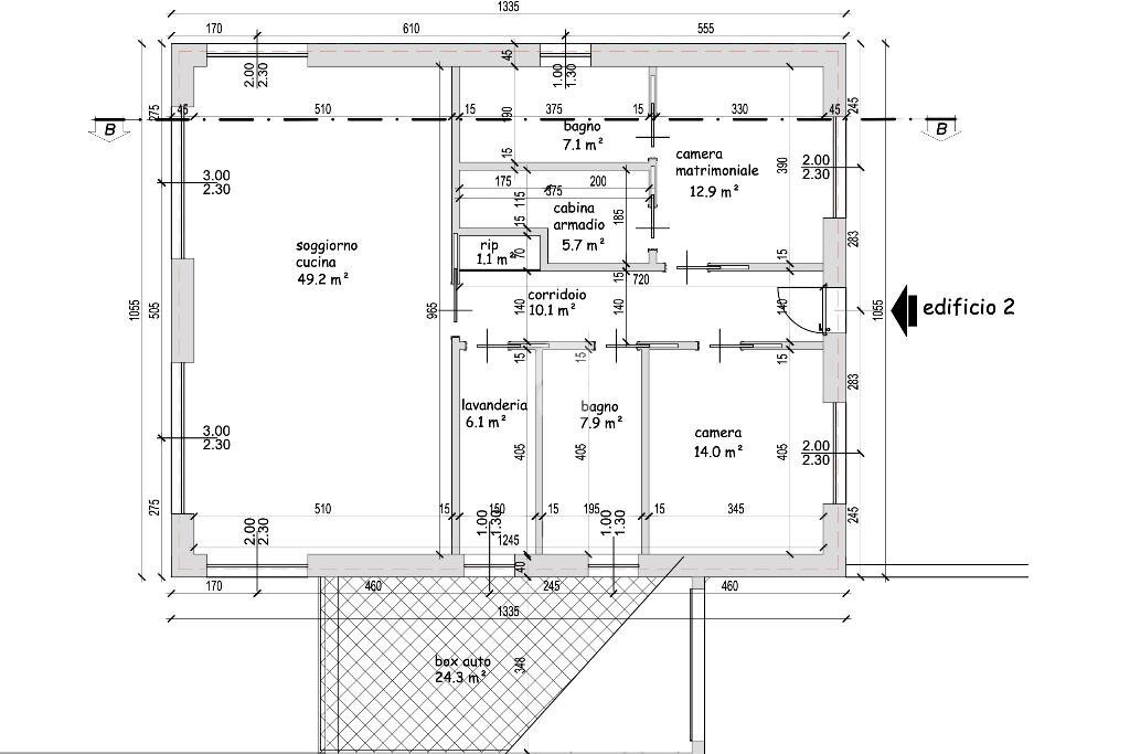
L'immobile in progetto si sviluppa tutto su di un unico livello ed è composto dall'ingresso in disimpegno, l'ampio soggiorno di circa 50 mq con cucina abitabile a vista, il ripostiglio, due camere da letto matrimoniali di cui una con cambina armadio e bagno privato, il bagno ed il bellissimo terrazzo con vista panoramica
L'abitazione inoltre è circondata dal giardino privato ed è dotata di autorimessa privata.
L'immobile è completamente indipendente ad accezione della rampa d'accesso all'autorimessa comune con la villa in costrzuione antestante.
Le specifiche costruttive per il realizzo della struttura progettata prevedono:
-pannelli fotovoltaici
-impianto di climatizzazione
-riscaldamento radiante a arete e pavimento
-impiato con VMC per ricircolo dell'aria
-impianto fotovoltaico
-infissi con triplovetro
ed altre recenti tecnologie utili a garantire immobile dai consumi minimi con classe energetica molto elevata.
Possibilità di acquisto della villa in costruzione antestante, al prezzo di €125.000 per rendere la soluzione bifamiliare.
I rendering fanno riferimento al progetto approvato ed allo studio con strtuttura prefabbricata già concordata con la ditta fornitrice (con la quale è possibile prendere contatto).
Possibilità di appuntamento sul posto e consulenza con tecnici professionisti direttamente in agenzia.
L'immobile è dotato di giardino privato e gode di un ottima esposzione in pieno sud.
Ad oggi viene venduto l'immobile nello stato attuale:
-progettazione completa, approvata e depositata in comune
-oneri comunali e costi costruttuvi già pagati dall'attuale proprietario
-basamento in cemento armato, sottoservizi e terreno.
L'immobile in progetto si sviluppa tutto su di un unico livello ed è composto dall'ingresso in disimpegno, l'ampio soggiorno di circa 50 mq con cucina abitabile a vista, il ripostiglio, due camere da letto matrimoniali di cui una con cambina armadio e bagno privato, il bagno ed il bellissimo terrazzo con vista panoramica
L'abitazione inoltre è circondata dal giardino privato ed è dotata di autorimessa privata.
L'immobile è completamente indipendente ad accezione della rampa d'accesso all'autorimessa comune con la villa in costrzuione antestante.
Le specifiche costruttive per il realizzo della struttura progettata prevedono:
-pannelli fotovoltaici
-impianto di climatizzazione
-riscaldamento radiante a arete e pavimento
-impiato con VMC per ricircolo dell'aria
-impianto fotovoltaico
-infissi con triplovetro
ed altre recenti tecnologie utili a garantire immobile dai consumi minimi con classe energetica molto elevata.
Possibilità di acquisto della villa in costruzione antestante, al prezzo di €125.000 per rendere la soluzione bifamiliare.
I rendering fanno riferimento al progetto approvato ed allo studio con strtuttura prefabbricata già concordata con la ditta fornitrice (con la quale è possibile prendere contatto).
Possibilità di appuntamento sul posto e consulenza con tecnici professionisti direttamente in agenzia.
Dati principali
| Riferimento | 61184545 |
| Data annuncio | 28/02/2026 |
| Contratto | Vendita |
| Tipologia | Villa |
| Superficie | 212 m2 |
| Locali | 4 (2 camere da letto, 2 altro), 2 bagni |
| Piano | 1 totali |
Costi
| Prezzo | 125.000 € |
| Prezzo al m2 | 590 €/m2 |
Efficienza energetica
| Anno costruzione | 2026 |
| Riscaldamento | Autonomo |
| Classe energetica | A4 |
Planimetrie
Video
Indirizzo e mappa
Borgata Combacalda, Giaveno
Calcolo mutuo
Prezzo di vendita:
Anticipo
20,00
Mutuo
80,00
Tasso: -+
Rata: 357 al mese
I risultati sono una stima indicativa basata sui dati inseriti e non costituiscono un’offerta finanziaria.
Inserzionista
Agenzia Tecnocasa Studio Giaveno Sas
Via Roma, 54, Giaveno
Mostra Telefono
Chiama
CONTATTA

