Quadrilocale Pisa
€ 300.000Appartamento - 4 vani a Santa Maria, Pisa
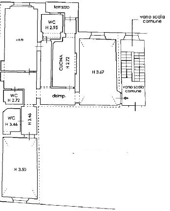
NS. ESCLUSIVA - SANTA MARIA: Ad un passo dal Duomo SPAZIOSA DIMORA STORICA CON POTENZIALE UNICO. A pochi metri dalla suggestiva Piazza dei Miracoli, nel cuore del centro storico di Pisa, APPARTAMENTO di circa mq. 132 situato al primo piano di un PALAZZO D'EPOCA DI SOLE 4 UNITA' ABITATIVE. Un’occasione rara per chi cerca una proprietà di ampio respiro in un contesto intimo, silenzioso e privo delle spese dei grandi condomini. L'abitazione, caratterizzata da ampi volumi tipici dell'architettura storica pisana, è attualmente così distribuita: accogliente sala e cucina abitabile servita da un balcone funzionale, nella zona notte due camere matrimoniali e punto di forza assoluto è la presenza di ben tre bagni (di cui uno finestrato), caratteristica difficilissima da trovare in immobili d'epoca, oltre a tre ripostigli che garantiscono una gestione perfetta degli spazi. L'IMMOBILE, DA RIVEDERE, offre la straordinaria opportunità di personalizzare le finiture e la distribuzione interna degli ambienti secondo i propri gusti e le proprie esigenze. CE F ipe 281.822 kWh/mq. anno. Rif. NV3061 Rich. € 300.000 tr.
Dati principali
| Riferimento | NV3061 |
| Data annuncio | 23/02/2026 |
| Contratto | Vendita |
| Tipologia | Appartamento |
| Superficie | 132 m2 |
| Locali | 4 (2 camere da letto, 2 altro), 3 bagni |
| Piano | 1 totali |
| Numero di balconi | 1 |
Costi
| Prezzo | 300.000 € |
| Prezzo al m2 | 2.273 €/m2 |
Efficienza energetica
| Classe energetica | F |
Planimetrie
Indirizzo e mappa
Pisa
Annuncio senza mappa,
prova a chiedere la posizione all'inserzionista
prova a chiedere la posizione all'inserzionista
Calcolo mutuo
Prezzo di vendita:
Anticipo
20,00
Mutuo
80,00
Tasso: -+
Rata: 858 al mese
I risultati sono una stima indicativa basata sui dati inseriti e non costituiscono un’offerta finanziaria.
Inserzionista
Le case di Nadia Ciacchini
Via Santa Marta 9, Pisa
Mostra Telefono
Mostra Cellulare
Chiama
CONTATTA

