Capannone via Giovanni Servais, 15, Torino (zona Parella)
€ 245.000INTERO COMPLESSO COMMERCIALE CON CAPANNONE, NEGOZIO E AUTORI
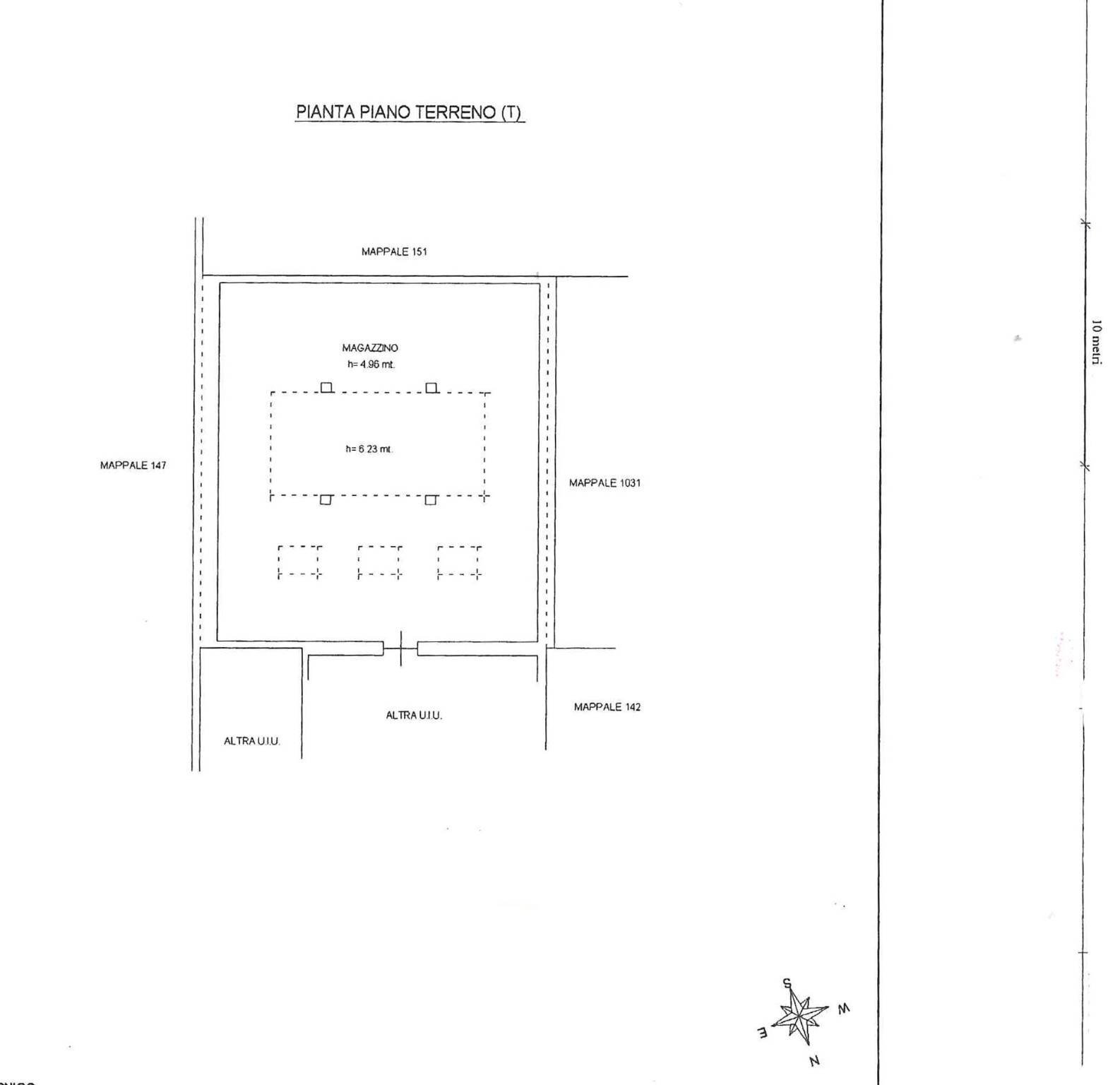
Proponiamo in vendita blocco unico composto da più unità collegate tra loro, ideale per attività commerciali, artigianali o logistiche. L’immobile si sviluppa come segue: •Negozio fronte strada con ottima visibilità, dotato di due ampie vetrine e ingresso diretto da piano strada. •Locale retrostante collegato al negozio, perfetto come magazzino, laboratorio o spazio operativo. •Autorimessa utilizzabile anche come passaggio interno che conduce al capannone. •Capannone di circa 200 mq, adatto a deposito, lavorazioni artigianali o attività produttive leggere. •Ingresso carraio indipendente, comodo per carico/scarico merci e accesso mezzi. La soluzione viene proposta in vendita in blocco unico, ideale per chi necessita di spazi versatili e funzionali in un’unica proprietà. Ape in fase di rilascio. La presente descrizione e/o foto non costituiscono vincolo contrattuale. Vai sul nostro sito internet, e troverai l'immobile che fa per te. I nostri uffici seguono i seguenti orari lun-ven 9,00 - 12,30; 14,30 - 19,30 - sabato: 9,00 - 12,30. SEDE TORINO - HOMEWORK IMMOBILIARE S. R. L. Via Giacinto Collegno 10/B, 10143 Torino Tel. 011.20. 70.488 E-mail: SEDE VENARIA REALE (TO) - HOMEWORK IMMOBILIARE S. R. L. Via Pietro Rolle 2, 10078 Venaria Reale (TO) Tel. 351.53. 13.651 E-mail: SEDE CHIVASSO (TO) - HOMEWORK IMMOBILIARE S. R. L. Viale Giacomo Matteotti 4/A, 10034 Chivasso (TO) Tel. 011.19. 66.7210 E-mail:.
Dati principali
| Riferimento | Via Servais 15 - locale commerciale |
| Data annuncio | 26/02/2026 |
| Contratto | Vendita |
| Tipologia | Capannone |
| Superficie | 315 m2 |
| Piano | 1 totali |
| Uso immobile | Commerciale ed Industriale |
Costi
| Prezzo | 245.000 € |
| Prezzo al m2 | 778 €/m2 |
Efficienza energetica
| Classe energetica | Immobile esente da certificazione energetica |
Planimetrie
Indirizzo e mappa
via Giovanni Servais, 15, Torino - quartiere Parella
Calcolo mutuo
Prezzo di vendita:
Anticipo
20,00
Mutuo
80,00
Tasso: -+
Rata: 701 al mese
I risultati sono una stima indicativa basata sui dati inseriti e non costituiscono un’offerta finanziaria.
Inserzionista

Homework Immobiliare
Via Giacinto Collegno 10/B, Torino
Mostra Telefono
Chiama
CONTATTA

