Casa indipendente VIA VERDI 6, Trezzano Rosa
€ 289.000
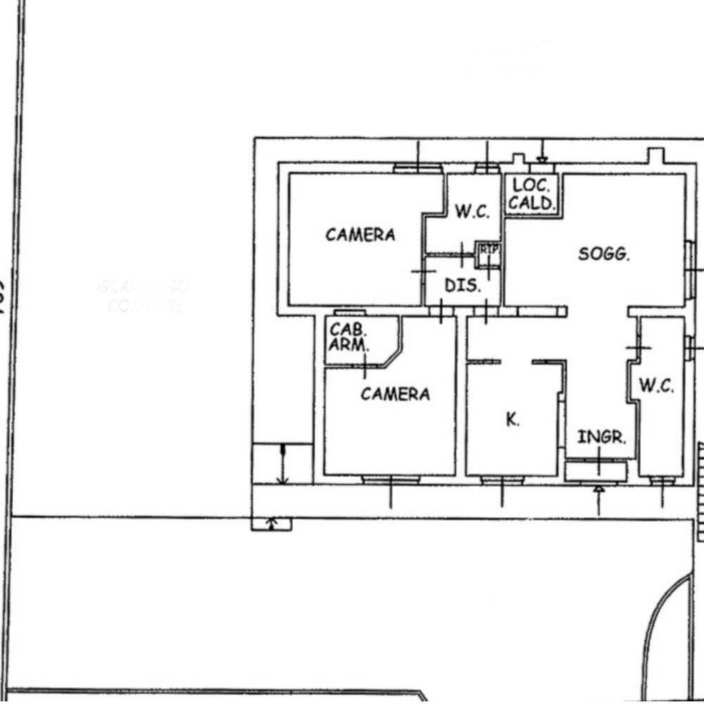
Via Verdi 6, Trezzano Rosa (MI) CASA INDIPENDENTE 150mq CON GIARDINO PRIVATO 800mq Casa Wilson Noi diventiamo grandi con i sogni, tutti i grandi uomini sono sognatori. (Woodrow Wilson) Cè una casa che nasce per chi ha sogni grandi, spazi veri e il desiderio di indipendenza. Casa Wilson, a Trezzano Rosa, è il luogo perfetto per far crescere la propria storia. Proponiamo casa indipendente trilocale di 150 mq, libera su quattro lati e immersa nel verde, ideale per chi cerca privacy, tranquillità e ampi spazi interni ed esterni. '¨ Composizione interna Ingresso accogliente Ampio soggiorno luminoso Cucina abitabile Due camere spaziose Doppi servizi Ripostiglio ð¡ Spazi esterni e caratteristiche Giardino privato su 3 lati di circa 800 mq, perfetto per famiglia, animali o momenti allaperto Esposizione quadrupla che garantisce luce naturale tutto il giorno Box doppio ð§ Dotazioni Predisposizione aria condizionata Inferiate e zanzariere Ristrutturata circa 15 anni fa Limmobile si trova in Via Verdi, tranquilla zona residenziale del comune di Trezzano Rosa, caratterizzata da contesti abitativi riservati e ben curati. La posizione è comoda per raggiungere i principali servizi del paese come scuole, negozi e aree verdi, oltre a garantire rapidi collegamenti con i comuni limitrofi e con Milano grazie alla vicinanza dellAutostrada A4 MilanoVenezia e della fermata della Linea M2 della Metropolitana di Milano di Gessate. Una soluzione ideale per chi desidera vivere in un contesto tranquillo senza rinunciare alla comodità dei collegamenti. Una casa solida, indipendente, dove ogni spazio invita a immaginare il futuro e costruire nuovi sogni.
Dati principali
| Riferimento | IR-VIA VERDI |
| Data annuncio | 28/02/2026 |
| Contratto | Vendita |
| Tipologia | Casa indipendente |
| Superficie | 150 m2 |
| Locali | 3 (2 camere da letto, 1 altro), 2 bagni, cucina abitabile |
| Piano | Terra |
| Tipo di costruzione | Signorile |
| Occupato | Libero |
| Box auto | Doppio |
| Arredamento | Assente |
Caratteristiche
Costi
| Prezzo | 289.000 € |
| Prezzo al m2 | 1.927 €/m2 |
Efficienza energetica
| Stato | Buono |
| Riscaldamento | Autonomo |
| Classe energetica | E |
| Indice di prestazione energetica (IPE) | 158 kWh/m2 anno |
Planimetrie
Indirizzo e mappa
VIA VERDI
6, Trezzano Rosa
Annuncio senza mappa,
prova a chiedere la posizione all'inserzionista
prova a chiedere la posizione all'inserzionista
Calcolo mutuo
Prezzo di vendita:
Anticipo
20,00
Mutuo
80,00
Tasso: -+
Rata: 827 al mese
I risultati sono una stima indicativa basata sui dati inseriti e non costituiscono un’offerta finanziaria.
Inserzionista

Homie di Costa Claudia
VIA GUGLIELMO OBERDAN 54, Brugherio
Mostra Telefono
Mostra Cellulare
Chiama
CONTATTA

