Quadrilocale Via Marconi 2, Treviolo
€ 292.000
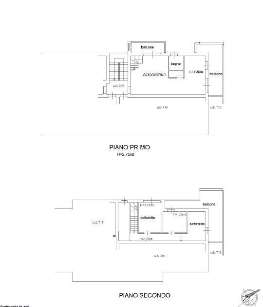
AMPIO APPARTAMENTO SU DUE LIVELLI IN CENTRO TREVIOLO FINITURE ELEGANTI, DOPPIA TERRAZZA E BOX DOPPIO IN LUNGHEZZA. In pieno centro Treviolo, in contesto recente (2018) curato e comodo a tutti i servizi, proponiamo ampio e moderno appartamento su due livelli di circa 120 mq commerciali, con ottime finiture e spazi pensati per chi vuole comfort, stile e praticità quotidiana. Labitazione si sviluppa al piano primo e al piano superiore mansardato con travi a vista, collegati internamente da ampia ed elegante scala che valorizza lambiente e rende i due livelli davvero funzionali. Spazi interni: Piano primo (principale): zona giorno luminosa con accesso a terrazza vivibile, ambienti ben distribuiti e finiture moderne. Piano superiore mansardato: tre locali oggi organizzati come camere + secondo bagno e accesso a seconda terrazza. Questo livello è rifinito con gusto, con travi a vista e parquet, impianti presenti e spazi sfruttabili in modo estremamente comodo. Altezze: minima 1,75 m solo su un lato e 2,25 m per la restante parte. Dotazioni e comfort: Classe energetica A+ Riscaldamento autonomo a pavimento Aria condizionata Zanzariere Tripli vetri Pertinenze: Box doppio in lunghezza (comodo anche per auto + moto/bici o scaffalature) Zona: Posizione centrale e servitissima: negozi, servizi, scuole e comodità a portata di mano, con parcheggi pubblici nelle vicinanze e mezzi pubblici facilmente accessibili. Nota importante: Il piano superiore mansardato è una superficie accessoria non agibile: è già stato considerato il tutto relativamente alla percentuale di rapporto mq/prezzo (50%) sul valore commerciale. Al tempo stesso, per finiture, impianti e vivibilità degli spazi, risulta un ambiente molto pratico per esigenze quotidiane (studio, ospiti, hobby, locali organizzati come camere).
Dati principali
| Riferimento | GLB-AC TREVIOLO 295 |
| Data annuncio | 28/02/2026 |
| Contratto | Vendita |
| Tipologia | Appartamento |
| Superficie | 121 m2 |
| Locali | 4 (3 camere da letto, 1 altro), 2 bagni, cucina a vista |
| Piano | Su più livelli, 2 totali |
| Tipo di costruzione | Signorile |
| Occupato | Libero |
| Box auto | Doppio |
| Arredamento | Parziale |
Caratteristiche
Costi
| Prezzo | 292.000 € |
| Prezzo al m2 | 2.413 €/m2 |
| Spese Riscaldamento | € 50,00/anno |
Efficienza energetica
| Stato | Ottimo |
| Riscaldamento | Autonomo |
| Tipo Impianto Di Riscaldamento | a pavimento |
| Classe energetica | A1 |
Planimetrie
Indirizzo e mappa
Via Marconi
2, Treviolo
Annuncio senza mappa,
prova a chiedere la posizione all'inserzionista
prova a chiedere la posizione all'inserzionista
Calcolo mutuo
Prezzo di vendita:
Anticipo
20,00
Mutuo
80,00
Tasso: -+
Rata: 835 al mese
I risultati sono una stima indicativa basata sui dati inseriti e non costituiscono un’offerta finanziaria.
Inserzionista

BG Immobiliare
via Bergamo 25, Curno
Mostra Telefono
Mostra Cellulare
Chiama
CONTATTA

