Locale Commerciale Strada Statale 525 2, Osio Sopra
€ 1.690.000
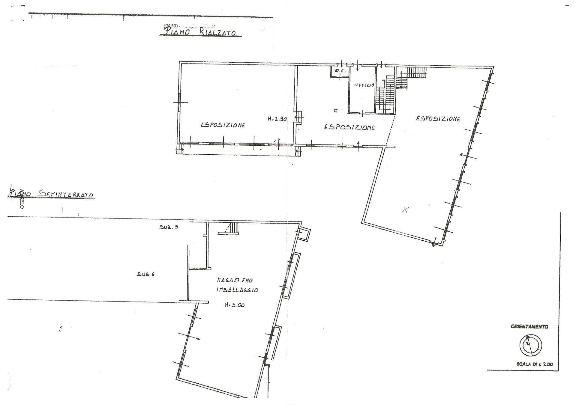
Spazio commerciale indipendente in vendita, composto da:
- Spazio commerciale polifunzionale (categoria catastale D/8) di 1.110 mq su due piani, ideale anche per attività di ristorazione o altre destinazioni d'uso.
- Abitazione di 120 mq al piano superiore, con una splendida terrazza di 110 mq.
- Piano interrato con un locale industriale di circa 240 mq e una autorimessa.
- Piazzale parcheggio adiacente alla strada di 1.200 mq, con ampio spazio per il posteggio di veicoli.
- Secondo piazzale parcheggio interrato per ulteriore comodità di sosta.
Questa proprietà offre numerose opportunità, con ampi spazi per uso commerciale, in una posizione strategica e ben servita.
- Spazio commerciale polifunzionale (categoria catastale D/8) di 1.110 mq su due piani, ideale anche per attività di ristorazione o altre destinazioni d'uso.
- Abitazione di 120 mq al piano superiore, con una splendida terrazza di 110 mq.
- Piano interrato con un locale industriale di circa 240 mq e una autorimessa.
- Piazzale parcheggio adiacente alla strada di 1.200 mq, con ampio spazio per il posteggio di veicoli.
- Secondo piazzale parcheggio interrato per ulteriore comodità di sosta.
Questa proprietà offre numerose opportunità, con ampi spazi per uso commerciale, in una posizione strategica e ben servita.
Dati principali
| Riferimento | ML-0001 |
| Data annuncio | 28/02/2026 |
| Contratto | Vendita |
| Tipologia | Locale Commerciale |
| Superficie | 1796 m2 |
| Occupato | Libero |
Costi
| Prezzo | 1.690.000 € |
| Prezzo al m2 | 941 €/m2 |
Efficienza energetica
| Stato | Buono |
| Tipo Alimentazione Riscaldamento | Altro |
| Classe energetica | Immobile esente da certificazione energetica |
Planimetrie
Indirizzo e mappa
Strada Statale 525
2, Osio Sopra
Annuncio senza mappa,
prova a chiedere la posizione all'inserzionista
prova a chiedere la posizione all'inserzionista
Calcolo mutuo
Prezzo di vendita:
Anticipo
20,00
Mutuo
80,00
Tasso: -+
Rata: 4.833 al mese
I risultati sono una stima indicativa basata sui dati inseriti e non costituiscono un’offerta finanziaria.
Inserzionista

BG Immobiliare
via Bergamo 25, Curno
Mostra Telefono
Mostra Cellulare
Chiama
CONTATTA

