Quadrilocale Via Giuseppe Dezza, Melegnano
€ 462.000Quadrilocale in vendita
MELEGNANO via Dezza nuova costruzione
Nel cuore del paese proponiamo palazzina di nuova costruzione con soli 5 appartamenti di 4 e 5 locali, con possibilità di terrazzi e giardini privati, dove per ogni piano verrà realizzato un solo appartamento. La palazzina avrà ascensore, finiture di pregio, possibilità di personalizzazione, elevati standard costruttivi e di efficientamento energetico come l' installazione di pannelli fotovoltaici individuali con potenza di 2 kW. Gli immobili saranno dotati di impianto termico autonomo ad aria per la climatizzazione degli ambienti in pompa di calore per riscaldamento e raffrescamento. Saranno muniti inoltre di un impianto di ventilazione meccanica controllata con recupero di calore.
Consegna prevista estate 2027
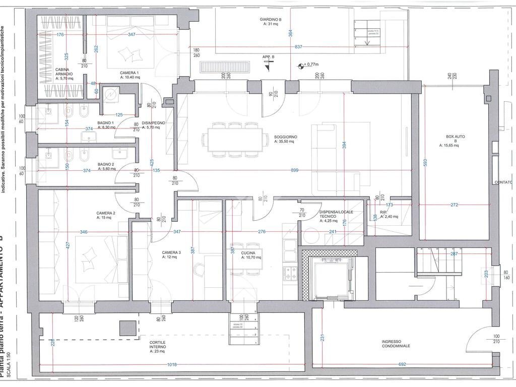
Al piano terra proponiamo appartamento di 4 locali con spazi ampi e ben distribuiti, dotato di giardino e cortile privato. Il soggiorno è ampio e affaccia sul giardino, la cucina è abitabile, con dispensa e affaccio sul cortile. Le camere da letto sono tre, di cui una con cabina armadio e affaccio sul giardino. Ci sono poi due moderni bagni finestrati e un comodo ripostiglio. Completano la proprietà il box e la cantina, c'è la possibilità di acquisto del posto auto.
Nel cuore del paese proponiamo palazzina di nuova costruzione con soli 5 appartamenti di 4 e 5 locali, con possibilità di terrazzi e giardini privati, dove per ogni piano verrà realizzato un solo appartamento. La palazzina avrà ascensore, finiture di pregio, possibilità di personalizzazione, elevati standard costruttivi e di efficientamento energetico come l' installazione di pannelli fotovoltaici individuali con potenza di 2 kW. Gli immobili saranno dotati di impianto termico autonomo ad aria per la climatizzazione degli ambienti in pompa di calore per riscaldamento e raffrescamento. Saranno muniti inoltre di un impianto di ventilazione meccanica controllata con recupero di calore.
Consegna prevista estate 2027
Al piano terra proponiamo appartamento di 4 locali con spazi ampi e ben distribuiti, dotato di giardino e cortile privato. Il soggiorno è ampio e affaccia sul giardino, la cucina è abitabile, con dispensa e affaccio sul cortile. Le camere da letto sono tre, di cui una con cabina armadio e affaccio sul giardino. Ci sono poi due moderni bagni finestrati e un comodo ripostiglio. Completano la proprietà il box e la cantina, c'è la possibilità di acquisto del posto auto.
Dati principali
| Riferimento | 61182472 |
| Data annuncio | 27/02/2026 |
| Contratto | Vendita |
| Tipologia | Appartamento |
| Superficie | 157 m2 |
| Locali | 4 (4 altro), 2 bagni |
| Piano | 3 totali |
Costi
| Prezzo | 462.000 € |
| Prezzo al m2 | 2.943 €/m2 |
Efficienza energetica
| Anno costruzione | 2026 |
| Riscaldamento | Autonomo |
| Classe energetica | Immobile esente da certificazione energetica |
Planimetrie
Indirizzo e mappa
Via Giuseppe Dezza, Melegnano
Calcolo mutuo
Prezzo di vendita:
Anticipo
20,00
Mutuo
80,00
Tasso: -+
Rata: 1.321 al mese
I risultati sono una stima indicativa basata sui dati inseriti e non costituiscono un’offerta finanziaria.
Inserzionista
Chiama
CONTATTA

