Appartamento Via Francesco Baracca, Firenze (zona Santa Maria Novella)
€ 450.000Appartamento a Novoli, Firenze
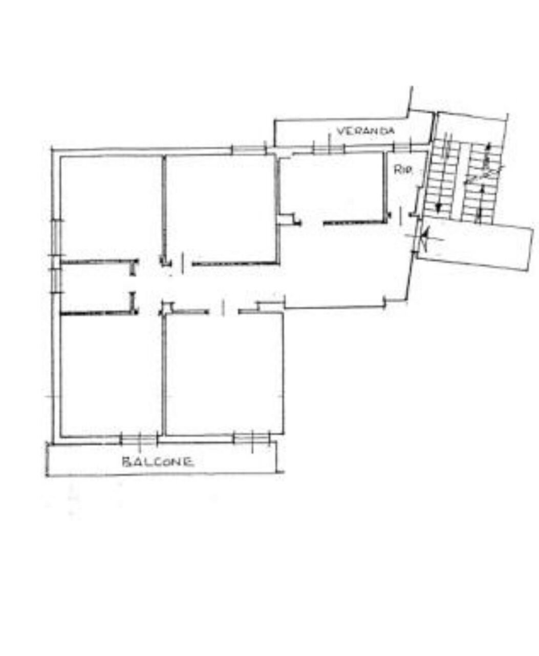
a26078 - Firenze/Novoli - Via Francesco Baracca In elegante contesto residenziale, in prossimità di tutti i principali servizi ed a pochi minuti da Palazzi Rossi, IMMOBILIARE BELVEDERE propone in vendita ampio e luminoso appartamento (110 mq) situato al secondo piano composto da: ingresso, soggiorno con angolo cottura con veranda, quattro camere da letto matrimoniali di cui due che si affacciano al balcone, bagno finestrato. L'immobile si presenta in ottime condizioni generali, gli impianti sono stati recentemente ristrutturati, gode di piacevoli affacci ed è dotato di pavimenti in marmo, infissi con doppia vetrocamera, aria condizionata. Termosingolo con radiatori a gas, classe energetica in fase di esecuzione.
Dati principali
| Riferimento | a26078 |
| Data annuncio | 26/02/2026 |
| Contratto | Vendita |
| Tipologia | Appartamento |
| Superficie | 110 m2 |
| Locali | 5 (4 camere da letto, 1 altro), 1 bagno |
| Piano | 1 totali |
| Numero di balconi | 1 |
Costi
| Prezzo | 450.000 € |
| Prezzo al m2 | 4.091 €/m2 |
Efficienza energetica
| Anno costruzione | 1970 |
| Classe energetica | G |
Planimetrie
Indirizzo e mappa
Via Francesco Baracca, Firenze - quartiere Santa Maria Novella
Calcolo mutuo
Prezzo di vendita:
Anticipo
20,00
Mutuo
80,00
Tasso: -+
Rata: 1.287 al mese
I risultati sono una stima indicativa basata sui dati inseriti e non costituiscono un’offerta finanziaria.
Inserzionista
Immobiliare Belvedere
Via Il Prato 61r, Firenze
Mostra Telefono
Chiama
CONTATTA

