Trilocale Via Caduti per la Libertà, Cervia
€ 350.000Trilocale in vendita
PINARELLA
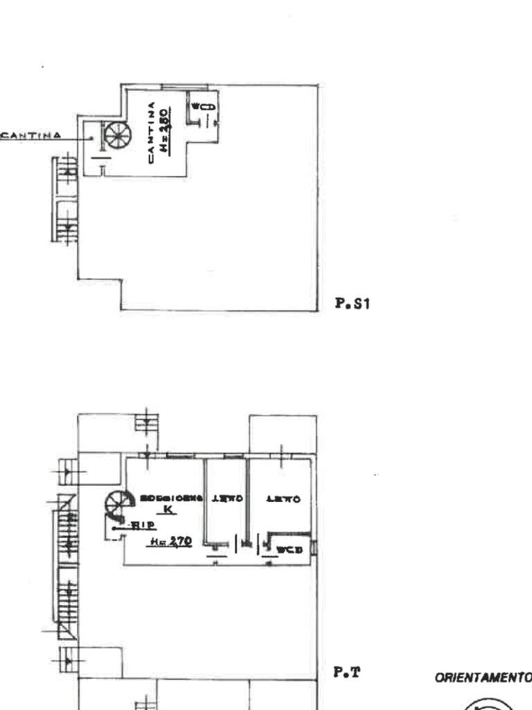
Tra Cervia e Pinarella, proponiamo in vendita appartamento di 92 mq situato al piano terra di una costruzione del 1998.
L'immobile, offre un ingresso indipendente che conduce ad un accogliente soggiorno con angolo cottura. La zona notte comprende una camera matrimoniale ed una camera singola, entrambe servite da un bagno.
Un ulteriore vantaggio è rappresentato dalla cantina servita da bagno, facilmente accessibile tramite una scala interna, ideale per chi necessita di spazio aggiuntivo per lo stoccaggio. All'esterno, un giardino privato offre un angolo di tranquillità e svago.
Completa la proprietà un comodo garage, perfetto per il parcheggio o come ulteriore spazio di deposito. Questa soluzione abitativa è ideale per chi cerca comfort e praticità in una delle località più apprezzate della riviera romagnola.
Per maggiori informazioni chiama 0544.986427 - 393.9205189 oppure manda una mail a rahe1
Tra Cervia e Pinarella, proponiamo in vendita appartamento di 92 mq situato al piano terra di una costruzione del 1998.
L'immobile, offre un ingresso indipendente che conduce ad un accogliente soggiorno con angolo cottura. La zona notte comprende una camera matrimoniale ed una camera singola, entrambe servite da un bagno.
Un ulteriore vantaggio è rappresentato dalla cantina servita da bagno, facilmente accessibile tramite una scala interna, ideale per chi necessita di spazio aggiuntivo per lo stoccaggio. All'esterno, un giardino privato offre un angolo di tranquillità e svago.
Completa la proprietà un comodo garage, perfetto per il parcheggio o come ulteriore spazio di deposito. Questa soluzione abitativa è ideale per chi cerca comfort e praticità in una delle località più apprezzate della riviera romagnola.
Per maggiori informazioni chiama 0544.986427 - 393.9205189 oppure manda una mail a rahe1
Dati principali
| Riferimento | 61182661 |
| Data annuncio | 27/02/2026 |
| Contratto | Vendita |
| Tipologia | Appartamento |
| Superficie | 92 m2 |
| Locali | 3 (3 altro), 2 bagni |
| Piano | 2 totali |
Costi
| Prezzo | 350.000 € |
| Prezzo al m2 | 3.804 €/m2 |
| Spese condominiali | € 42,00/mese |
Efficienza energetica
| Anno costruzione | 1998 |
| Riscaldamento | Autonomo |
| Tipo Alimentazione Riscaldamento | Metano |
| Classe energetica | Immobile esente da certificazione energetica |
Planimetrie
Indirizzo e mappa
Via Caduti per la Libertà, Cervia
Calcolo mutuo
Prezzo di vendita:
Anticipo
20,00
Mutuo
80,00
Tasso: -+
Rata: 1.001 al mese
I risultati sono una stima indicativa basata sui dati inseriti e non costituiscono un’offerta finanziaria.
Inserzionista
Agenzia Tecnocasa Studio Cervia Srl
Via Tritone, 11, Cervia
Mostra Telefono
Chiama
CONTATTA

