Quadrilocale Alessandria
€ 122.000
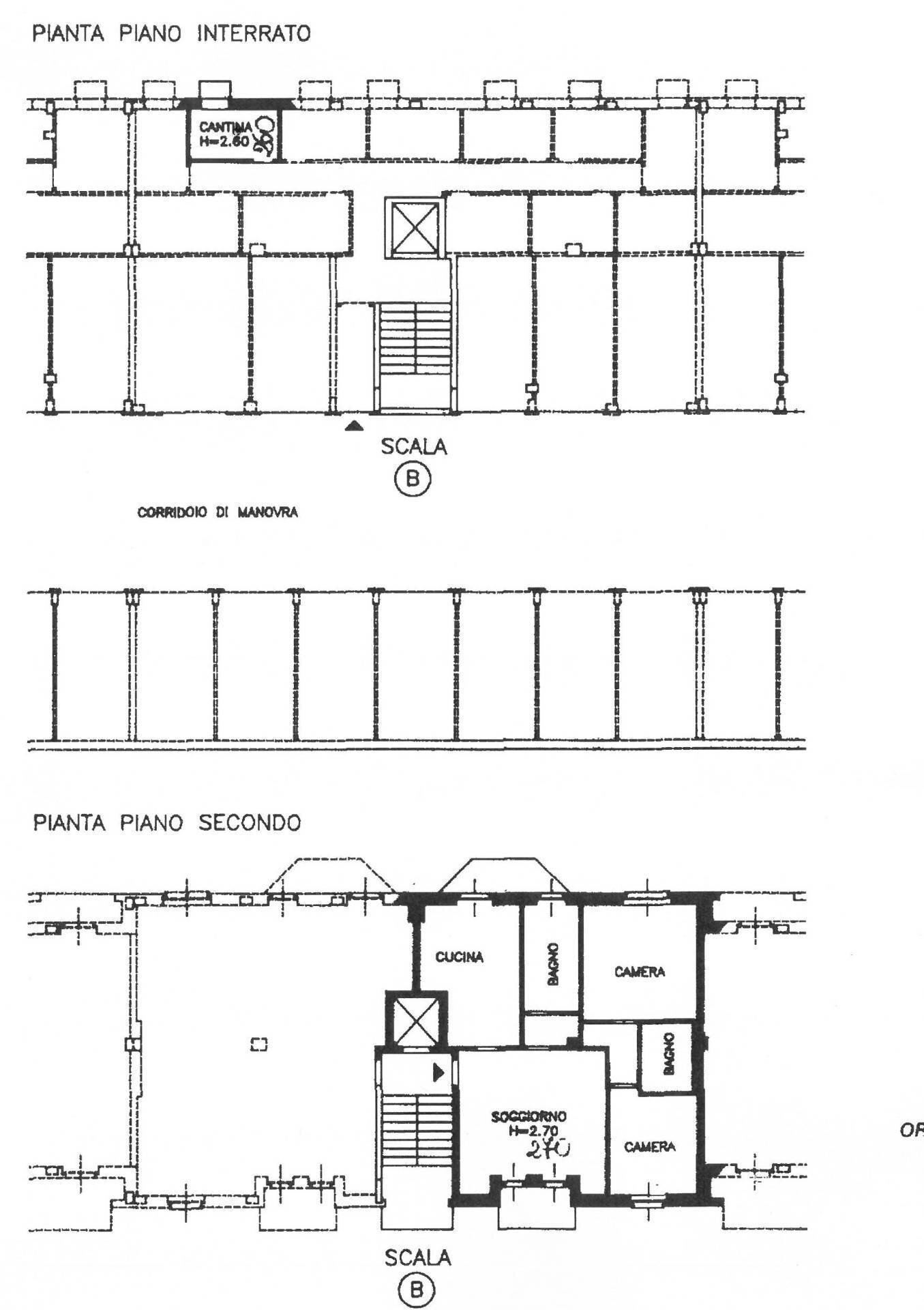
ALESSANDRIA ZONA CRISTO: Nei pressi di supermercati e servizi, in palazzina di recente costruzione , rifinita in paramano esterno, sito al 2°piano con ascensore, munito di RISCALDAMENTO AUTONOMO, proponiamo in vendita alloggio in ottimo stato composto da: ingresso, salone, cucina abitabile, 2 camere da letto, 2 bagni (di cui uno con ventilazione forzata), balcone cantina e BOX AUTO. Porta blindata, infissi doppio vetro. 122.000,00 - Rif. 38 A.P.E. Classe "D" 107.01 kWh/m2 Per informazioni e visite contattare GIERRE immobiliare 0131.218521
Dati principali
| Riferimento | 38 |
| Data annuncio | 26/02/2026 |
| Contratto | Vendita |
| Tipologia | Appartamento |
| Superficie | 96 m2 |
| Locali | 4 (2 camere da letto, 2 altro), 2 bagni, cucina abitabile |
| Piano | 2 di 5 totali |
| Tipo di costruzione | Media |
| Occupato | Libero |
| Box auto | Singolo |
| Arredamento | Assente |
Caratteristiche
Costi
| Prezzo | 122.000 € |
| Prezzo al m2 | 1.271 €/m2 |
Efficienza energetica
| Stato | Ottimo |
| Riscaldamento | Autonomo |
| Classe energetica | D |
| Indice di prestazione energetica (IPE) | 107 kWh/m2 anno |
Planimetrie
Indirizzo e mappa
Alessandria
Annuncio senza mappa,
prova a chiedere la posizione all'inserzionista
prova a chiedere la posizione all'inserzionista
Calcolo mutuo
Prezzo di vendita:
Anticipo
20,00
Mutuo
80,00
Tasso: -+
Rata: 349 al mese
I risultati sono una stima indicativa basata sui dati inseriti e non costituiscono un’offerta finanziaria.
Inserzionista

Eurocasa Gierre Immobiliare
Corso Acqui 83, Alessandria
Mostra Telefono
Mostra Cellulare
Chiama
CONTATTA

