Trilocale via Salaria 53, Monterotondo
€ 149.000
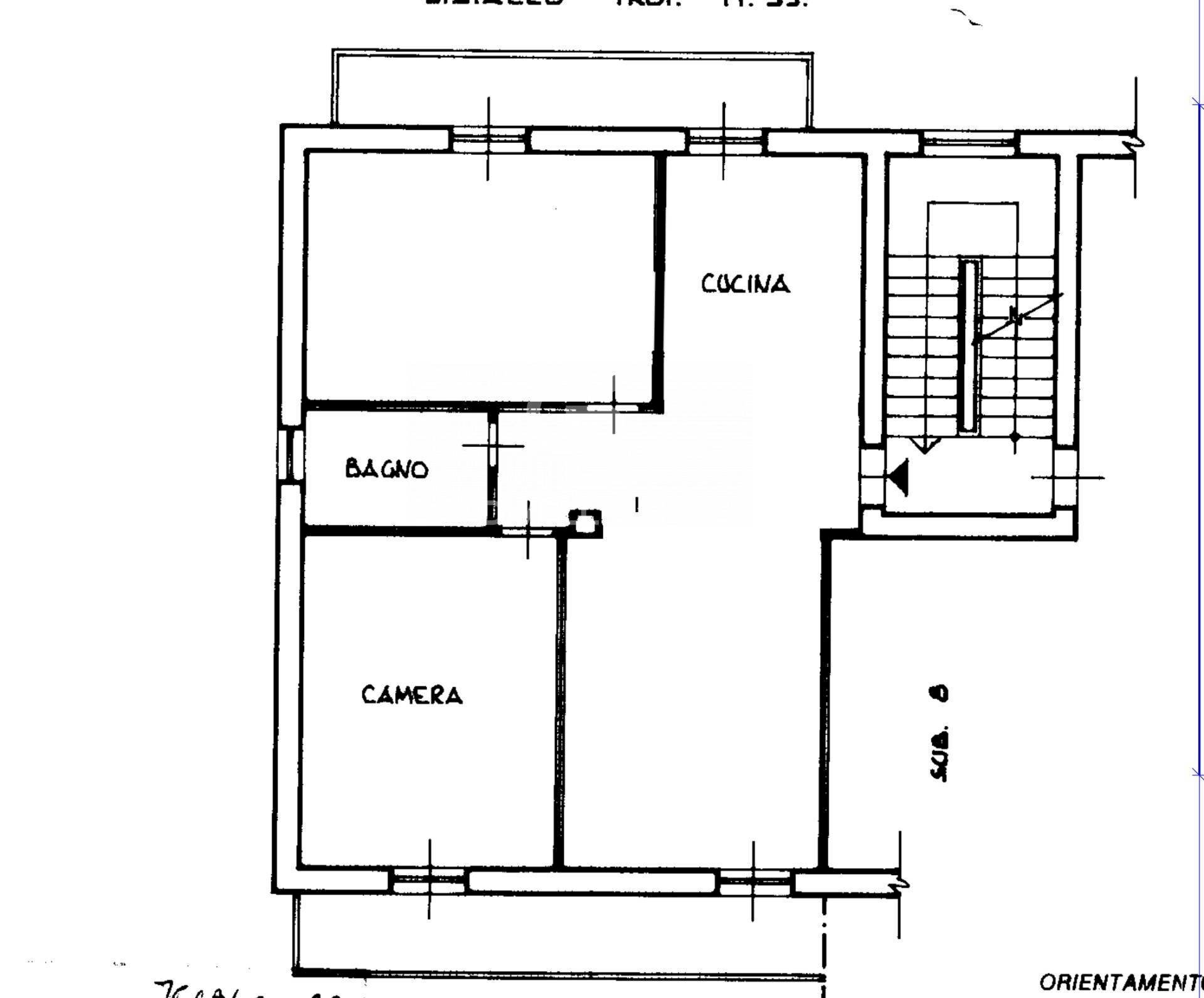
Monterotondo Scalo - Via Salaria, proponiamo in vendita un ampio trilocale ristrutturato nel 2025 con box auto doppio. Lappartamento è composto da un ampio salone con cucina a vista, disimpegno, bagno con finestra e due camere matrimoniali, una delle quali dotata di servizio privato. Tutti gli ambienti, ad eccezione dei bagni, dispongono di accesso diretto ai balconi. La proprietà include inoltre un box auto doppio situato nella corte esterna comune, allinterno della quale è possibile parcheggiare unulteriore vettura. Limmobile è posto al primo piano di un edificio composto da sole due unità abitative e privo di spese condominiali. La recente ristrutturazione interna ha riguardato laggiornamento completo degli impianti, linstallazione del riscaldamento a pavimento e la predisposizione per le tapparelle elettriche. Gli spazi sono stati rimodulati e arricchiti con finiture moderne; risultano attualmente mancanti gli infissi e la caldaia. APE "G"
Dati principali
| Riferimento | CBI049-1010-898 |
| Data annuncio | 26/02/2026 |
| Contratto | Vendita |
| Tipologia | Appartamento |
| Superficie | 90 m2 |
| Locali | 3 (2 camere da letto, 1 altro), 2 bagni, cucina a vista |
| Piano | Alto, 1 totali |
| Tipo di costruzione | Media |
| Occupato | Libero |
| Box auto | Doppio |
| Numero posti auto | 2 |
| Arredamento | Assente |
Costi
| Prezzo | 149.000 € |
| Prezzo al m2 | 1.656 €/m2 |
Efficienza energetica
| Stato | Parzialmente ristrutturato |
| Riscaldamento | Autonomo |
| Tipo Impianto Di Riscaldamento | a pavimento |
| Classe energetica | G |
| Indice di prestazione energetica (IPE) | 176 kWh/m2 anno |
Planimetrie
Indirizzo e mappa
via Salaria
53, Monterotondo
Annuncio senza mappa,
prova a chiedere la posizione all'inserzionista
prova a chiedere la posizione all'inserzionista
Calcolo mutuo
Prezzo di vendita:
Anticipo
20,00
Mutuo
80,00
Tasso: -+
Rata: 426 al mese
I risultati sono una stima indicativa basata sui dati inseriti e non costituiscono un’offerta finanziaria.
Inserzionista

Coldwell Banker Eretum RE Group
Via Corsica 28, Monterotondo
Mostra Telefono
Mostra Cellulare
Chiama
CONTATTA

