Trilocale Via Laggiaro 45, Rapallo
€ 165.000Appartamento - Bilocale a Laggiaro, Rapallo
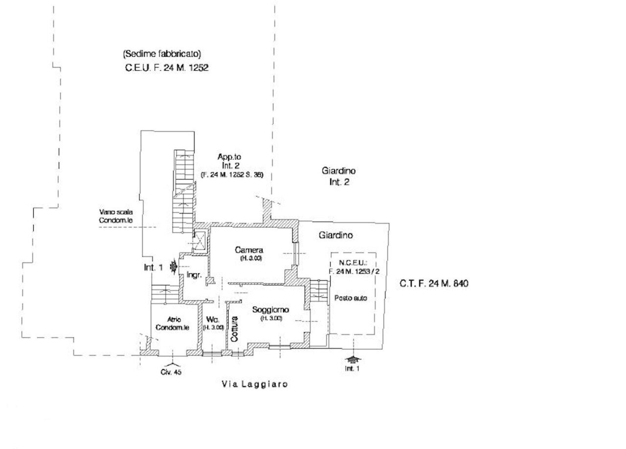
RAPALLO - PIANO RIALZATO CON GIARDINO E POSTO AUTO - A pochi minuti dal centro e dal mare, proponiamo in ESCLUSIVA un appartamento di 55 mq situato al piano rialzato di una palazzina in ottime condizioni generali. L’immobile è composto da ingresso, soggiorno con angolo cottura, ampia camera matrimoniale e bagno finestrato. Gli spazi interni si presentano in ottime condizioni e l’appartamento viene venduto completamente arredato, pronto per essere abitato senza necessità di interventi. Dal soggiorno si accede direttamente a un piacevole giardino terrazzato di circa 30 mq, uno spazio esterno vivibile e riservato, ideale per pranzi all’aperto o momenti di relax. All’interno della proprietà, tramite cancello elettrico, è presente un posto auto privato con la possibilità di parcheggiare comodamente una seconda vettura. Completa la proprietà una cantina. La soluzione si presta perfettamente sia come abitazione principale sia come investimento, grazie alla posizione comoda ai servizi e alle spiagge e alla presenza dello spazio esterno e del parcheggio, caratteristiche particolarmente richieste in zona. Rif. 22802 € 165.000
Dati principali
| Riferimento | 22802 |
| Data annuncio | 24/02/2026 |
| Contratto | Vendita |
| Tipologia | Appartamento |
| Superficie | 55 m2 |
| Locali | 3 (1 camera da letto, 2 altro), 1 bagno |
| Piano | 1 totali |
| Numero di balconi | 1 |
| Numero posti auto | 1 |
| Arredamento | Completo |
Costi
| Prezzo | 165.000 € |
| Prezzo al m2 | 3.000 €/m2 |
| Spese condominiali | € 83,00/mese |
Efficienza energetica
| Classe energetica | F |
Planimetrie
Indirizzo e mappa
Via Laggiaro 45, Rapallo
Calcolo mutuo
Prezzo di vendita:
Anticipo
20,00
Mutuo
80,00
Tasso: -+
Rata: 472 al mese
I risultati sono una stima indicativa basata sui dati inseriti e non costituiscono un’offerta finanziaria.
Inserzionista

MB Immobiliare Srl
Via Magenta 12, Rapallo
Mostra Telefono
Mostra Cellulare
Chiama
CONTATTA

