Magazzino all'asta Lungobisagno Dalmazia 33, Genova (zona Molassana)
€ 698.816Capannone / Fondo - Magazzino a Genova
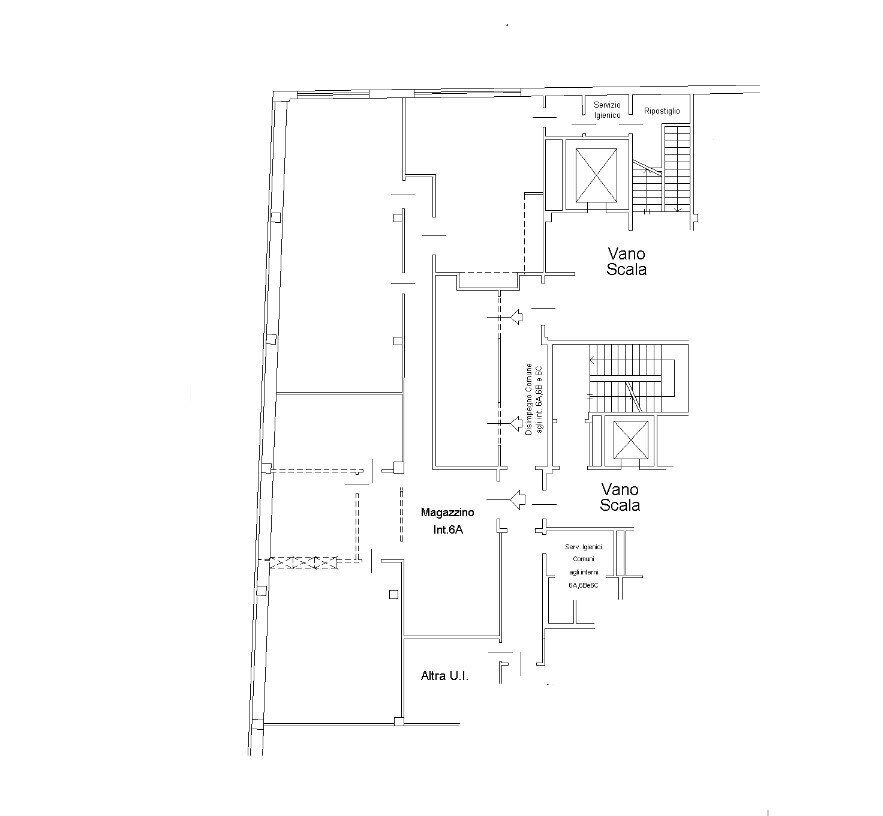
Lotto unico costituito da: A) compendio immobiliare in Genova, Lungobisagno Dalmazia n. 33 e 71, interni 6a, 6b, 6c e 7, posto al 2° piano (3° f.t.), comprensivo di diversi locali adibiti a magazzino, uffici e laboratorio per una superficie totale di c.a. 1130 mq., oltre a 3 posti auto coperti (n.1 di 13 mq, n. 7 di 14 mq e n. 8 di 18 mq) e a un box formato dai posti auto coperti nn. 5 e 6 di mq. 33, posti al piano S1; B) arredi ed attrezzatura varia da ufficio siti nei locali come da inventario allegato. - Il Prezzo visualizzato è la Base d'Asta in quanto l’immobile è oggetto di esecuzione immobiliare venduto tramite Asta Giudiziaria. - L'immobile aggiudicato, viene venduto libero e sgombro da persone cose ed ipoteche nello stato di fatto e di diritto in cui si trova. - Non rappresentiamo il Tribunale, ma lavoriamo nell'esclusivo interesse del potenziale acquirente per garantire un acquisto sicuro. - I consulenti di ASTE ITALIA ti assisteranno in tutte le attività dell'iter giudiziario dalla visita dell'immobile fino alla consegna chiavi. - Contatta il nostro Servizio Clienti , i nostri operatori sono a disposizione per chiarire i molteplici dubbi per partecipare alle ASTE.
Dati principali
| Riferimento | GE26/14LU-1405-26-1530 |
| Data annuncio | 24/02/2026 |
| Contratto | Vendita |
| Tipologia | Magazzino |
| Superficie | 845 m2 |
| Locali | più di 5 (6 altro), 4 bagni |
| Piano | 1 totali |
| Numero posti auto | 1 |
Costi
| Offerta minima | € 698.816 |
| Prezzo al m2 | 827 €/m2 |
Efficienza energetica
| Classe energetica | B |
Planimetrie
Indirizzo e mappa
Lungobisagno Dalmazia 33, Genova - quartiere Molassana
Calcolo mutuo
Prezzo di vendita:
Anticipo
20,00
Mutuo
80,00
Tasso: -+
Rata: 1.999 al mese
I risultati sono una stima indicativa basata sui dati inseriti e non costituiscono un’offerta finanziaria.
Inserzionista

DOMY ONLINE S.R.L.
Via San Lorenzo 5 Int. 41, Genova
Mostra Telefono
Mostra Cellulare
Chiama
CONTATTA

